Log In/Sign Up
Your email has been sent.
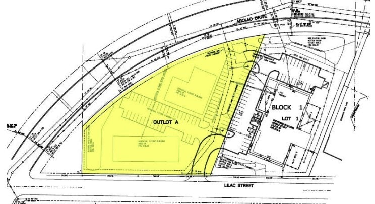
XXXX Lilac Street 2.08 Acres of Commercial Land Offered at $475,000 in Circle Pines, MN 55014

Investment Highlights
- Easy access to 35W from Lake Drive.
- Utilities are stubbed to site and ponding will be in place
Executive Summary
2.08 acres to be platted (Outlot A) available For Sale in Lino Lakes.
Property Facts
| Price | $475,000 | Property Type | Land |
| Sale Type | Investment | Property Subtype | Commercial |
| No. Lots | 1 | Total Lot Size | 2.08 AC |
| Zoning | GB - General Business | ||
| Price | $475,000 |
| Sale Type | Investment |
| No. Lots | 1 |
| Property Type | Land |
| Property Subtype | Commercial |
| Total Lot Size | 2.08 AC |
| Zoning | GB - General Business |
1 Lot Available
Lot
| Price | $475,000 | Lot Size | 2.08 AC |
| Price Per AC | $228,365.38 |
| Price | $475,000 |
| Price Per AC | $228,365.38 |
| Lot Size | 2.08 AC |
Parcel to be platted
1 1
Somewhat walkable
30/100
Exceptionally drivable
100/100
Fairly bikeable
50/100
1 of 2
Videos
Matterport 3D Exterior
Matterport 3D Tour
Photos
Street View
Street
Map
1 of 1
Presented by
XXXX Lilac Street
Already a member? Log In
Hmm, there seems to have been an error sending your message. Please try again.
Thanks! Your message was sent.
