Log In/Sign Up
Your email has been sent.
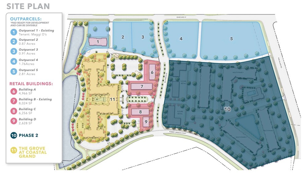
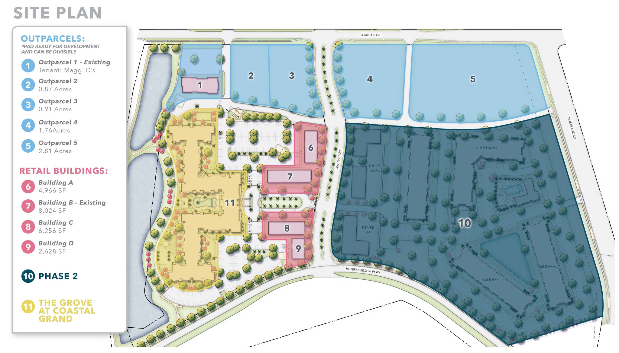
00 Sea Pine - Pine Island Point - Outparcel 5 2.81 Acres of Commercial Land



About 00 SEA PINE , MYRTLE BEACH , SC 29577
| Price | Not Individually For Sale | Property Subtype | Commercial |
| Property Type | Land | Total Lot Size | 2.81 AC |
| Price | Not Individually For Sale |
| Property Type | Land |
| Property Subtype | Commercial |
| Total Lot Size | 2.81 AC |
1 of 4
Videos
Matterport 3D Exterior
Matterport 3D Tour
Photos
Street View
Street
Map
