Log In/Sign Up
Your email has been sent.
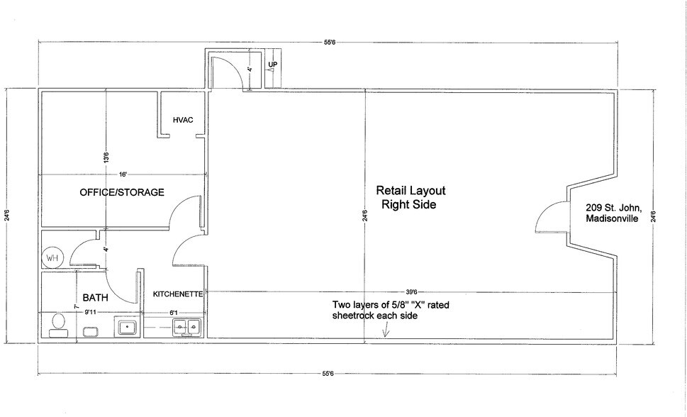
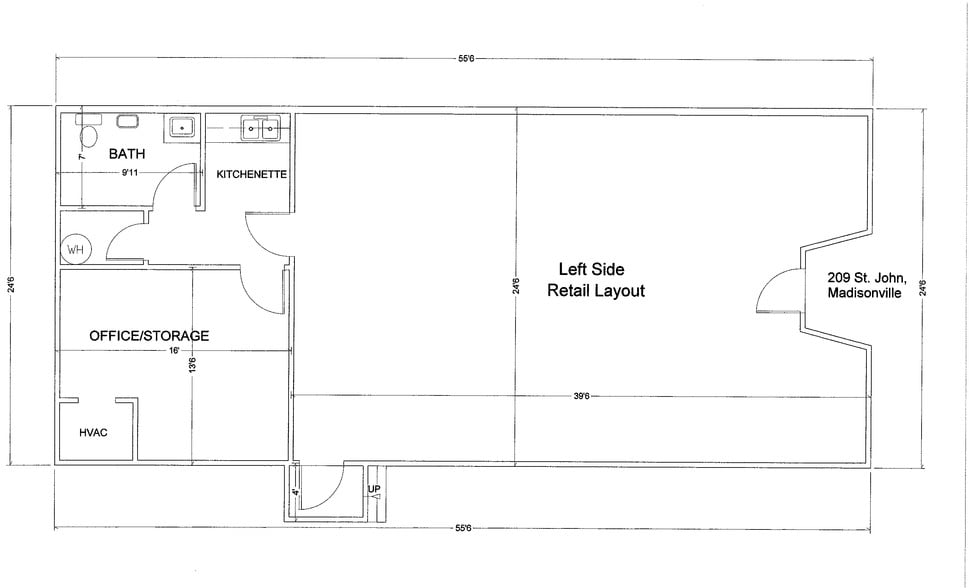
207-209 Saint John St 2,800 SF Office Building



ABOUT 207-209 SAINT JOHN ST , MADISONVILLE , LA 70447
| Price | Not Individually For Sale | Building Class | C |
| Building Size | 2,800 SF | Lot Size | 0.09 AC |
| Property Type | Office |
| Price | Not Individually For Sale |
| Building Size | 2,800 SF |
| Property Type | Office |
| Building Class | C |
| Lot Size | 0.09 AC |
1 of 4
VIDEOS
MATTERPORT 3D EXTERIOR
MATTERPORT 3D TOUR
PHOTOS
STREET VIEW
STREET
MAP
