Log In/Sign Up
Your email has been sent.
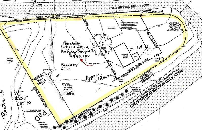
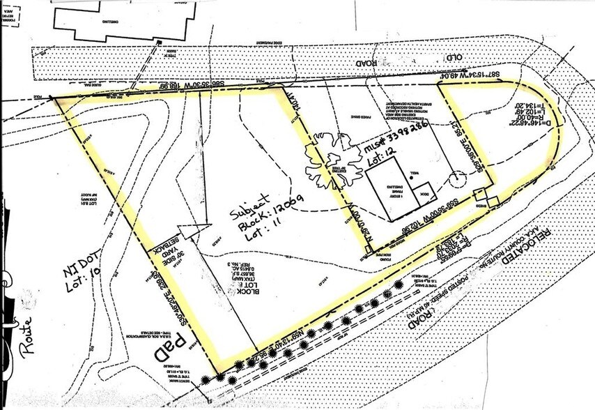
304 Houses Corner Rd - Zoned Industrial - Outside Storage 0.82 Acres of Industrial Land



About 304 HOUSES CORNER RD , SPARTA , NJ 07871
| Price | Not Individually For Sale | Property Subtype | Industrial |
| Property Type | Land | Total Lot Size | 0.82 AC |
| Price | Not Individually For Sale |
| Property Type | Land |
| Property Subtype | Industrial |
| Total Lot Size | 0.82 AC |
1 of 9
Videos
Matterport 3D Exterior
Matterport 3D Tour
Photos
Street View
Street
Map
