Property Record
12080 Rancho Rd, Adelanto, CA 92301
Current Lease Availabilities
NEARBY LISTINGS FOR SALE OR LEASE
-
-
-
No Photo
-
-
-
View all Adelanto listings for lease on LoopNet.com
Property Detail
12080 Rancho Rd
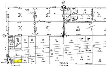
0459-461-53
PTN E 1/2 SW 1/4 SW 1/4 SW 1/4 SEC 34 TP 6N R 5W LYING SLY LI PARALLEL WITH AND DISTANT 432.5 FT SLY LI COM AT PT IN E LI SD SEC 34 DISTANT THEREON N 0 DEG 39 MIN 25 SECONDS W 1135.67 FT FROM SE COR SD SEC 34 TH S 83 DEG 57 MIN 19 SECONDS W
Lightindustrial
San Bernardino
X
California
06071C5795H
1.04 AC
2024
Mojave River Valley
2025
Inland Empire (California)
009126
Riverside-San Bernardino-Ontario, CA
12,000 SF
DEMOGRAPHICS near 12080 Rancho Rd
1 Mile
3 Mile
5 Mile
2024 Total Population
6
30,935
101,437
2029 Population
6
31,723
103,838
Pop Growth 2024-2029
0.00%
+ 2.55%
+ 2.37%
Average Age
5
32
33
2024 Total Households
2
8,183
26,633
HH Growth 2024-2029
0.00%
+ 2.57%
+ 2.39%
Median Household Inc
$12,500
$66,687
$67,638
Avg Household Size
.00
3.70
3.70
2024 Avg HH Vehicles
2.00
2.00
2.00
Median Home Value
$0
$288,690
$288,647
Median Year Built
1954
2000
2000
Nearby Places
Map Layers
- Restaurants
- Banks
- Shops
- Fitness
- Groceries
PUBLIC TRANSPORTATION
COMMUTER RAIL
Victorville Amtrak (Southwest Chief - Amtrak)
DRIVE
WALK
Distance
Victorville Amtrak (Southwest Chief - Amtrak)
13 min
8.5 mi
Freight Ports
Port of Long Beach
DRIVE
WALK
Distance
Port of Long Beach
118 min
97.4 mi
Nearby Properties
Address
Land Use
TOTAL SIZE
Lot Size
Zoning
Address
Land Use
TOTAL SIZE
Lot Size
Zoning
Address
Land Use
TOTAL SIZE
Lot Size
Zoning
1,078,071 SF
71.47 AC
Address
Land Use
TOTAL SIZE
Lot Size
Zoning
306,258 SF
50.39 AC
Address
Land Use
TOTAL SIZE
Lot Size
Zoning
1,050,860 SF
52.27 AC
Address
Land Use
TOTAL SIZE
Lot Size
Zoning
1,001,096 SF
42.55 AC
Address
Land Use
TOTAL SIZE
Lot Size
Zoning
854,482 SF
54.08 AC
Address
Land Use
TOTAL SIZE
Lot Size
Zoning
819,740 SF
27.96 AC
Address
Land Use
TOTAL SIZE
Lot Size
Zoning
471,733 SF
26.70 AC
Address
Land Use
TOTAL SIZE
Lot Size
Zoning
465,403 SF
25.92 AC
Address
Land Use
TOTAL SIZE
Lot Size
Zoning
445,536 SF
21.70 AC
Address
Land Use
TOTAL SIZE
Lot Size
Zoning
369,891 SF
19.54 AC
Address
Land Use
TOTAL SIZE
Lot Size
Zoning
299,461 SF
17.47 AC
Address
Land Use
TOTAL SIZE
Lot Size
Zoning
112,281 SF
6.78 AC
Address
Land Use
TOTAL SIZE
Lot Size
Zoning
96,592 SF
8.59 AC
Address
Land Use
TOTAL SIZE
Lot Size
Zoning
171,532 SF
13.50 AC
Address
Land Use
TOTAL SIZE
Lot Size
Zoning
123,759 SF
7.85 AC
Address
Land Use
TOTAL SIZE
Lot Size
Zoning
22.27 AC
Address
Land Use
TOTAL SIZE
Lot Size
Zoning
164.99 AC
Address
Land Use
TOTAL SIZE
Lot Size
Zoning
100,045 SF
6.06 AC
Address
Land Use
TOTAL SIZE
Lot Size
Zoning
218,300 SF
34.53 AC
Address
Land Use
TOTAL SIZE
Lot Size
Zoning
77.11 AC
Address
Land Use
TOTAL SIZE
Lot Size
Zoning
1,296,200 SF
119.54 AC
Address
Land Use
TOTAL SIZE
Lot Size
Zoning
183,879 SF
18.74 AC
Address
Land Use
TOTAL SIZE
Lot Size
Zoning
47,883 SF
4.68 AC
Address
Land Use
TOTAL SIZE
Lot Size
Zoning
56,637 SF
0.69 AC
Address
Land Use
TOTAL SIZE
Lot Size
Zoning
41,613 SF
0.69 AC
Address
Land Use
TOTAL SIZE
Lot Size
Zoning
40.26 AC
Address
Land Use
TOTAL SIZE
Lot Size
Zoning
55,660 SF
3.70 AC
Address
Land Use
TOTAL SIZE
Lot Size
Zoning
47,540 SF
0.69 AC
Address
Land Use
TOTAL SIZE
Lot Size
Zoning
52,716 SF
0.69 AC





