Property Record
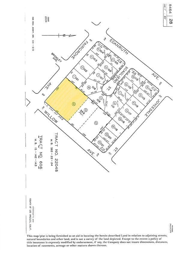
1213 Willow Ave, La Puente, CA 91746
Property Detail
1213 Willow Ave
8464-028-026
TRACT NO 606 SW 180 FT OF SE 180 FT OF LOT 368
Nightclub
LOS ANGELES
LCA16000*
California
B and X Area of moderate flood hazard, usually the area between the limits of the 100-year and 500-year floods.
368
2025
0.75 AC
2025
Eastern SGV
406903
Los Angeles
2,720 SF
Los Angeles-Long Beach-Glendale, CA
NEARBY LISTINGS FOR SALE OR LEASE
DEMOGRAPHICS near 1213 Willow Ave
1 mile
3 mile
5 mile
2025 Total Population
31,213
214,991
471,246
2030 Population
30,620
211,541
463,849
Pop Growth 2025-2030
(1.90%)
(1.60%)
(1.57%)
Average Age
40
40
40
2025 Total Households
7,740
54,998
127,119
HH Growth 2025-2030
(2.21%)
(1.83%)
(1.80%)
Median Household Inc
$89,372
$86,809
$87,993
Avg Household Size
3.80
3.70
3.60
2025 Avg HH Vehicles
3.00
3.00
2.00
Median Home Value
$699,964
$707,165
$721,522
Median Year Built
1956
1959
1960
Nearby Places
Map Layers
Listings with unknown addresses are not visible on the map
- Restaurants
- Banks
- Shops
- Fitness
- Groceries
PUBLIC TRANSPORTATION
COMMUTER RAIL
Baldwin Park (San Bernardino Line - Southern California Regional Rail Authority (Metrolink))
Drive
Walk
Distance
Baldwin Park (San Bernardino Line - Southern California Regional Rail Authority (Metrolink))
6 min
2.9 mi
El Monte (San Bernardino Line - Southern California Regional Rail Authority (Metrolink))
Drive
Walk
Distance
El Monte (San Bernardino Line - Southern California Regional Rail Authority (Metrolink))
10 min
5.8 mi
AIRPORT
Ontario International
Drive
Walk
Distance
Ontario International
31 min
23.8 mi
Long Beach (Daugherty Field)
Drive
Walk
Distance
Long Beach (Daugherty Field)
36 min
25.6 mi
Bob Hope
Drive
Walk
Distance
Bob Hope
42 min
32.4 mi
Freight Ports
Port of Long Beach
Drive
Walk
Distance
Port of Long Beach
42 min
31.3 mi
SALE & LEASE HISTORY
LISTING DATE
SALE/LEASE
Nearby Properties
Address
Land Use
TOTAL SIZE
Lot Size
Zoning
Address
Land Use
TOTAL SIZE
Lot Size
Zoning
1,829,870 SF
24.47 AC
BPCM*
Address
Land Use
TOTAL SIZE
Lot Size
Zoning
702,934 SF
16.81 AC
WCCR
Address
Land Use
TOTAL SIZE
Lot Size
Zoning
546,676 SF
6.38 AC
WCCR*
Address
Land Use
TOTAL SIZE
Lot Size
Zoning
286,646 SF
21.99 AC
WCOPCC*
Address
Land Use
TOTAL SIZE
Lot Size
Zoning
253,670 SF
11.61 AC
IDM*
Address
Land Use
TOTAL SIZE
Lot Size
Zoning
177,480 SF
9.39 AC
WCR3-MF20*
Address
Land Use
TOTAL SIZE
Lot Size
Zoning
202,269 SF
4.04 AC
IRM2
Address
Land Use
TOTAL SIZE
Lot Size
Zoning
1,083,232 SF
33.16 AC
IDM*
Address
Land Use
TOTAL SIZE
Lot Size
Zoning
811,186 SF
17.79 AC
IDM*
Address
Land Use
TOTAL SIZE
Lot Size
Zoning
216,253 SF
10.01 AC
IDM*
Address
Land Use
TOTAL SIZE
Lot Size
Zoning
229,608 SF
10.36 AC
IDM*
Address
Land Use
TOTAL SIZE
Lot Size
Zoning
355,209 SF
8.98 AC
IDM*
Address
Land Use
TOTAL SIZE
Lot Size
Zoning
536,803 SF
13.33 AC
BPI*
Address
Land Use
TOTAL SIZE
Lot Size
Zoning
193,927 SF
9.19 AC
1DM*
Address
Land Use
TOTAL SIZE
Lot Size
Zoning
411,091 SF
9.44 AC
IDM*
Address
Land Use
TOTAL SIZE
Lot Size
Zoning
113,992 SF
5.25 AC
1DM*
Address
Land Use
TOTAL SIZE
Lot Size
Zoning
119,669 SF
1.56 AC
WCCR*
Address
Land Use
TOTAL SIZE
Lot Size
Zoning
177,674 SF
10.70 AC
IDM*
Address
Land Use
TOTAL SIZE
Lot Size
Zoning
398,844 SF
21.55 AC
LCM11/2*
Address
Land Use
TOTAL SIZE
Lot Size
Zoning
256,527 SF
12.08 AC
IDM*
Address
Land Use
TOTAL SIZE
Lot Size
Zoning
205,108 SF
9.29 AC
IDM*
Address
Land Use
TOTAL SIZE
Lot Size
Zoning
120,588 SF
4.50 AC
WCR3-MF20*
Address
Land Use
TOTAL SIZE
Lot Size
Zoning
436,938 SF
10.56 AC
IDM*
Address
Land Use
TOTAL SIZE
Lot Size
Zoning
125,926 SF
6.22 AC
IDM*
Address
Land Use
TOTAL SIZE
Lot Size
Zoning
195,586 SF
2.58 AC
WCCR*
Address
Land Use
TOTAL SIZE
Lot Size
Zoning
8,691 SF
LCM11/2*
Address
Land Use
TOTAL SIZE
Lot Size
Zoning
85,133 SF
7.04 AC
IRM2
Address
Land Use
TOTAL SIZE
Lot Size
Zoning
109,333 SF
4.30 AC
WCR3-MF20*
Address
Land Use
TOTAL SIZE
Lot Size
Zoning
240,772 SF
6.08 AC
IDM*
Address
Land Use
TOTAL SIZE
Lot Size
Zoning
163,472 SF
8.40 AC
WCR3-MF20*






