Property Record
148 John King Rd, Crestview, FL 32539
Property Detail
148 John King Rd
Crestview-Fort Walton Beach-Destin, FL
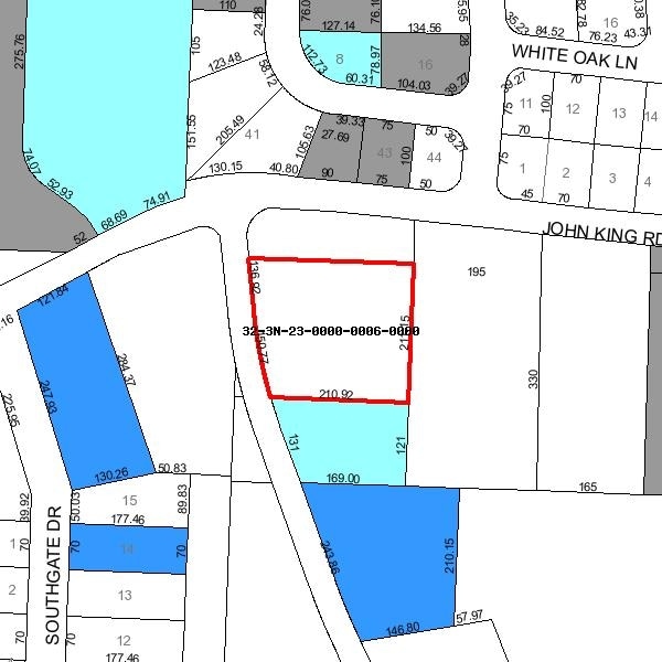
THAT PART EAST OF LIVE OAK CHURCH ROAD: BEG NW COR NE1/4 OF NE1/4 E 60 FT TO E SIDE RD FOR BEG S ALONG RD 209 FT E 209 FT N 209 FT W 209 FT TO BEG ALSO BEG NW COR NE1/4 OF NE1/4 S 209 FT E 60 FT TO W LINE RD NWLY APP 209 FT ALONG RD TO BEG DB 35 PG 3
32-3N-23-0000-0006-0000
Okaloosa
Warehouse
Florida
2025
1.12 AC
2025
Fort Walton Beach
020702
Other Market Areas
10,464 SF
NEARBY LISTINGS FOR SALE OR LEASE
DEMOGRAPHICS near 148 John King Rd
1 mile
3 mile
5 mile
2025 Total Population
4,469
25,512
41,420
2030 Population
4,568
26,269
42,637
Pop Growth 2025-2030
+ 2.22%
+ 2.97%
+ 2.94%
Average Age
36
36
37
2025 Total Households
1,651
9,017
14,654
HH Growth 2025-2030
+ 2.12%
+ 2.88%
+ 2.85%
Median Household Inc
$87,058
$77,663
$78,191
Avg Household Size
2.70
2.60
2.60
2025 Avg HH Vehicles
2.00
2.00
2.00
Median Home Value
$336,974
$314,644
$309,175
Median Year Built
1997
1999
1999
Nearby Places
Map Layers
Listings with unknown addresses are not visible on the map
- Restaurants
- Banks
- Shops
- Fitness
- Groceries
PUBLIC TRANSPORTATION
AIRPORT
Eglin AFB/Destin-Ft Walton Beach
Drive
Walk
Distance
Eglin AFB/Destin-Ft Walton Beach
43 min
23.2 mi
Freight Ports
Port of Panama City
Drive
Walk
Distance
Port of Panama City
108 min
84.2 mi
Nearby Properties
Address
Land Use
TOTAL SIZE
Lot Size
Zoning
Address
Land Use
TOTAL SIZE
Lot Size
Zoning
124,093 SF
6.94 AC
R-2
Address
Land Use
TOTAL SIZE
Lot Size
Zoning
188,733 SF
7.90 AC
R-1
Address
Land Use
TOTAL SIZE
Lot Size
Zoning
Address
Land Use
TOTAL SIZE
Lot Size
Zoning
76,136 SF
7.45 AC
Address
Land Use
TOTAL SIZE
Lot Size
Zoning
179,054 SF
22.90 AC
Address
Land Use
TOTAL SIZE
Lot Size
Zoning
97,538 SF
7.21 AC
Address
Land Use
TOTAL SIZE
Lot Size
Zoning
267,567 SF
66.39 AC
Address
Land Use
TOTAL SIZE
Lot Size
Zoning
13,976 SF
19.04 AC
C-1
Address
Land Use
TOTAL SIZE
Lot Size
Zoning
233,285 SF
11.45 AC
C-1
Address
Land Use
TOTAL SIZE
Lot Size
Zoning
136,672 SF
13.63 AC
C-1
Address
Land Use
TOTAL SIZE
Lot Size
Zoning
61,672 SF
5.65 AC
Address
Land Use
TOTAL SIZE
Lot Size
Zoning
7,615 SF
70.60 AC
Address
Land Use
TOTAL SIZE
Lot Size
Zoning
99,035 SF
3.47 AC
Address
Land Use
TOTAL SIZE
Lot Size
Zoning
71,382 SF
2.55 AC
Address
Land Use
TOTAL SIZE
Lot Size
Zoning
79,992 SF
7.26 AC
Address
Land Use
TOTAL SIZE
Lot Size
Zoning
24,868 SF
2.03 AC
Address
Land Use
TOTAL SIZE
Lot Size
Zoning
87,672 SF
15.69 AC
Address
Land Use
TOTAL SIZE
Lot Size
Zoning
179,963 SF
22.48 AC
Address
Land Use
TOTAL SIZE
Lot Size
Zoning
26,634 SF
2.72 AC
Address
Land Use
TOTAL SIZE
Lot Size
Zoning
106,131 SF
6.50 AC
Address
Land Use
TOTAL SIZE
Lot Size
Zoning
54,986 SF
2.84 AC
Address
Land Use
TOTAL SIZE
Lot Size
Zoning
51,432 SF
3.95 AC
Address
Land Use
TOTAL SIZE
Lot Size
Zoning
139,185 SF
14.95 AC
Address
Land Use
TOTAL SIZE
Lot Size
Zoning
28,363 SF
2.34 AC
Address
Land Use
TOTAL SIZE
Lot Size
Zoning
113,123 SF
20.45 AC
C-1
Address
Land Use
TOTAL SIZE
Lot Size
Zoning
35,898 SF
5.26 AC
Address
Land Use
TOTAL SIZE
Lot Size
Zoning
88,248 SF
5.17 AC
Address
Land Use
TOTAL SIZE
Lot Size
Zoning
61,064 SF
4.80 AC
Address
Land Use
TOTAL SIZE
Lot Size
Zoning
53,892 SF
6.97 AC
Address
Land Use
TOTAL SIZE
Lot Size
Zoning
73,736 SF
6.24 AC







