Property Record
4890 E Copper Ave, Clovis, CA 93619
Property Detail
4890 E Copper Ave
Fresno, CA
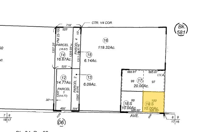
SUR RT 10 AC LOT 100 TR A INTERNATIONAL VINEYARDS
580-040-19S
Fresno
Recreationalacreage
California
AE20
100
A Areas with a 1% annual chance of flooding and a 26% chance of flooding over the life of a 30-year mortgage.
10 AC
2025
E Outlying Fresno County
2025
Fresno
005515
NEARBY LISTINGS FOR SALE OR LEASE
DEMOGRAPHICS near 4890 E Copper Ave
1 mile
3 mile
5 mile
2025 Total Population
568
22,111
106,379
2030 Population
592
22,757
108,140
Pop Growth 2025-2030
+ 4.23%
+ 2.92%
+ 1.66%
Average Age
43
39
40
2025 Total Households
191
7,132
38,152
HH Growth 2025-2030
+ 4.19%
+ 2.89%
+ 1.64%
Median Household Inc
$173,750
$146,065
$118,392
Avg Household Size
2.80
3.10
2.80
2025 Avg HH Vehicles
3.00
2.00
2.00
Median Home Value
$793,814
$685,285
$571,639
Median Year Built
1994
2004
1997
Nearby Places
Map Layers
Listings with unknown addresses are not visible on the map
- Restaurants
- Banks
- Shops
- Fitness
- Groceries
PUBLIC TRANSPORTATION
AIRPORT
Fresno Yosemite International
Drive
Walk
Distance
Fresno Yosemite International
21 min
11.7 mi
SALE & LEASE HISTORY
LISTING DATE
SALE/LEASE
Nearby Properties
Address
Land Use
TOTAL SIZE
Lot Size
Zoning
Address
Land Use
TOTAL SIZE
Lot Size
Zoning
188,913 SF
7.90 AC
Address
Land Use
TOTAL SIZE
Lot Size
Zoning
129,860 SF
6.10 AC
Address
Land Use
TOTAL SIZE
Lot Size
Zoning
77,858 SF
4.23 AC
CP
Address
Land Use
TOTAL SIZE
Lot Size
Zoning
50,025 SF
40.36 AC
AE20
Address
Land Use
TOTAL SIZE
Lot Size
Zoning
38,275 SF
18.16 AC
Address
Land Use
TOTAL SIZE
Lot Size
Zoning
128,940 SF
34 AC
AL20
Address
Land Use
TOTAL SIZE
Lot Size
Zoning
35,070 SF
3.53 AC
C2
Address
Land Use
TOTAL SIZE
Lot Size
Zoning
24,232 SF
2.86 AC
C2
Address
Land Use
TOTAL SIZE
Lot Size
Zoning
233,246 SF
18.93 AC
CM
Address
Land Use
TOTAL SIZE
Lot Size
Zoning
17,453 SF
1.94 AC
C2
Address
Land Use
TOTAL SIZE
Lot Size
Zoning
35,045 SF
17.59 AC
AE20
Address
Land Use
TOTAL SIZE
Lot Size
Zoning
79.09 AC
AE20
Address
Land Use
TOTAL SIZE
Lot Size
Zoning
7,706 SF
0.90 AC
Address
Land Use
TOTAL SIZE
Lot Size
Zoning
5,410 SF
1.04 AC
C2
Address
Land Use
TOTAL SIZE
Lot Size
Zoning
11,025 SF
1.31 AC
C2
Address
Land Use
TOTAL SIZE
Lot Size
Zoning
5,200 SF
0.80 AC
Address
Land Use
TOTAL SIZE
Lot Size
Zoning
51,540 SF
5.18 AC
AL20
Address
Land Use
TOTAL SIZE
Lot Size
Zoning
6,247 SF
1.52 AC
C1
Address
Land Use
TOTAL SIZE
Lot Size
Zoning
7,472 SF
2 AC
RR
Address
Land Use
TOTAL SIZE
Lot Size
Zoning
28,892 SF
5.05 AC
RA
Address
Land Use
TOTAL SIZE
Lot Size
Zoning
14,904 SF
158.05 AC
AE20
Address
Land Use
TOTAL SIZE
Lot Size
Zoning
7,715 SF
2.08 AC
RR
Address
Land Use
TOTAL SIZE
Lot Size
Zoning
3,944 SF
1.15 AC
C2
Address
Land Use
TOTAL SIZE
Lot Size
Zoning
4,037 SF
0.45 AC
R1
Address
Land Use
TOTAL SIZE
Lot Size
Zoning
6,374 SF
2.04 AC
RR
Address
Land Use
TOTAL SIZE
Lot Size
Zoning
1,920 SF
20 AC
AE20
Address
Land Use
TOTAL SIZE
Lot Size
Zoning
1,692 SF
19.85 AC
AE20
Address
Land Use
TOTAL SIZE
Lot Size
Zoning
17.86 AC
AE20







