Property Record
Baseline Ave, Fontana, CA 92336
Property Detail
Baseline Ave
Riverside-San Bernardino-Ontario, CA
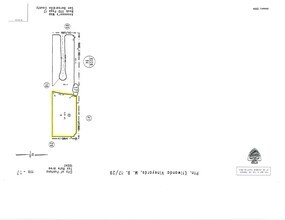
ETIWANDA VINEYARD TRACT LOT 6 EX BEG SW COR SD LOT 6 TH ALG WLY LI SD LOT N 00 DEG 03 MIN 38 SECONDS E 299.90 FT TO SLY R/W BASELINE AVE TH ALG SD SLY LI N 89 DEG 59 MIN 10 SECONDS E 128.52 FT TH S 00 DEG 00 MIN 50 SECONDS 30 FT TH S 45 DEG 01 MIN 03
1110-171-02
SAN BERNARDINO
Vacantlandnec
California
B and X Area of moderate flood hazard, usually the area between the limits of the 100-year and 500-year floods.
6
2025
4.03 AC
2025
Airport Area
002310
Inland Empire (California)
NEARBY LISTINGS FOR SALE OR LEASE
DEMOGRAPHICS near Baseline Ave
1 mile
3 mile
5 mile
2025 Total Population
27,258
160,431
313,225
2030 Population
27,522
162,532
317,015
Pop Growth 2025-2030
+ 0.97%
+ 1.31%
+ 1.21%
Average Age
36
36
36
2025 Total Households
7,063
41,376
82,820
HH Growth 2025-2030
+ 0.98%
+ 1.30%
+ 1.21%
Median Household Inc
$120,363
$107,097
$105,727
Avg Household Size
3.80
3.80
3.70
2025 Avg HH Vehicles
3.00
3.00
3.00
Median Home Value
$696,196
$665,988
$657,060
Median Year Built
2000
1992
1989
Nearby Places
Map Layers
Listings with unknown addresses are not visible on the map
- Restaurants
- Banks
- Shops
- Fitness
- Groceries
PUBLIC TRANSPORTATION
COMMUTER RAIL
Fontana (San Bernardino Line - Southern California Regional Rail Authority (Metrolink))
Drive
Walk
Distance
Fontana (San Bernardino Line - Southern California Regional Rail Authority (Metrolink))
6 min
3.6 mi
Rialto (San Bernardino Line - Southern California Regional Rail Authority (Metrolink))
Drive
Walk
Distance
Rialto (San Bernardino Line - Southern California Regional Rail Authority (Metrolink))
12 min
7.3 mi
AIRPORT
Ontario International
Drive
Walk
Distance
Ontario International
19 min
11.8 mi
Freight Ports
Port of Long Beach
Drive
Walk
Distance
Port of Long Beach
81 min
65.3 mi
SALE & LEASE HISTORY
LISTING DATE
SALE/LEASE
Nearby Properties
Address
Land Use
TOTAL SIZE
Lot Size
Zoning
Address
Land Use
TOTAL SIZE
Lot Size
Zoning
425.43 AC
SDCOM
Address
Land Use
TOTAL SIZE
Lot Size
Zoning
1,286,569 SF
53.96 AC
Address
Land Use
TOTAL SIZE
Lot Size
Zoning
445,857 SF
35.95 AC
Address
Land Use
TOTAL SIZE
Lot Size
Zoning
1,194,649 SF
51.06 AC
Address
Land Use
TOTAL SIZE
Lot Size
Zoning
746,965 SF
37.16 AC
Address
Land Use
TOTAL SIZE
Lot Size
Zoning
741,542 SF
40.50 AC
Address
Land Use
TOTAL SIZE
Lot Size
Zoning
0.50 AC
Address
Land Use
TOTAL SIZE
Lot Size
Zoning
702,668 SF
32.07 AC
Address
Land Use
TOTAL SIZE
Lot Size
Zoning
55.52 AC
Address
Land Use
TOTAL SIZE
Lot Size
Zoning
595,637 SF
29.70 AC
Address
Land Use
TOTAL SIZE
Lot Size
Zoning
236,129 SF
10.45 AC
Address
Land Use
TOTAL SIZE
Lot Size
Zoning
263,532 SF
13.14 AC
Address
Land Use
TOTAL SIZE
Lot Size
Zoning
39.55 AC
Address
Land Use
TOTAL SIZE
Lot Size
Zoning
700,709 SF
34.99 AC
IR
Address
Land Use
TOTAL SIZE
Lot Size
Zoning
1,380,498 SF
74.36 AC
Address
Land Use
TOTAL SIZE
Lot Size
Zoning
528,253 SF
22.99 AC
Address
Land Use
TOTAL SIZE
Lot Size
Zoning
597,749 SF
27.27 AC
Address
Land Use
TOTAL SIZE
Lot Size
Zoning
676,296 SF
29.50 AC
Address
Land Use
TOTAL SIZE
Lot Size
Zoning
185,866 SF
9.49 AC
IC
Address
Land Use
TOTAL SIZE
Lot Size
Zoning
182,919 SF
8.55 AC
Address
Land Use
TOTAL SIZE
Lot Size
Zoning
Address
Land Use
TOTAL SIZE
Lot Size
Zoning
881,820 SF
39.53 AC
Address
Land Use
TOTAL SIZE
Lot Size
Zoning
258,768 SF
8.50 AC
Address
Land Use
TOTAL SIZE
Lot Size
Zoning
426,302 SF
18.33 AC
Address
Land Use
TOTAL SIZE
Lot Size
Zoning
384,841 SF
16.93 AC
Address
Land Use
TOTAL SIZE
Lot Size
Zoning
209,700 SF
9.76 AC
IR
Address
Land Use
TOTAL SIZE
Lot Size
Zoning
450,220 SF
22.45 AC
Address
Land Use
TOTAL SIZE
Lot Size
Zoning
318,104 SF
13.50 AC
Address
Land Use
TOTAL SIZE
Lot Size
Zoning
255,152 SF
11.49 AC
Address
Land Use
TOTAL SIZE
Lot Size
Zoning
207,571 SF
9.24 AC








