Property Record
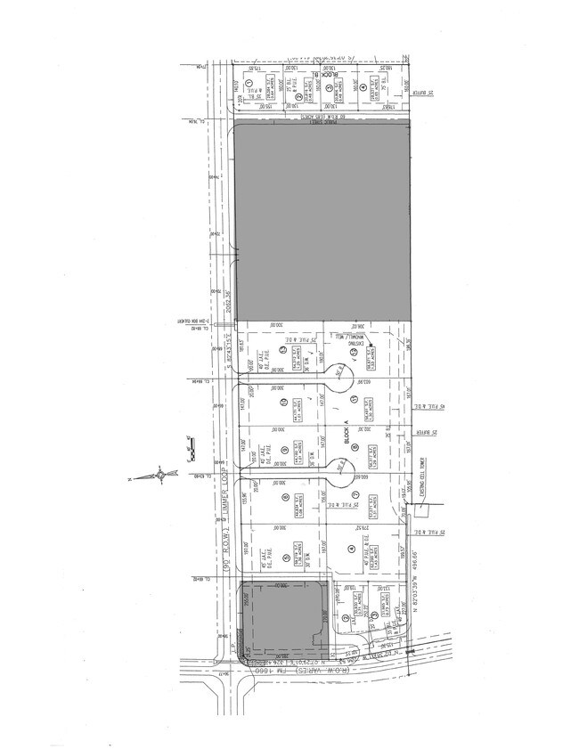
Limmer Loop, Hutto, TX 78634
Property Detail
Limmer Loop
Austin-Round Rock-San Marcos, TX
AW0097 AW0097 - BEALLE, J.B. SUR., ACRES 7.32
R493818
WILLIAMSON
Vacantlandnec
Texas
B and X Area of moderate flood hazard, usually the area between the limits of the 100-year and 500-year floods.
7.32 AC
2024
Georgetown
2025
Austin
020813
NEARBY LISTINGS FOR SALE OR LEASE
DEMOGRAPHICS near Limmer Loop
1 mile
3 mile
5 mile
2025 Total Population
8,334
34,182
79,725
2030 Population
9,700
39,833
92,108
Pop Growth 2025-2030
+ 16.39%
+ 16.53%
+ 15.53%
Average Age
35
35
36
2025 Total Households
2,662
10,825
26,210
HH Growth 2025-2030
+ 16.94%
+ 16.91%
+ 16.00%
Median Household Inc
$120,105
$121,380
$129,626
Avg Household Size
3.10
3.10
3.00
2025 Avg HH Vehicles
3.00
2.00
2.00
Median Home Value
$406,139
$402,703
$438,678
Median Year Built
2010
2010
2010
Nearby Places
Map Layers
Listings with unknown addresses are not visible on the map
- Restaurants
- Banks
- Shops
- Fitness
- Groceries
PUBLIC TRANSPORTATION
COMMUTER RAIL
Taylor Amtrak (Texas Eagle - Amtrak)
Drive
Walk
Distance
Taylor Amtrak (Texas Eagle - Amtrak)
13 min
8.9 mi
AIRPORT
Austin-Bergstrom International
Drive
Walk
Distance
Austin-Bergstrom International
45 min
34.3 mi
Freight Ports
Calhoun Port
Drive
Walk
Distance
Calhoun Port
205 min
177.3 mi
SALE & LEASE HISTORY
LISTING DATE
SALE/LEASE
Nearby Properties
Address
Land Use
TOTAL SIZE
Lot Size
Zoning
Address
Land Use
TOTAL SIZE
Lot Size
Zoning
243,097 SF
15.73 AC
Address
Land Use
TOTAL SIZE
Lot Size
Zoning
302,465 SF
15.79 AC
Address
Land Use
TOTAL SIZE
Lot Size
Zoning
29,616 SF
158.84 AC
Address
Land Use
TOTAL SIZE
Lot Size
Zoning
253,225 SF
12.25 AC
Address
Land Use
TOTAL SIZE
Lot Size
Zoning
301,721 SF
16.54 AC
Address
Land Use
TOTAL SIZE
Lot Size
Zoning
304,814 SF
17.04 AC
Address
Land Use
TOTAL SIZE
Lot Size
Zoning
76.14 AC
Address
Land Use
TOTAL SIZE
Lot Size
Zoning
230,841 SF
17.51 AC
Address
Land Use
TOTAL SIZE
Lot Size
Zoning
183,310 SF
10.78 AC
Address
Land Use
TOTAL SIZE
Lot Size
Zoning
266,428 SF
58.60 AC
Address
Land Use
TOTAL SIZE
Lot Size
Zoning
195,520 SF
14.89 AC
Address
Land Use
TOTAL SIZE
Lot Size
Zoning
243,097 SF
12.53 AC
Address
Land Use
TOTAL SIZE
Lot Size
Zoning
154,528 SF
7.23 AC
Address
Land Use
TOTAL SIZE
Lot Size
Zoning
220,850 SF
12.06 AC
Address
Land Use
TOTAL SIZE
Lot Size
Zoning
161,190 SF
8.82 AC
Address
Land Use
TOTAL SIZE
Lot Size
Zoning
297,577 SF
28.22 AC
Address
Land Use
TOTAL SIZE
Lot Size
Zoning
535,408 SF
30.16 AC
Address
Land Use
TOTAL SIZE
Lot Size
Zoning
147,230 SF
8.05 AC
Address
Land Use
TOTAL SIZE
Lot Size
Zoning
109,908 SF
7.94 AC
Address
Land Use
TOTAL SIZE
Lot Size
Zoning
16.70 AC
Address
Land Use
TOTAL SIZE
Lot Size
Zoning
14.30 AC
Address
Land Use
TOTAL SIZE
Lot Size
Zoning
193,933 SF
14.25 AC
Address
Land Use
TOTAL SIZE
Lot Size
Zoning
108,422 SF
15.72 AC
Address
Land Use
TOTAL SIZE
Lot Size
Zoning
35,187 SF
5.57 AC
Address
Land Use
TOTAL SIZE
Lot Size
Zoning
49,841 SF
74.93 AC
Address
Land Use
TOTAL SIZE
Lot Size
Zoning
154,752 SF
0.90 AC
Address
Land Use
TOTAL SIZE
Lot Size
Zoning
140,233 SF
12.63 AC
Address
Land Use
TOTAL SIZE
Lot Size
Zoning
114,374 SF
15 AC
Address
Land Use
TOTAL SIZE
Lot Size
Zoning
21,183 SF
3.70 AC
Address
Land Use
TOTAL SIZE
Lot Size
Zoning
108,594 SF
3.18 AC







