Log In/Sign Up
Your email has been sent.
One Campbell Plaza 1 Campbell Plz 351 - 16,360 SF of Office Space Available in Saint Louis, MO 63139



Highlights
- Three-building city campus on +4.5 acres
- Abundant free parking
- Located near the intersection of Hampton Avenue and Arsenal Street with many area amenities
- Diverse mix of creative, professional and non-profit companies
- Fiber connection to the buildings
- Easy highway access to I-44 and I-64
All Available Spaces(5)
Display Rental Rate as
- Space
- Size
- Term
- Rental Rate
- Space Use
- Build-Out
- Available
- Rate includes utilities, building services and property expenses
- Fits 2 People
- Rate includes utilities, building services and property expenses
- Fits 10 People
Building B
- Rate includes utilities, building services and property expenses
- Fits 8 - 25 People
- Rate includes utilities, building services and property expenses
- Office intensive layout
- Space is in Excellent Condition
- Fully Built-Out as Standard Office
- Fits 10 - 32 People
- Central Air Conditioning
- Rate includes utilities, building services and property expenses
- Fits 10 - 20 People
- Fully Built-Out as Standard Office
| Space | Size | Term | Rental Rate | Space Use | Build-Out | Available |
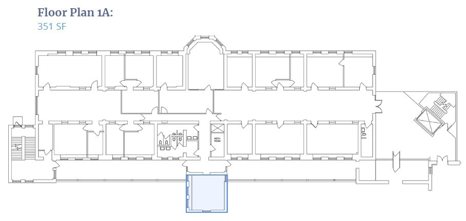
| 1st Floor | 351 SF | Negotiable | $16.00 /SF/YR $1.33 /SF/MO $5,616 /YR $468.00 /MO | Office | - | Now |
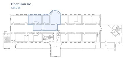
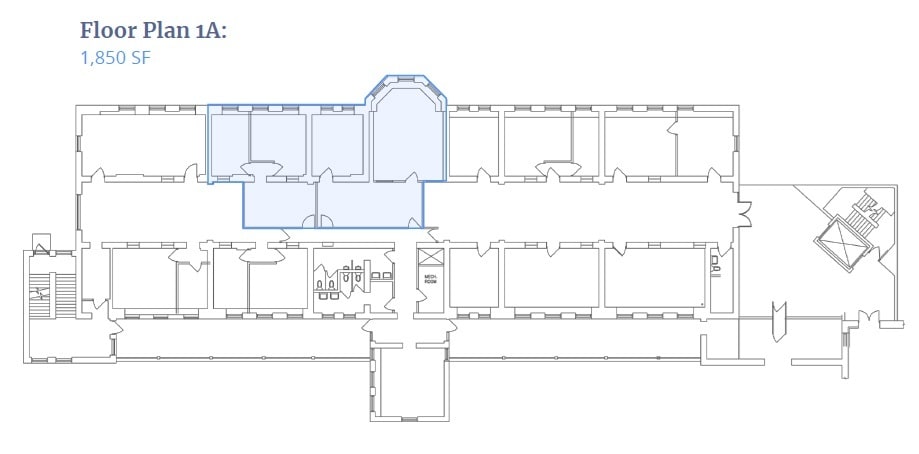
| 1st Floor | 1,850 SF | Negotiable | $16.00 /SF/YR $1.33 /SF/MO $29,600 /YR $2,467 /MO | Office | - | Now |
| 1st Floor, Ste 1B | 3,095 SF | Negotiable | $16.00 /SF/YR $1.33 /SF/MO $49,520 /YR $4,127 /MO | Office | - | Now |
| 2nd Floor, Ste 2A | 3,948 SF | Negotiable | $16.00 /SF/YR $1.33 /SF/MO $63,168 /YR $5,264 /MO | Office | Full Build-Out | Now |
| 2nd Floor, Ste 2B | 7,116 SF | Negotiable | $16.00 /SF/YR $1.33 /SF/MO $113,856 /YR $9,488 /MO | Office | Full Build-Out | Now |
1st Floor
| Size |
| 351 SF |
| Term |
| Negotiable |
| Rental Rate |
| $16.00 /SF/YR $1.33 /SF/MO $5,616 /YR $468.00 /MO |
| Space Use |
| Office |
| Build-Out |
| - |
| Available |
| Now |
1st Floor
| Size |
| 1,850 SF |
| Term |
| Negotiable |
| Rental Rate |
| $16.00 /SF/YR $1.33 /SF/MO $29,600 /YR $2,467 /MO |
| Space Use |
| Office |
| Build-Out |
| - |
| Available |
| Now |
1st Floor, Ste 1B
| Size |
| 3,095 SF |
| Term |
| Negotiable |
| Rental Rate |
| $16.00 /SF/YR $1.33 /SF/MO $49,520 /YR $4,127 /MO |
| Space Use |
| Office |
| Build-Out |
| - |
| Available |
| Now |
2nd Floor, Ste 2A
| Size |
| 3,948 SF |
| Term |
| Negotiable |
| Rental Rate |
| $16.00 /SF/YR $1.33 /SF/MO $63,168 /YR $5,264 /MO |
| Space Use |
| Office |
| Build-Out |
| Full Build-Out |
| Available |
| Now |
2nd Floor, Ste 2B
| Size |
| 7,116 SF |
| Term |
| Negotiable |
| Rental Rate |
| $16.00 /SF/YR $1.33 /SF/MO $113,856 /YR $9,488 /MO |
| Space Use |
| Office |
| Build-Out |
| Full Build-Out |
| Available |
| Now |
1 of 1
Videos
Matterport 3D Exterior
Matterport 3D Tour
Photos
Street View
Street
Map
1st Floor
| Size | 351 SF |
| Term | Negotiable |
| Rental Rate | $16.00 /SF/YR |
| Space Use | Office |
| Build-Out | - |
| Available | Now |
- Rate includes utilities, building services and property expenses
- Fits 2 People
1 of 1
Videos
Matterport 3D Exterior
Matterport 3D Tour
Photos
Street View
Street
Map
1st Floor
| Size | 1,850 SF |
| Term | Negotiable |
| Rental Rate | $16.00 /SF/YR |
| Space Use | Office |
| Build-Out | - |
| Available | Now |
- Rate includes utilities, building services and property expenses
- Fits 10 People
1 of 1
Videos
Matterport 3D Exterior
Matterport 3D Tour
Photos
Street View
Street
Map
1st Floor, Ste 1B
| Size | 3,095 SF |
| Term | Negotiable |
| Rental Rate | $16.00 /SF/YR |
| Space Use | Office |
| Build-Out | - |
| Available | Now |
Building B
- Rate includes utilities, building services and property expenses
- Fits 8 - 25 People
1 of 1
Videos
Matterport 3D Exterior
Matterport 3D Tour
Photos
Street View
Street
Map
2nd Floor, Ste 2A
| Size | 3,948 SF |
| Term | Negotiable |
| Rental Rate | $16.00 /SF/YR |
| Space Use | Office |
| Build-Out | Full Build-Out |
| Available | Now |
- Rate includes utilities, building services and property expenses
- Fully Built-Out as Standard Office
- Office intensive layout
- Fits 10 - 32 People
- Space is in Excellent Condition
- Central Air Conditioning
1 of 1
Videos
Matterport 3D Exterior
Matterport 3D Tour
Photos
Street View
Street
Map
2nd Floor, Ste 2B
| Size | 7,116 SF |
| Term | Negotiable |
| Rental Rate | $16.00 /SF/YR |
| Space Use | Office |
| Build-Out | Full Build-Out |
| Available | Now |
- Rate includes utilities, building services and property expenses
- Fully Built-Out as Standard Office
- Fits 10 - 20 People
Property Facts
Building Type
Office
Year Built
1972
Building Height
4 Stories
Building Size
89,853 SF
Building Class
C
Typical Floor Size
22,463 SF
Unfinished Ceiling Height
10’
Parking
85 Surface Parking Spaces
Covered Parking
1 1
Moderately walkable
70/100
Moderately drivable
70/100
Limited public transit
30/100
Moderately bikeable
60/100
1 of 26
Videos
Matterport 3D Exterior
Matterport 3D Tour
Photos
Street View
Street
Map
1 of 1
Presented by
One Campbell Plaza | 1 Campbell Plz
Already a member? Log In
Hmm, there seems to have been an error sending your message. Please try again.
Thanks! Your message was sent.










