Your email has been sent.
The Western Pacific - CREATIVE OFFICE SPACE 1031 S Broadway 5,040 - 170,968 SF of Office Space Available in Los Angeles, CA 90015



All Available Spaces(11)
Display Rental Rate as
- Space
- Size
- Term
- Rental Rate
- Space Use
- Condition
- Available
Move-in ready spec suite featuring high-end finishes, open ceiling, skylights and beautiful exposed red brick.
- Mostly Open Floor Plan Layout
- 2 Conference Rooms
- Central Air Conditioning
- High Ceilings
- Natural Light
- 6 Private Offices
- Space is in Excellent Condition
- Kitchen
- Exposed Ceiling
- Shower Facilities
Move-in ready, creative spec suite.
- Mostly Open Floor Plan Layout
- Space is in Excellent Condition
Move-in ready creative spec suite.
- Mostly Open Floor Plan Layout
- 1 Conference Room
- Space is in Excellent Condition
- 3 Private Offices
- 44 Workstations
- Reception Area
Core and shell condition. Generous build-to-suit package available featuring high-end finishes, open ceilings and beautiful exposed red brick.
- Open Floor Plan Layout
- Space is in Excellent Condition
Core and shell condition. Generous build-to-suit package available featuring high-end finishes, open ceilings and beautiful exposed red brick.
- Mostly Open Floor Plan Layout
- Can be combined with additional space(s) for up to 140,104 SF of adjacent space
- Space is in Excellent Condition
- Full floors may be divisible
Move-in ready, creative office space with high-end finishes.
- Fully Built-Out as Standard Office
- Space is in Excellent Condition
- Fully Furnished
- Mostly Open Floor Plan Layout
- Can be combined with additional space(s) for up to 140,104 SF of adjacent space
Move-in ready, creative office space with high-end finishes.
- Fully Built-Out as Standard Office
- Space is in Excellent Condition
- Fully Furnished
- Mostly Open Floor Plan Layout
- Can be combined with additional space(s) for up to 140,104 SF of adjacent space
- Partially Built-Out as Standard Office
- Space is in Excellent Condition
- Mostly Open Floor Plan Layout
- Can be combined with additional space(s) for up to 140,104 SF of adjacent space
- Partially Built-Out as Standard Office
- Space is in Excellent Condition
- Mostly Open Floor Plan Layout
- Can be combined with additional space(s) for up to 140,104 SF of adjacent space
- Partially Built-Out as Standard Office
- Space is in Excellent Condition
- Mostly Open Floor Plan Layout
- Can be combined with additional space(s) for up to 140,104 SF of adjacent space
- Partially Built-Out as Standard Office
- Space is in Excellent Condition
- Mostly Open Floor Plan Layout
- Can be combined with additional space(s) for up to 140,104 SF of adjacent space
| Space | Size | Term | Rental Rate | Space Use | Condition | Available |
| 2nd Floor, Ste 250 | 9,036 SF | Negotiable | Upon Request Upon Request Upon Request Upon Request | Office | Spec Suite | Now |
| 3rd Floor, Ste 350 | 6,394 SF | Negotiable | Upon Request Upon Request Upon Request Upon Request | Office | Full Build-Out | May 01, 2026 |
| 5th Floor, Ste 505 | 5,040 SF | Negotiable | Upon Request Upon Request Upon Request Upon Request | Office | Spec Suite | Now |
| 5th Floor, Ste 510 | 10,394 SF | Negotiable | Upon Request Upon Request Upon Request Upon Request | Office | Shell Space | Now |
| 6th Floor, Ste 600 | 10,000-20,000 SF | Negotiable | Upon Request Upon Request Upon Request Upon Request | Office | Shell Space | Now |
| 7th Floor, Ste 700 | 20,102 SF | Negotiable | Upon Request Upon Request Upon Request Upon Request | Office | Full Build-Out | Now |
| 8th Floor, Ste 800 | 20,102 SF | Negotiable | Upon Request Upon Request Upon Request Upon Request | Office | Full Build-Out | Now |
| 9th Floor, Ste 900 | 20,102 SF | Negotiable | Upon Request Upon Request Upon Request Upon Request | Office | Partial Build-Out | Now |
| 10th Floor, Ste 1000 | 20,102 SF | Negotiable | Upon Request Upon Request Upon Request Upon Request | Office | Partial Build-Out | Now |
| 11th Floor, Ste 1100 | 19,995 SF | Negotiable | Upon Request Upon Request Upon Request Upon Request | Office | Partial Build-Out | Now |
| 12th Floor, Ste 1200 | 19,701 SF | Negotiable | Upon Request Upon Request Upon Request Upon Request | Office | Partial Build-Out | Now |
2nd Floor, Ste 250
| Size |
| 9,036 SF |
| Term |
| Negotiable |
| Rental Rate |
| Upon Request Upon Request Upon Request Upon Request |
| Space Use |
| Office |
| Condition |
| Spec Suite |
| Available |
| Now |
3rd Floor, Ste 350
| Size |
| 6,394 SF |
| Term |
| Negotiable |
| Rental Rate |
| Upon Request Upon Request Upon Request Upon Request |
| Space Use |
| Office |
| Condition |
| Full Build-Out |
| Available |
| May 01, 2026 |
5th Floor, Ste 505
| Size |
| 5,040 SF |
| Term |
| Negotiable |
| Rental Rate |
| Upon Request Upon Request Upon Request Upon Request |
| Space Use |
| Office |
| Condition |
| Spec Suite |
| Available |
| Now |
5th Floor, Ste 510
| Size |
| 10,394 SF |
| Term |
| Negotiable |
| Rental Rate |
| Upon Request Upon Request Upon Request Upon Request |
| Space Use |
| Office |
| Condition |
| Shell Space |
| Available |
| Now |
6th Floor, Ste 600
| Size |
| 10,000-20,000 SF |
| Term |
| Negotiable |
| Rental Rate |
| Upon Request Upon Request Upon Request Upon Request |
| Space Use |
| Office |
| Condition |
| Shell Space |
| Available |
| Now |
7th Floor, Ste 700
| Size |
| 20,102 SF |
| Term |
| Negotiable |
| Rental Rate |
| Upon Request Upon Request Upon Request Upon Request |
| Space Use |
| Office |
| Condition |
| Full Build-Out |
| Available |
| Now |
8th Floor, Ste 800
| Size |
| 20,102 SF |
| Term |
| Negotiable |
| Rental Rate |
| Upon Request Upon Request Upon Request Upon Request |
| Space Use |
| Office |
| Condition |
| Full Build-Out |
| Available |
| Now |
9th Floor, Ste 900
| Size |
| 20,102 SF |
| Term |
| Negotiable |
| Rental Rate |
| Upon Request Upon Request Upon Request Upon Request |
| Space Use |
| Office |
| Condition |
| Partial Build-Out |
| Available |
| Now |
10th Floor, Ste 1000
| Size |
| 20,102 SF |
| Term |
| Negotiable |
| Rental Rate |
| Upon Request Upon Request Upon Request Upon Request |
| Space Use |
| Office |
| Condition |
| Partial Build-Out |
| Available |
| Now |
11th Floor, Ste 1100
| Size |
| 19,995 SF |
| Term |
| Negotiable |
| Rental Rate |
| Upon Request Upon Request Upon Request Upon Request |
| Space Use |
| Office |
| Condition |
| Partial Build-Out |
| Available |
| Now |
12th Floor, Ste 1200
| Size |
| 19,701 SF |
| Term |
| Negotiable |
| Rental Rate |
| Upon Request Upon Request Upon Request Upon Request |
| Space Use |
| Office |
| Condition |
| Partial Build-Out |
| Available |
| Now |
2nd Floor, Ste 250
| Size | 9,036 SF |
| Term | Negotiable |
| Rental Rate | Upon Request |
| Space Use | Office |
| Condition | Spec Suite |
| Available | Now |
Move-in ready spec suite featuring high-end finishes, open ceiling, skylights and beautiful exposed red brick.
- Mostly Open Floor Plan Layout
- 6 Private Offices
- 2 Conference Rooms
- Space is in Excellent Condition
- Central Air Conditioning
- Kitchen
- High Ceilings
- Exposed Ceiling
- Natural Light
- Shower Facilities
3rd Floor, Ste 350
| Size | 6,394 SF |
| Term | Negotiable |
| Rental Rate | Upon Request |
| Space Use | Office |
| Condition | Full Build-Out |
| Available | May 01, 2026 |
Move-in ready, creative spec suite.
- Mostly Open Floor Plan Layout
- Space is in Excellent Condition
5th Floor, Ste 505
| Size | 5,040 SF |
| Term | Negotiable |
| Rental Rate | Upon Request |
| Space Use | Office |
| Condition | Spec Suite |
| Available | Now |
Move-in ready creative spec suite.
- Mostly Open Floor Plan Layout
- 3 Private Offices
- 1 Conference Room
- 44 Workstations
- Space is in Excellent Condition
- Reception Area
5th Floor, Ste 510
| Size | 10,394 SF |
| Term | Negotiable |
| Rental Rate | Upon Request |
| Space Use | Office |
| Condition | Shell Space |
| Available | Now |
Core and shell condition. Generous build-to-suit package available featuring high-end finishes, open ceilings and beautiful exposed red brick.
- Open Floor Plan Layout
- Space is in Excellent Condition
6th Floor, Ste 600
| Size | 10,000-20,000 SF |
| Term | Negotiable |
| Rental Rate | Upon Request |
| Space Use | Office |
| Condition | Shell Space |
| Available | Now |
Core and shell condition. Generous build-to-suit package available featuring high-end finishes, open ceilings and beautiful exposed red brick.
- Mostly Open Floor Plan Layout
- Space is in Excellent Condition
- Can be combined with additional space(s) for up to 140,104 SF of adjacent space
- Full floors may be divisible
7th Floor, Ste 700
| Size | 20,102 SF |
| Term | Negotiable |
| Rental Rate | Upon Request |
| Space Use | Office |
| Condition | Full Build-Out |
| Available | Now |
Move-in ready, creative office space with high-end finishes.
- Fully Built-Out as Standard Office
- Mostly Open Floor Plan Layout
- Space is in Excellent Condition
- Can be combined with additional space(s) for up to 140,104 SF of adjacent space
- Fully Furnished
8th Floor, Ste 800
| Size | 20,102 SF |
| Term | Negotiable |
| Rental Rate | Upon Request |
| Space Use | Office |
| Condition | Full Build-Out |
| Available | Now |
Move-in ready, creative office space with high-end finishes.
- Fully Built-Out as Standard Office
- Mostly Open Floor Plan Layout
- Space is in Excellent Condition
- Can be combined with additional space(s) for up to 140,104 SF of adjacent space
- Fully Furnished
9th Floor, Ste 900
| Size | 20,102 SF |
| Term | Negotiable |
| Rental Rate | Upon Request |
| Space Use | Office |
| Condition | Partial Build-Out |
| Available | Now |
- Partially Built-Out as Standard Office
- Mostly Open Floor Plan Layout
- Space is in Excellent Condition
- Can be combined with additional space(s) for up to 140,104 SF of adjacent space
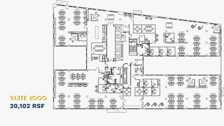
10th Floor, Ste 1000
| Size | 20,102 SF |
| Term | Negotiable |
| Rental Rate | Upon Request |
| Space Use | Office |
| Condition | Partial Build-Out |
| Available | Now |
- Partially Built-Out as Standard Office
- Mostly Open Floor Plan Layout
- Space is in Excellent Condition
- Can be combined with additional space(s) for up to 140,104 SF of adjacent space
11th Floor, Ste 1100
| Size | 19,995 SF |
| Term | Negotiable |
| Rental Rate | Upon Request |
| Space Use | Office |
| Condition | Partial Build-Out |
| Available | Now |
- Partially Built-Out as Standard Office
- Mostly Open Floor Plan Layout
- Space is in Excellent Condition
- Can be combined with additional space(s) for up to 140,104 SF of adjacent space
12th Floor, Ste 1200
| Size | 19,701 SF |
| Term | Negotiable |
| Rental Rate | Upon Request |
| Space Use | Office |
| Condition | Partial Build-Out |
| Available | Now |
- Partially Built-Out as Standard Office
- Mostly Open Floor Plan Layout
- Space is in Excellent Condition
- Can be combined with additional space(s) for up to 140,104 SF of adjacent space
Features and Amenities
- 24 Hour Access
- Bus Line
- Conferencing Facility
- Fitness Center
- Roof Terrace
Property Facts
Presented by
The Western Pacific - CREATIVE OFFICE SPACE | 1031 S Broadway
Hmm, there seems to have been an error sending your message. Please try again.
Thanks! Your message was sent.






















