Enter your email to login or create a free account
This feature is unavailable at the moment.
We apologize, but the feature you are trying to access is currently unavailable. We are aware of this issue and our team is working hard to resolve the matter.
Please check back in a few minutes. We apologize for the inconvenience.
- LoopNet Team
106 S Linn St
Iowa City, IA 52240
Property For Lease

Highlights
- Prime retail space available for sublease in the heart of Downtown Iowa City.
Property Facts
| Property Type | Retail | Year Built | 1925 |
| Gross Leasable Area | 31,048 SF |
| Property Type | Retail |
| Gross Leasable Area | 31,048 SF |
| Year Built | 1925 |
About the Property
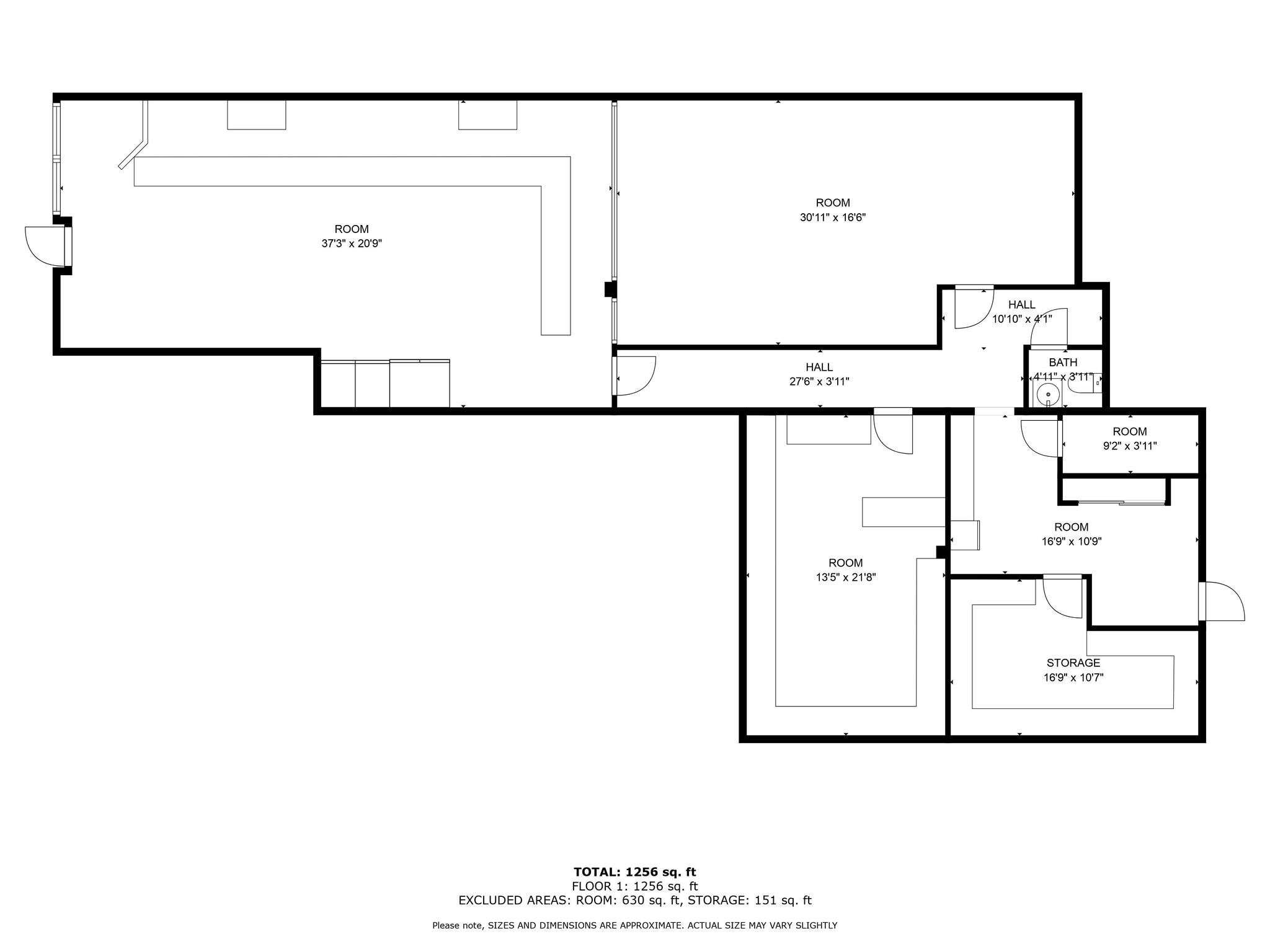
Prime retail space available for sublease in the heart of Downtown Iowa City. This 2,250 sq. ft. property features a gross lease. Located near the University of Iowa campus, this high-visibility space benefits from significant foot traffic and proximity to popular restaurants, the Pedestrian Mall and Old Capitol Mall, and public transit. The open layout provides flexibility for a variety of retail or service uses. Gross monthly rent is $6,240. This is a sublease. Uses must be approved by the building owner. Current lessee is offering a $7/SF/YR discount for 6 months. Showings only allowed during business hours.
Listing ID: 35082448
Date on Market: 3/10/2025
Last Updated:
Address: 106 S Linn St, Iowa City, IA 52240
The Downtown Iowa City Retail Property at 106 S Linn St, Iowa City, IA 52240 is no longer being advertised on LoopNet.com. Contact the broker for information on availability.
RETAIL PROPERTIES IN NEARBY NEIGHBORHOODS
NEARBY LISTINGS
- 1708 5th St, Coralville IA
- 300 S Clinton St, Iowa City IA
- 1451 Coral Ridge Ave, Coralville IA
- 1220 Gilbert Ct, Iowa City IA
- 2630 Independence Rd, Iowa City IA
- 2515 Corridor Way, Coralville IA
- James Street & Coral Ridge ave, Coralville IA
- 500 S Clinton St, Iowa City IA
- 2500 Highway 6 E, Iowa City IA
- 2500 Corridor Way Rd, Coralville IA
- 2839 Northgate Dr, Iowa City IA
- 1011 Highway 1 W, Iowa City IA
- 2655 James St, Coralville IA
- 520 10th Ave, Coralville IA
- 2 Rocky Shore Dr, Iowa City IA
