Enter your email to login or create a free account
This feature is unavailable at the moment.
We apologize, but the feature you are trying to access is currently unavailable. We are aware of this issue and our team is working hard to resolve the matter.
Please check back in a few minutes. We apologize for the inconvenience.
- LoopNet Team
108 E Main St
Durham, NC 27701
Retail Property For Sale

Property Facts
Amenities
- Bus Line
- Security System
- Signage
- Skylights
- Tenant Controlled HVAC
- Air Conditioning
About 108 E MAIN ST , DURHAM, NC 27701
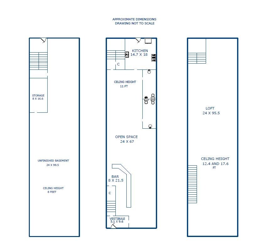
There's tons of potential in this property known as the former "Talk of the Town" blues nightclub and restaurant. Includes basement space plus two additional floors-both first and second floors have street front windows- a renovated building might include a highly desirable residence overlooking E Main St. With the Courthouse a short walk away, this could become a perfect/ live work space for lawyers looking for a spot right in the middle of the dynamic Bull City. Just a few minutes walk from restaurants, hotels, downtown offices, DPAC, American Tobacco Campus and Durham Bulls Athletic Park, with both on street parking and a City deck directly behind the Property, downtown Durham could also see a New Blues Bistro here!
Property Taxes
| Parcel Number | 102848 | Improvements Assessment | $909,858 |
| Land Assessment | $578,575 | Total Assessment | $1,488,433 |
Property Taxes
Listing ID: 16274645
Date on Market: 6/7/2019
Last Updated:
Address: 108 E Main St, Durham, NC 27701
The City Center Durham Retail Property at 108 E Main St, Durham, NC 27701 is no longer being advertised on LoopNet.com. Contact the broker for information on availability.
