Your email has been sent.
Crown Life Building 120 Bloor St E 33,239 - 100,050 SF of Office Space Available in Toronto, ON M4W 3R9



Highlights
- Transit easily accessible - Steps from the two major TTC subway lines at the Bloor-Yonge station.
- Outdoor courtyard available for tenant functions, collaborations meetings and general tenant use.
- Convenient access to the major vehicle commuter routes including the DVP, Mount Pleasant Road, Jarvis Street and Avenue Road.
- Dedicated indoor bike room with secure access, change room facilities including showers, and repair station.
All Available Spaces(3)
Display Rental Rate as
- Space
- Size
- Term
- Rental Rate
- Space Use
- Condition
- Available
Office space available for lease now.
- Lease rate does not include utilities, property expenses or building services
- Open Floor Plan Layout
- Fully Built-Out as Standard Office
- Can be combined with additional space(s) for up to 100,050 SF of adjacent space
There is easy access to the Don Valley Parkway and the Yonge/Bloor subway line is steps away. The Bloor Street corridor has recently undergone a major revitalization, with significant and substantial new retail and residential development projects completed and underway. There is also Mad Radish and Ichiriki Japanese on site. 120 Bloor Street East is a building that combines classic architecture with state-of-the-art building systems. The building has abundant private parking with 124 underground stalls. The building was constructed in 1953 and underwent extensive mechanical and cosmetic upgrades in 1999–2000. Adgar is firmly committed to environmental responsibility within our portfolio. We continually seek ways to efficiently operate the building, reduce our carbon footprint and improve energy performance through energy saving initiatives, waste reduction initiatives and mechanical improvements. 120 Bloor Street East has achieved a BOMA BEST Silver Certification.
- Lease rate does not include utilities, property expenses or building services
- Open Floor Plan Layout
- Fully Built-Out as Standard Office
- Can be combined with additional space(s) for up to 100,050 SF of adjacent space
- Lease rate does not include utilities, property expenses or building services
- Open Floor Plan Layout
- Fully Built-Out as Standard Office
- Can be combined with additional space(s) for up to 100,050 SF of adjacent space
| Space | Size | Term | Rental Rate | Space Use | Condition | Available |
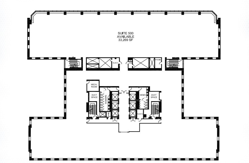
| 5th Floor, Ste 500 | 33,239 SF | 5-10 Years | Upon Request Upon Request Upon Request Upon Request | Office | Full Build-Out | Now |
| 6th Floor, Ste 600 | 33,403 SF | 5-10 Years | Upon Request Upon Request Upon Request Upon Request | Office | Full Build-Out | Now |
| 7th Floor, Ste 700 | 33,408 SF | 5-10 Years | Upon Request Upon Request Upon Request Upon Request | Office | Full Build-Out | Now |
5th Floor, Ste 500
| Size |
| 33,239 SF |
| Term |
| 5-10 Years |
| Rental Rate |
| Upon Request Upon Request Upon Request Upon Request |
| Space Use |
| Office |
| Condition |
| Full Build-Out |
| Available |
| Now |
6th Floor, Ste 600
| Size |
| 33,403 SF |
| Term |
| 5-10 Years |
| Rental Rate |
| Upon Request Upon Request Upon Request Upon Request |
| Space Use |
| Office |
| Condition |
| Full Build-Out |
| Available |
| Now |
7th Floor, Ste 700
| Size |
| 33,408 SF |
| Term |
| 5-10 Years |
| Rental Rate |
| Upon Request Upon Request Upon Request Upon Request |
| Space Use |
| Office |
| Condition |
| Full Build-Out |
| Available |
| Now |
5th Floor, Ste 500
| Size | 33,239 SF |
| Term | 5-10 Years |
| Rental Rate | Upon Request |
| Space Use | Office |
| Condition | Full Build-Out |
| Available | Now |
Office space available for lease now.
- Lease rate does not include utilities, property expenses or building services
- Fully Built-Out as Standard Office
- Open Floor Plan Layout
- Can be combined with additional space(s) for up to 100,050 SF of adjacent space
6th Floor, Ste 600
| Size | 33,403 SF |
| Term | 5-10 Years |
| Rental Rate | Upon Request |
| Space Use | Office |
| Condition | Full Build-Out |
| Available | Now |
There is easy access to the Don Valley Parkway and the Yonge/Bloor subway line is steps away. The Bloor Street corridor has recently undergone a major revitalization, with significant and substantial new retail and residential development projects completed and underway. There is also Mad Radish and Ichiriki Japanese on site. 120 Bloor Street East is a building that combines classic architecture with state-of-the-art building systems. The building has abundant private parking with 124 underground stalls. The building was constructed in 1953 and underwent extensive mechanical and cosmetic upgrades in 1999–2000. Adgar is firmly committed to environmental responsibility within our portfolio. We continually seek ways to efficiently operate the building, reduce our carbon footprint and improve energy performance through energy saving initiatives, waste reduction initiatives and mechanical improvements. 120 Bloor Street East has achieved a BOMA BEST Silver Certification.
- Lease rate does not include utilities, property expenses or building services
- Fully Built-Out as Standard Office
- Open Floor Plan Layout
- Can be combined with additional space(s) for up to 100,050 SF of adjacent space
7th Floor, Ste 700
| Size | 33,408 SF |
| Term | 5-10 Years |
| Rental Rate | Upon Request |
| Space Use | Office |
| Condition | Full Build-Out |
| Available | Now |
- Lease rate does not include utilities, property expenses or building services
- Fully Built-Out as Standard Office
- Open Floor Plan Layout
- Can be combined with additional space(s) for up to 100,050 SF of adjacent space
Property Overview
120 Bloor Street East has achieved a BOMA BESt (Building Environmental Standards) Certification. There is easy access to the Don Valley Parkway and the Yonge/Bloor subway line is steps away. The Bloor Street corridor has recently undergone a major revitalization, with significant and substantial new retail and residential development projects completed and underway.
- Bus Line
- Convenience Store
- Dry Cleaner
- Metro/Subway
- Restaurant
- Security System
- Signage
Property Facts
Select Tenants
- Floor
- Tenant Name
- 1st
- 360 Eyecare Rosedale
- BSMT
- Dawson Dental - Rosedale Dental Care Centre
- 1st
- IBM
- 1st
- Ichiriki Japanese Restaurant
- 1st
- Mad Radish
- Multiple
- Rosedale Wellness Centre
- 1st
- Sunset Grill
Presented by
Crown Life Building | 120 Bloor St E
Hmm, there seems to have been an error sending your message. Please try again.
Thanks! Your message was sent.






