Your email has been sent.
Park Highlights
- Park like settings featuring modern drought tolerant landscaping
- Immediate access to the 405 and 55 Freeways
- Thoughtfully designed office space and warehouse suites with skylights
Park Facts
| Total Space Available | 26,896 SF | Park Type | Office Park |
| Total Space Available | 26,896 SF |
| Park Type | Office Park |
Display Rental Rate as
- Space
- Size
- Term
- Rental Rate
- Space Use
- Build-Out
- Available
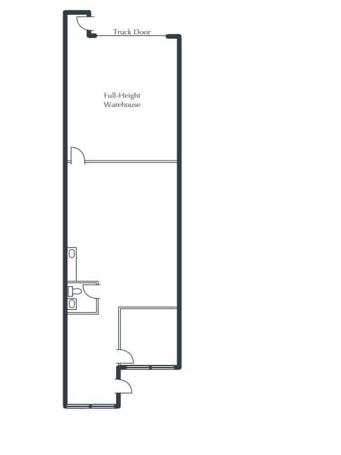
Reception - 5 Window Offices - 3 Interior Offices - Conference Room - 3 Restrooms - Kitchen - Storage Closet - Open Work Area - Ground-Level Truck Door - Approximately 1,023 sq. ft. of Full-Height Warehouse - Part of a Professionally Managed Business Park
- Lease rate does not include utilities, property expenses or building services
- Reception Area
- Ground-Level Truck Door -
- Includes 3,492 SF of dedicated office space
- Private Restrooms
- Approx 1,023 sq. ft. of Full-Height Warehouse
| Space | Size | Term | Rental Rate | Space Use | Build-Out | Available |
| 1st Floor - A | 4,515 SF | 3 Years | $21.00 /SF/YR $1.75 /SF/MO $94,815 /YR $7,901 /MO | Flex | - | Now |
18251 W McDurmott - 1st Floor - A
- Space
- Size
- Term
- Rental Rate
- Space Use
- Build-Out
- Available
Reception - 2 Window Offices - Interior Office - Restroom - Coffee Bar - Open Work Area - Part of a Professionally Managed Business Park
- Lease rate does not include utilities, property expenses or building services
- Reception Area
- 2 Window Offices - Interior Office
- Includes 1,452 SF of dedicated office space
- Private Restrooms
- Coffee Bar
| Space | Size | Term | Rental Rate | Space Use | Build-Out | Available |
| 1st Floor - A1 | 1,452 SF | 3 Years | $21.00 /SF/YR $1.75 /SF/MO $30,492 /YR $2,541 /MO | Flex | - | Now |
18271 W McDurmott - 1st Floor - A1
- Space
- Size
- Term
- Rental Rate
- Space Use
- Build-Out
- Available
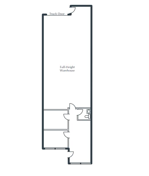
Reception - 5 Window Offices - 2 Interior Offices - 3 Restrooms - Kitchen - Large Open Work Area - Ground-Level Truck Door - Approximately 800 sq. ft. of Full-Height Warehouse - Part of a Professionally Managed Business Park
- Lease rate does not include utilities, property expenses or building services
- Reception Area
- Ground-Level Truck Door
- Includes 2,970 SF of dedicated office space
- Private Restrooms
- Approximately 800 sq. ft. of Full-Height Warehouse
| Space | Size | Term | Rental Rate | Space Use | Build-Out | Available |
| 1st Floor - D & E | 3,770 SF | 3-5 Years | $19.80 /SF/YR $1.65 /SF/MO $74,646 /YR $6,221 /MO | Flex | - | Now |
18200 W McDurmott - 1st Floor - D & E
- Space
- Size
- Term
- Rental Rate
- Space Use
- Build-Out
- Available
Reception - 2 Window Offices - Conference Room - 2 Restrooms - Coffee Bar - Large Open Work Area - Ground-Level Truck Door - Approximately 528 sq. ft. of Full-Height Warehouse - Part of a Professionally Managed Business Park
- Lease rate does not include utilities, property expenses or building services
- Reception Area
- Large Open Work Area -
- Includes 1,560 SF of dedicated office space
- Private Restrooms
- Ground-Level Truck Door
Reception - Restroom - Storage Closet - Large Open Work Areas - Ground-Level Truck Door - Approximately 500 sq. ft. of Full-Height Warehouse - Part of a Professionally Managed Business Park
- Lease rate does not include utilities, property expenses or building services
- Reception Area
- Ground-Level Truck Door
- Includes 800 SF of dedicated office space
- Private Restrooms
- Large Open Work Areas
| Space | Size | Term | Rental Rate | Space Use | Build-Out | Available |
| 1st Floor - F | 1,560 SF | 3 Years | $21.00 /SF/YR $1.75 /SF/MO $32,760 /YR $2,730 /MO | Flex | - | Now |
| 1st Floor - G | 1,300 SF | 3 Years | $21.00 /SF/YR $1.75 /SF/MO $27,300 /YR $2,275 /MO | Flex | - | Now |
18226 W McDurmott - 1st Floor - F
18226 W McDurmott - 1st Floor - G
- Space
- Size
- Term
- Rental Rate
- Space Use
- Build-Out
- Available
Reception - Window Office - Interior Office - Restroom - Storage Room - Large Open Work Area - Ground-Level Truck Door - Approximately 696 sq. ft. of Full-Height Warehouse - Part of a Professionally Managed Business Park
- Lease rate does not include utilities, property expenses or building services
- Reception Area
- Ground-Level Truck Door
- Includes 1,044 SF of dedicated office space
- Private Restrooms
- Approximately 696 sq. ft. of Full-Height Warehouse
| Space | Size | Term | Rental Rate | Space Use | Build-Out | Available |
| 1st Floor - F | 1,740 SF | 3 Years | $21.00 /SF/YR $1.75 /SF/MO $36,540 /YR $3,045 /MO | Flex | - | Now |
18242 W McDurmott - 1st Floor - F
- Space
- Size
- Term
- Rental Rate
- Space Use
- Build-Out
- Available
Reception - 5 Window Offices - 3 Interior Offices - Conference Room - 3 Restrooms - Kitchen - Storage Closet - Open Work Area - Ground-Level Truck Door - Approximately 1,023 sq. ft. of Full-Height Warehouse - Part of a Professionally Managed Business Park
- Lease rate does not include utilities, property expenses or building services
- Reception Area
- Ground-Level Truck Door -
- Includes 3,492 SF of dedicated office space
- Private Restrooms
- Approx 1,023 sq. ft. of Full-Height Warehouse
| Space | Size | Term | Rental Rate | Space Use | Build-Out | Available |
| 1st Floor - A | 4,515 SF | 3 Years | $21.00 /SF/YR $1.75 /SF/MO $94,815 /YR $7,901 /MO | Flex | - | Now |
18251 W McDurmott - 1st Floor - A
- Space
- Size
- Term
- Rental Rate
- Space Use
- Build-Out
- Available
Reception - 5 Window Offices - Interior Office - Conference Room - Break Area - 3 Storage Closets - Large Open Work Area Part of a Professionally Managed Business Park
- Rate includes utilities, building services and property expenses
- Conference Rooms
- Conference Room -
- Fits 12 - 38 People
- Reception Area
- Break Area -
Reception - Window Office - 3 Interior Offices - Conference Room - Kitchen - Storage Room - Large Open Work Area - Part of a Professionally Managed Business Park
- Rate includes utilities, building services and property expenses
- 1 Conference Room
- Kitchen
- Fits 8 - 25 People
- Reception Area
- Storage Room
Reception - 4 Window Offices - Conference Room - Kitchen - Server Closet - Open Work Area - Part of a Professionally Managed Business Park
- Fits 7 - 23 People
- Reception Area
- Server Closet
- Kitchen
- Conference Rooms
- Open-Plan
- 4 Window Offices
| Space | Size | Term | Rental Rate | Space Use | Build-Out | Available |
| 1st Floor, Ste A | 4,728 SF | 3 Years | Upon Request Upon Request Upon Request Upon Request | Office | - | Now |
| 1st Floor, Ste B | 3,081 SF | 3 Years | Upon Request Upon Request Upon Request Upon Request | Office | - | Now |
| 2nd Floor, Ste H | 2,800 SF | Negotiable | Upon Request Upon Request Upon Request Upon Request | Office | - | Now |
1200 Main St - 1st Floor - Ste A
1200 Main St - 1st Floor - Ste B
1200 Main St - 2nd Floor - Ste H
- Space
- Size
- Term
- Rental Rate
- Space Use
- Build-Out
- Available
Reception - 2 Window Offices - Interior Office - Restroom - Coffee Bar - Open Work Area - Part of a Professionally Managed Business Park
- Lease rate does not include utilities, property expenses or building services
- Reception Area
- 2 Window Offices - Interior Office
- Includes 1,452 SF of dedicated office space
- Private Restrooms
- Coffee Bar
| Space | Size | Term | Rental Rate | Space Use | Build-Out | Available |
| 1st Floor - A1 | 1,452 SF | 3 Years | $21.00 /SF/YR $1.75 /SF/MO $30,492 /YR $2,541 /MO | Flex | - | Now |
18271 W McDurmott - 1st Floor - A1
- Space
- Size
- Term
- Rental Rate
- Space Use
- Build-Out
- Available
Reception - 5 Window Offices - 2 Interior Offices - 3 Restrooms - Kitchen - Large Open Work Area - Ground-Level Truck Door - Approximately 800 sq. ft. of Full-Height Warehouse - Part of a Professionally Managed Business Park
- Lease rate does not include utilities, property expenses or building services
- Reception Area
- Ground-Level Truck Door
- Includes 2,970 SF of dedicated office space
- Private Restrooms
- Approximately 800 sq. ft. of Full-Height Warehouse
| Space | Size | Term | Rental Rate | Space Use | Build-Out | Available |
| 1st Floor - D & E | 3,770 SF | 3-5 Years | $19.80 /SF/YR $1.65 /SF/MO $74,646 /YR $6,221 /MO | Flex | - | Now |
18200 W McDurmott - 1st Floor - D & E
- Space
- Size
- Term
- Rental Rate
- Space Use
- Build-Out
- Available
Reception - 2 Window Offices - Conference Room - 2 Restrooms - Coffee Bar - Large Open Work Area - Ground-Level Truck Door - Approximately 528 sq. ft. of Full-Height Warehouse - Part of a Professionally Managed Business Park
- Lease rate does not include utilities, property expenses or building services
- Reception Area
- Large Open Work Area -
- Includes 1,560 SF of dedicated office space
- Private Restrooms
- Ground-Level Truck Door
Reception - Restroom - Storage Closet - Large Open Work Areas - Ground-Level Truck Door - Approximately 500 sq. ft. of Full-Height Warehouse - Part of a Professionally Managed Business Park
- Lease rate does not include utilities, property expenses or building services
- Reception Area
- Ground-Level Truck Door
- Includes 800 SF of dedicated office space
- Private Restrooms
- Large Open Work Areas
Reception - 2 Interior Offices - Restroom - Coffee Bar - Large Open Work Area - Part of a Professionally Managed Business Park
- Lease rate does not include utilities, property expenses or building services
- Reception Area
- Coffee Bar -
- Fits 5 - 16 People
- Private Restrooms
- Large Open Work Area -
| Space | Size | Term | Rental Rate | Space Use | Build-Out | Available |
| 1st Floor - F | 1,560 SF | 3 Years | $21.00 /SF/YR $1.75 /SF/MO $32,760 /YR $2,730 /MO | Flex | - | Now |
| 1st Floor - G | 1,300 SF | 3 Years | $21.00 /SF/YR $1.75 /SF/MO $27,300 /YR $2,275 /MO | Flex | - | Now |
| 1st Floor, Ste H | 1,950 SF | 3 Years | $21.00 /SF/YR $1.75 /SF/MO $40,950 /YR $3,413 /MO | Office | - | Now |
18226 W McDurmott - 1st Floor - F
18226 W McDurmott - 1st Floor - G
18226 W McDurmott - 1st Floor - Ste H
- Space
- Size
- Term
- Rental Rate
- Space Use
- Build-Out
- Available
Reception - Window Office - Interior Office - Restroom - Storage Room - Large Open Work Area - Ground-Level Truck Door - Approximately 696 sq. ft. of Full-Height Warehouse - Part of a Professionally Managed Business Park
- Lease rate does not include utilities, property expenses or building services
- Reception Area
- Ground-Level Truck Door
- Includes 1,044 SF of dedicated office space
- Private Restrooms
- Approximately 696 sq. ft. of Full-Height Warehouse
| Space | Size | Term | Rental Rate | Space Use | Build-Out | Available |
| 1st Floor - F | 1,740 SF | 3 Years | $21.00 /SF/YR $1.75 /SF/MO $36,540 /YR $3,045 /MO | Flex | - | Now |
18242 W McDurmott - 1st Floor - F
18251 W McDurmott - 1st Floor - A
| Size | 4,515 SF |
| Term | 3 Years |
| Rental Rate | $21.00 /SF/YR |
| Space Use | Flex |
| Build-Out | - |
| Available | Now |
Reception - 5 Window Offices - 3 Interior Offices - Conference Room - 3 Restrooms - Kitchen - Storage Closet - Open Work Area - Ground-Level Truck Door - Approximately 1,023 sq. ft. of Full-Height Warehouse - Part of a Professionally Managed Business Park
- Lease rate does not include utilities, property expenses or building services
- Includes 3,492 SF of dedicated office space
- Reception Area
- Private Restrooms
- Ground-Level Truck Door -
- Approx 1,023 sq. ft. of Full-Height Warehouse
1200 Main St - 1st Floor - Ste A
| Size | 4,728 SF |
| Term | 3 Years |
| Rental Rate | Upon Request |
| Space Use | Office |
| Build-Out | - |
| Available | Now |
Reception - 5 Window Offices - Interior Office - Conference Room - Break Area - 3 Storage Closets - Large Open Work Area Part of a Professionally Managed Business Park
- Rate includes utilities, building services and property expenses
- Fits 12 - 38 People
- Conference Rooms
- Reception Area
- Conference Room -
- Break Area -
1200 Main St - 1st Floor - Ste B
| Size | 3,081 SF |
| Term | 3 Years |
| Rental Rate | Upon Request |
| Space Use | Office |
| Build-Out | - |
| Available | Now |
Reception - Window Office - 3 Interior Offices - Conference Room - Kitchen - Storage Room - Large Open Work Area - Part of a Professionally Managed Business Park
- Rate includes utilities, building services and property expenses
- Fits 8 - 25 People
- 1 Conference Room
- Reception Area
- Kitchen
- Storage Room
1200 Main St - 2nd Floor - Ste H
| Size | 2,800 SF |
| Term | Negotiable |
| Rental Rate | Upon Request |
| Space Use | Office |
| Build-Out | - |
| Available | Now |
Reception - 4 Window Offices - Conference Room - Kitchen - Server Closet - Open Work Area - Part of a Professionally Managed Business Park
- Fits 7 - 23 People
- Conference Rooms
- Reception Area
- Open-Plan
- Server Closet
- 4 Window Offices
- Kitchen
18271 W McDurmott - 1st Floor - A1
| Size | 1,452 SF |
| Term | 3 Years |
| Rental Rate | $21.00 /SF/YR |
| Space Use | Flex |
| Build-Out | - |
| Available | Now |
Reception - 2 Window Offices - Interior Office - Restroom - Coffee Bar - Open Work Area - Part of a Professionally Managed Business Park
- Lease rate does not include utilities, property expenses or building services
- Includes 1,452 SF of dedicated office space
- Reception Area
- Private Restrooms
- 2 Window Offices - Interior Office
- Coffee Bar
18200 W McDurmott - 1st Floor - D & E
| Size | 3,770 SF |
| Term | 3-5 Years |
| Rental Rate | $19.80 /SF/YR |
| Space Use | Flex |
| Build-Out | - |
| Available | Now |
Reception - 5 Window Offices - 2 Interior Offices - 3 Restrooms - Kitchen - Large Open Work Area - Ground-Level Truck Door - Approximately 800 sq. ft. of Full-Height Warehouse - Part of a Professionally Managed Business Park
- Lease rate does not include utilities, property expenses or building services
- Includes 2,970 SF of dedicated office space
- Reception Area
- Private Restrooms
- Ground-Level Truck Door
- Approximately 800 sq. ft. of Full-Height Warehouse
18226 W McDurmott - 1st Floor - F
| Size | 1,560 SF |
| Term | 3 Years |
| Rental Rate | $21.00 /SF/YR |
| Space Use | Flex |
| Build-Out | - |
| Available | Now |
Reception - 2 Window Offices - Conference Room - 2 Restrooms - Coffee Bar - Large Open Work Area - Ground-Level Truck Door - Approximately 528 sq. ft. of Full-Height Warehouse - Part of a Professionally Managed Business Park
- Lease rate does not include utilities, property expenses or building services
- Includes 1,560 SF of dedicated office space
- Reception Area
- Private Restrooms
- Large Open Work Area -
- Ground-Level Truck Door
18226 W McDurmott - 1st Floor - G
| Size | 1,300 SF |
| Term | 3 Years |
| Rental Rate | $21.00 /SF/YR |
| Space Use | Flex |
| Build-Out | - |
| Available | Now |
Reception - Restroom - Storage Closet - Large Open Work Areas - Ground-Level Truck Door - Approximately 500 sq. ft. of Full-Height Warehouse - Part of a Professionally Managed Business Park
- Lease rate does not include utilities, property expenses or building services
- Includes 800 SF of dedicated office space
- Reception Area
- Private Restrooms
- Ground-Level Truck Door
- Large Open Work Areas
18226 W McDurmott - 1st Floor - Ste H
| Size | 1,950 SF |
| Term | 3 Years |
| Rental Rate | $21.00 /SF/YR |
| Space Use | Office |
| Build-Out | - |
| Available | Now |
Reception - 2 Interior Offices - Restroom - Coffee Bar - Large Open Work Area - Part of a Professionally Managed Business Park
- Lease rate does not include utilities, property expenses or building services
- Fits 5 - 16 People
- Reception Area
- Private Restrooms
- Coffee Bar -
- Large Open Work Area -
18242 W McDurmott - 1st Floor - F
| Size | 1,740 SF |
| Term | 3 Years |
| Rental Rate | $21.00 /SF/YR |
| Space Use | Flex |
| Build-Out | - |
| Available | Now |
Reception - Window Office - Interior Office - Restroom - Storage Room - Large Open Work Area - Ground-Level Truck Door - Approximately 696 sq. ft. of Full-Height Warehouse - Part of a Professionally Managed Business Park
- Lease rate does not include utilities, property expenses or building services
- Includes 1,044 SF of dedicated office space
- Reception Area
- Private Restrooms
- Ground-Level Truck Door
- Approximately 696 sq. ft. of Full-Height Warehouse
Site Plan
Park Overview
Main & Redhill Business Center is a mixed-use commercial property consisting of fourteen 1-story flex buildings and one 2-story office building totaling 204,083 square feet. The recently-renovated property offers excellent signage, a sprawling landscape and easy accessibility to the "areas" amenities. Main & Redhill Business Center is in the heart of the Airport Area, sitting at the highly visible intersection of Main Street and Redhill Avenue.
Contact the Leasing Agent
Main and Redhill Business Center | Irvine, CA 92614























