Log In/Sign Up
Your email has been sent.
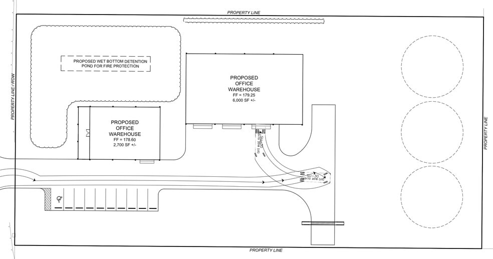
12465 FM 1314 Rd - Conroe Tx - Montgomery County 1.82 Acres of Commercial Land Offered at $549,900 in Conroe, TX 77302



Investment Highlights
- Heavy traffic
- Unrestricted
- Shovel Ready Site
Executive Summary
Prime investment in a cleared shovel ready commercial lot along FM 1314 in Conroe, TX. Unrestricted and just outside the city limits of Conroe. Bring your vision to life with this cleared, level and well shaped lot with almost 200’ of frontage along FM 1314 and 400’ deep. LAND Only with a build to suit option with an office/warehouse design already done with engineering and awaiting TXdot approval for new driveway culvert access. Geotechnical Soil report also done and available. Engineering plans can be conveyed to buyer with an acceptable offer if owner/user would like to develop on their own. Next door neighbors include a Dollar General and Exxon Gas Station. New gas station coming soon across the street. High traffic count and great visibility for any type of business. Easy access to downtown Conroe, I-45 and Loop 336
Property Facts Under Contract
| Price | $549,900 | Property Subtype | Commercial |
| Sale Type | Investment | Proposed Use | |
| Sale Conditions | Total Lot Size | 1.82 AC | |
| No. Lots | 1 | Opportunity Zone |
Yes
|
| Property Type | Land |
| Price | $549,900 |
| Sale Type | Investment |
| Sale Conditions | |
| No. Lots | 1 |
| Property Type | Land |
| Property Subtype | Commercial |
| Proposed Use | |
| Total Lot Size | 1.82 AC |
| Opportunity Zone |
Yes |
1 Lot Available
Lot
| Price | $549,900 | Lot Size | 1.82 AC |
| Price Per AC | $302,142.86 |
| Price | $549,900 |
| Price Per AC | $302,142.86 |
| Lot Size | 1.82 AC |
Cleared, shovel ready development. Flat topography with a border of trees left in the rear.
Not walkable
10/100
Exceptionally drivable
100/100
Fairly bikeable
40/100
1 of 11
Videos
Matterport 3D Exterior
Matterport 3D Tour
Photos
Street View
Street
Map
Presented by
HTX Prime Capital
12465 FM 1314 Rd - Conroe Tx - Montgomery County
Already a member? Log In
Hmm, there seems to have been an error sending your message. Please try again.
Thanks! Your message was sent.

