Your email has been sent.
125 W Princeton Dr 1,050 - 2,100 SF Condo Units Offered at $288,750 - $577,500 Per Unit in Princeton, TX 75407



Investment Highlights
- Excellent sign visibility on the building.
- Owner is a commercial builder so options available to turn key.
- 12' Ceilings & 3 phase power
- 36,000+ daily vehicle count
- Population has grown by 166% since 2020 with current population of 46,000+ according to worldpopulationreview.com
Executive Summary
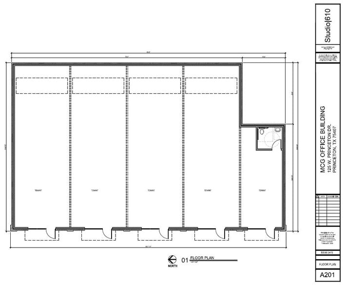
The building features an open-span layout with a single demising wall, offering exceptional flexibility for a variety of uses. It boasts 12' ceilings, 3-phase power, heating and air, electricity, plumbing, one restroom, and an installed fire suppression system. Roll-up doors can easily be removed to create an office or retail storefront, as illustrated in the renderings. Units can be configured to accommodate multiple sizes, including 1,050 SF, 1,550 SF, 2,100 SF, and 3,150 SF. This adaptable space is well-suited for businesses such as office, retail, children’s activities, gyms, martial arts studios, learning centers, and more. Located in Princeton, one of the nation’s top five fastest-growing cities for 2024, this property offers strong potential for a wide range of users.
3 Units Available
Unit 200
| Unit Size | 1,050 SF | Condo Use | Office/Medical |
| Price | $288,750 | Sale Type | Investment or Owner User |
| Price Per SF | $275.00 | APN/Parcel ID | R-9620-00A-01R1-1 |
| Unit Size | 1,050 SF |
| Price | $288,750 |
| Price Per SF | $275.00 |
| Condo Use | Office/Medical |
| Sale Type | Investment or Owner User |
| APN/Parcel ID | R-9620-00A-01R1-1 |
Description
Building currently open span with 1 demising wall. Heat/Air, electricity, plumbing, 1 bathroom & fire suppression already in building. Easy to remove roll up doors to make office or retail front. Units can be divided to accommodate various sizes. ranging from 1050sf, 1550sf, 2100sf, 3150sf, etc. Great flexibility and extremely high traffic location!
Sale Notes
SELLER FINANCING AVAILABLE. Inquire with agent for details.
Unit 300
| Unit Size | 2,100 SF | Condo Use | Office/Medical |
| Price | $577,500 | Sale Type | Investment or Owner User |
| Price Per SF | $275.00 | APN/Parcel ID | R-9620-00A-01R1-1 |
| Unit Size | 2,100 SF |
| Price | $577,500 |
| Price Per SF | $275.00 |
| Condo Use | Office/Medical |
| Sale Type | Investment or Owner User |
| APN/Parcel ID | R-9620-00A-01R1-1 |
Unit 400
| Unit Size | 1,050 SF | Sale Type | Investment |
| Price | $300,000 | Cap Rate | 7.35% |
| Price Per SF | $285.71 | NOI | $22,050 |
| Condo Use | Office/Retail | APN/Parcel ID | R-9620-00A-01R1-1 |
| Unit Size | 1,050 SF |
| Price | $300,000 |
| Price Per SF | $285.71 |
| Condo Use | Office/Retail |
| Sale Type | Investment |
| Cap Rate | 7.35% |
| NOI | $22,050 |
| APN/Parcel ID | R-9620-00A-01R1-1 |
Sale Notes
Current tenant lease expires 1/31/2028.
(1) 36 month option to extend at fair market rent
Property Facts
| Total Building Size | 4,740 SF | Floors | 1 |
| Property Type | Office | Typical Floor Size | 4,740 SF |
| Property Subtype | Year Built | 2005 | |
| Building Class | C | Lot Size | 1.22 AC |
| Zoning | C1 - C-1 - multiple uses allowed | ||
| Total Building Size | 4,740 SF |
| Property Type | Office |
| Property Subtype | |
| Building Class | C |
| Floors | 1 |
| Typical Floor Size | 4,740 SF |
| Year Built | 2005 |
| Lot Size | 1.22 AC |
| Zoning | C1 - C-1 - multiple uses allowed |
Presented by
125 W Princeton Dr
Hmm, there seems to have been an error sending your message. Please try again.
Thanks! Your message was sent.
