Your email has been sent.
1275 Cleveland St 3,470 SF of 4-Star Office/Medical Space Available in Clearwater, FL 33755



Highlights
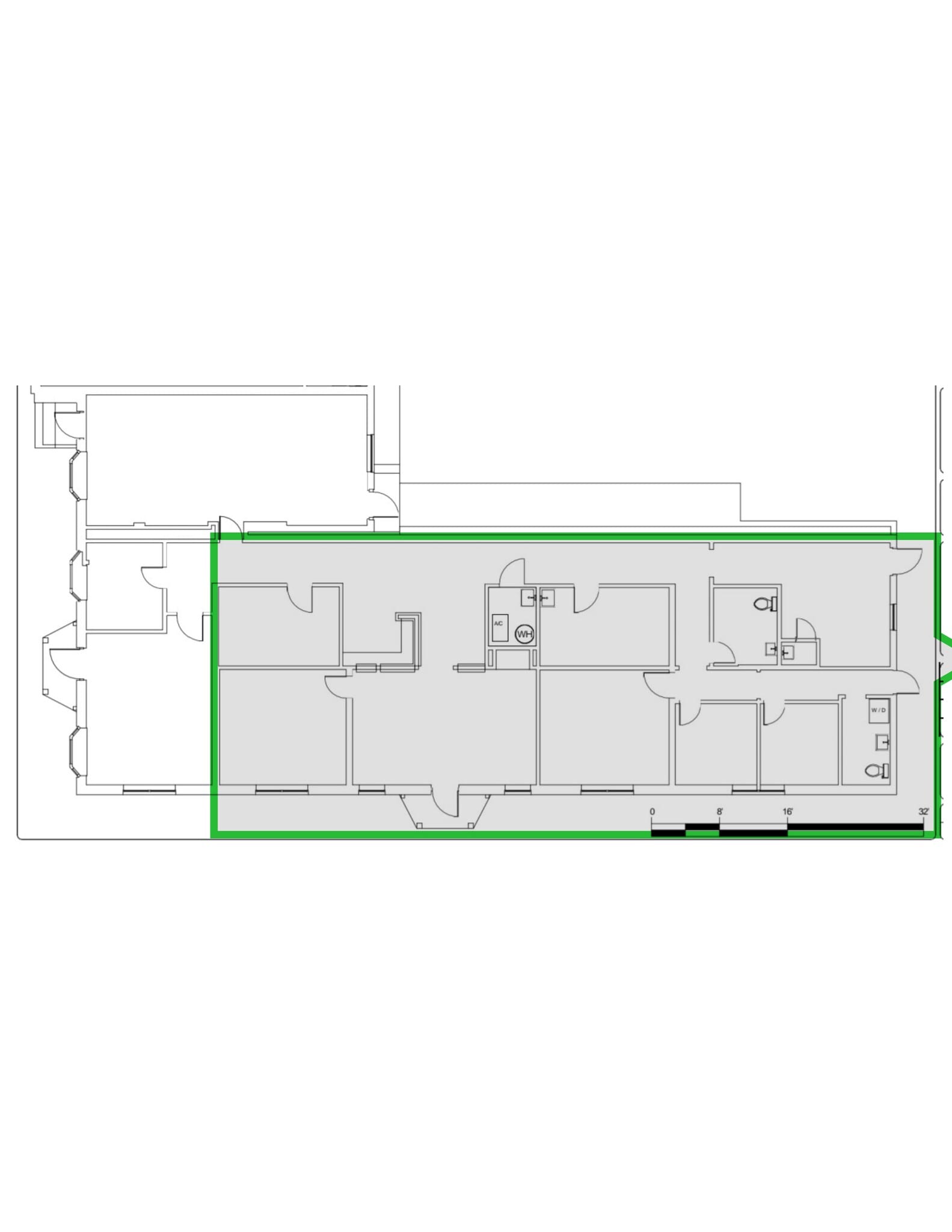
- 11 private treatment / office rooms
- Multiple sink & cabinet stations (plumbed rooms)
- Ample on-site parking (15 spaces)
- Ideal for medical, therapy, or counseling use
- Functional clinic layout with reception area
- High-visibility Clevelans St. frontage
All Available Space(1)
Display Rental Rate as
- Space
- Size
- Term
- Rental Rate
- Space Use
- Build-Out
- Available
Turnkey Downtown Clearwater Medical/Office Space – 3,470 SF | 11 Rooms | Parking | High Visibility Corner Position your business in one of the most strategic locations in Downtown Clearwater—on a highly visible corner within the Downtown Business District, just steps from The Sound at Coachman Park, the $84M waterfront destination featuring a 9,000-seat amphitheater, splash pad, and year-round events driving consistent foot traffic. Built for High-Value Uses That Need Rooms + Flow Perfectly configured for: Medical spa Chiropractic / physical therapy Pain management Acupuncture / massage clinic Behavioral health / counseling Tutoring center or language school Fully Renovated & Move-In Ready (2023) Approx. 3,470 SF standalone building with a layout designed for efficiency and client experience: Large reception + waiting area 11 private rooms (exam, treatment, office, or consult rooms) 2 restrooms (including ADA-compliant) Multiple sink + cabinetry stations (ideal for medical/clinical use) Modern finishes throughout Washer/dryer + full-size refrigerator (easy staff breakroom setup) Flexible layout for multiple business models Rare Downtown Advantage: Parking + Access 15 private on-site parking spaces (includes handicap) Multiple access points: main entrance + 2 street entrances + 2 side entrances Easy client flow, staff separation, and operational flexibility Zoning That Works for You (Downtown “D”) Supports a wide range of uses: medical, professional office, education, business services, wellness, religious, cultural, and more Aggressive Lease Incentive (Designed to Get You Open Faster) Limited-time offer: Sign a 3-year lease and pay $1 rent for April + May 2026 Lease type: Double Net (NN) Minimum term: 3 years (flexible for strong tenants) Location That Drives Growth Minutes to: Clearwater Beach Downtown Clearwater core Dining, retail, and expanding business corridor Why This Space Wins vs Others Turnkey condition (no buildout delay) Room count already built (huge cost savings) On-site parking (rare downtown) Corner visibility + proximity to major redevelopment Flexible layout for scaling or multi-provider use Call to Action Spaces like this—move-in ready, high-visibility, with parking—are extremely limited in Downtown Clearwater. Schedule a private tour and secure your location before the next wave of downtown growth.
- Lease rate does not include certain property expenses
- 11 Private Offices
- 11 Workstations
- Central Air and Heating
- Print/Copy Room
- Natural Light
- Smoke Detector
- 11 private treatment / office rooms
- Multiple sink & cabinet stations (plumbed rooms)
- High-visibility Cleveland St. frontage
- Fully Built-Out as Standard Medical Space
- Conference Rooms
- Reception Area
- Private Restrooms
- Security System
- After Hours HVAC Available
- Wheelchair Accessible
- Ideal for medical, therapy, or counseling use
- Functional clinic layout with reception area
- Ample on-site parking (15 spaces)
| Space | Size | Term | Rental Rate | Space Use | Build-Out | Available |
| 1st Floor | 3,470 SF | 3-5 Years | $21.75 /SF/YR $1.81 /SF/MO $75,473 /YR $6,289 /MO | Office/Medical | Full Build-Out | Now |
1st Floor
| Size |
| 3,470 SF |
| Term |
| 3-5 Years |
| Rental Rate |
| $21.75 /SF/YR $1.81 /SF/MO $75,473 /YR $6,289 /MO |
| Space Use |
| Office/Medical |
| Build-Out |
| Full Build-Out |
| Available |
| Now |
1st Floor
| Size | 3,470 SF |
| Term | 3-5 Years |
| Rental Rate | $21.75 /SF/YR |
| Space Use | Office/Medical |
| Build-Out | Full Build-Out |
| Available | Now |
Turnkey Downtown Clearwater Medical/Office Space – 3,470 SF | 11 Rooms | Parking | High Visibility Corner Position your business in one of the most strategic locations in Downtown Clearwater—on a highly visible corner within the Downtown Business District, just steps from The Sound at Coachman Park, the $84M waterfront destination featuring a 9,000-seat amphitheater, splash pad, and year-round events driving consistent foot traffic. Built for High-Value Uses That Need Rooms + Flow Perfectly configured for: Medical spa Chiropractic / physical therapy Pain management Acupuncture / massage clinic Behavioral health / counseling Tutoring center or language school Fully Renovated & Move-In Ready (2023) Approx. 3,470 SF standalone building with a layout designed for efficiency and client experience: Large reception + waiting area 11 private rooms (exam, treatment, office, or consult rooms) 2 restrooms (including ADA-compliant) Multiple sink + cabinetry stations (ideal for medical/clinical use) Modern finishes throughout Washer/dryer + full-size refrigerator (easy staff breakroom setup) Flexible layout for multiple business models Rare Downtown Advantage: Parking + Access 15 private on-site parking spaces (includes handicap) Multiple access points: main entrance + 2 street entrances + 2 side entrances Easy client flow, staff separation, and operational flexibility Zoning That Works for You (Downtown “D”) Supports a wide range of uses: medical, professional office, education, business services, wellness, religious, cultural, and more Aggressive Lease Incentive (Designed to Get You Open Faster) Limited-time offer: Sign a 3-year lease and pay $1 rent for April + May 2026 Lease type: Double Net (NN) Minimum term: 3 years (flexible for strong tenants) Location That Drives Growth Minutes to: Clearwater Beach Downtown Clearwater core Dining, retail, and expanding business corridor Why This Space Wins vs Others Turnkey condition (no buildout delay) Room count already built (huge cost savings) On-site parking (rare downtown) Corner visibility + proximity to major redevelopment Flexible layout for scaling or multi-provider use Call to Action Spaces like this—move-in ready, high-visibility, with parking—are extremely limited in Downtown Clearwater. Schedule a private tour and secure your location before the next wave of downtown growth.
- Lease rate does not include certain property expenses
- Fully Built-Out as Standard Medical Space
- 11 Private Offices
- Conference Rooms
- 11 Workstations
- Reception Area
- Central Air and Heating
- Private Restrooms
- Print/Copy Room
- Security System
- Natural Light
- After Hours HVAC Available
- Smoke Detector
- Wheelchair Accessible
- 11 private treatment / office rooms
- Ideal for medical, therapy, or counseling use
- Multiple sink & cabinet stations (plumbed rooms)
- Functional clinic layout with reception area
- High-visibility Cleveland St. frontage
- Ample on-site parking (15 spaces)
Property Overview
Turnkey Downtown Clearwater Medical/Office Space – 3,470 SF | 11 Rooms | Parking | High Visibility Corner Position your business in one of the most strategic locations in Downtown Clearwater—on a highly visible corner within the Downtown Business District, just steps from The Sound at Coachman Park, the $84M waterfront destination featuring a 9,000-seat amphitheater, splash pad, and year-round events driving consistent foot traffic. The upcoming largest movie theatre in the world is being built on the same Cleveland St.?, just a few blocks away, bringing incredible foot traffic and awareness in the near future! Built for High-Value Uses That Need Rooms + Flow Perfectly configured for: Medical spa Chiropractic / physical therapy Pain management Acupuncture / massage clinic Behavioral health / counseling Tutoring center or language school Fully Renovated & Move-In Ready (2023) Approx. 3,470 SF standalone building with a layout designed for efficiency and client experience: Large reception + waiting area 11 private rooms (exam, treatment, office, or consult rooms) 2 restrooms (including ADA-compliant) Multiple sink + cabinetry stations (ideal for medical/clinical use) Modern finishes throughout Washer/dryer + full-size refrigerator (easy staff breakroom setup) Flexible layout for multiple business models Rare Downtown Advantage: Parking + Access 15 private on-site parking spaces (includes handicap) Multiple access points: main entrance + 2 street entrances + 2 side entrances Easy client flow, staff separation, and operational flexibility Zoning That Works for You (Downtown “D”) Supports a wide range of uses: medical, professional office, education, business services, wellness, religious, cultural, and more Aggressive Lease Incentive (Designed to Get You Open Faster) Limited-time offer: Sign a 3-year lease and pay $1 rent for the 1st 2 months! Lease type: Double Net (NN) Minimum term: 3 years (flexible for strong tenants) Location That Drives Growth Minutes to: Clearwater Beach Downtown Clearwater core Dining, retail, and expanding business corridor Why This Space Wins vs Others Turnkey condition (no buildout delay) Room count already built (huge cost savings) On-site parking (rare downtown) Corner visibility + proximity to major redevelopment Flexible layout for scaling or multi-provider use Call to Action Spaces like this—move-in ready, high-visibility, with parking—are extremely limited in Downtown Clearwater. Schedule a private tour and secure your location before the next wave of downtown growth.
- 24 Hour Access
- Signage
- Reception
- Monument Signage
- Air Conditioning
Property Facts
Presented by
Tampa Bay Home Realty
1275 Cleveland St
Hmm, there seems to have been an error sending your message. Please try again.
Thanks! Your message was sent.


