Your email has been sent.
13 Bis Boulevard Haussmann 6,674 - 13,756 SF of Office Space Available in 75009 Paris



Some information has been automatically translated.
HIGHLIGHTS
- High-performance HQE building
- High-end common areas
- Opera District – Haussmann
ALL AVAILABLE SPACES(2)
Display Rental Rate as
- SPACE
- SIZE
- TERM
-
RENTAL RATE
- SPACE USE
- CONDITION
- AVAILABLE
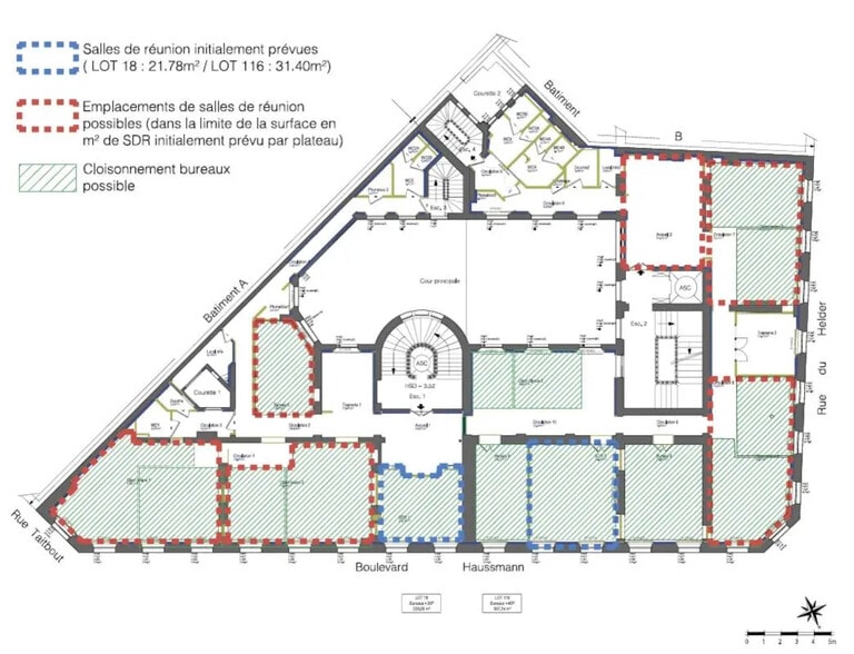
This space, located on the second floor of a prestigious Haussmannian building, offers an elegant and functional work environment. Fully renovated by the owner, it features high-end finishes, including herringbone parquet flooring and acoustic ceilings. The generous ceiling height and the continuous balcony overlooking Boulevard Haussmann provide brightness and comfort. The layout allows for various configurations, including open spaces, executive offices, and meeting rooms, accommodating approximately seventy workstations. Modern amenities, such as air conditioning and connections to the CPCU and Fraîcheur de Paris networks, ensure optimal comfort and energy efficiency year-round.
- Agency Fee: 15.00% of annual rent
- Security Deposit: 3 months of rent
- Mostly Open Floor Plan Layout
- Space is in Excellent Condition
- Elevator Access
- High Ceilings
- Natural Light
- Common Parts WC Facilities
- Hardwood Floors
- Modern air conditioning
-
Rental Charges: $8.40 /SF/YR $0.70 /SF/MO $59,514 /YR $4,960 /MO
- Fully Built-Out as Standard Office
- Partitioned Offices
- Central Air Conditioning
- Balcony
- Drop Ceilings
- Bicycle Storage
- Open-Plan
- Continuous balcony on Haussmann
- Indigo parking available
This office space, located on the third floor of a prestigious Haussmannian building, offers an exceptional work environment. Fully renovated by the owner, it features high-end finishes such as herringbone parquet flooring and acoustic ceilings. With a ceiling height of over three meters and a continuous balcony overlooking Boulevard Haussmann, the space is both bright and elegant. The layout allows for various configurations, including open spaces, executive offices, and meeting rooms, accommodating approximately seventy workstations. Modern amenities, such as air conditioning and connections to the CPCU and Fraîcheur de Paris networks, ensure year-round comfort and energy efficiency.
- Agency Fee: 15.00% of annual rent
- Security Deposit: 3 months of rent
- Mostly Open Floor Plan Layout
- Space is in Excellent Condition
- Elevator Access
- High Ceilings
- Natural Light
- Common Parts WC Facilities
- Hardwood Floors
- Modern air conditioning
-
Rental Charges: $8.40 /SF/YR $0.70 /SF/MO $56,077 /YR $4,673 /MO
- Fully Built-Out as Standard Office
- Partitioned Offices
- Central Air Conditioning
- Balcony
- Drop Ceilings
- Bicycle Storage
- Open-Plan
- Continuous balcony on Haussmann.
- Indigo parking available
| Space | Size | Term | Rental Rate | Space Use | Condition | Available |
| 2nd Floor | 7,083 SF | 3/6/9 | $98.22 /SF/YR HT-HC $8.18 /SF/MO HT-HC $695,625 /YR HT-HC $57,969 /MO HT-HC | Office | Full Build-Out | July 01, 2026 |
| 3rd Floor | 6,674 SF | 3/6/9 | $98.22 /SF/YR HT-HC $8.18 /SF/MO HT-HC $655,452 /YR HT-HC $54,621 /MO HT-HC | Office | Full Build-Out | July 01, 2026 |
2nd Floor
| Size |
| 7,083 SF |
| Term |
| 3/6/9 |
|
Rental Rate
|
| $98.22 /SF/YR HT-HC $8.18 /SF/MO HT-HC $695,625 /YR HT-HC $57,969 /MO HT-HC |
| Space Use |
| Office |
| Condition |
| Full Build-Out |
| Available |
| July 01, 2026 |
3rd Floor
| Size |
| 6,674 SF |
| Term |
| 3/6/9 |
|
Rental Rate
|
| $98.22 /SF/YR HT-HC $8.18 /SF/MO HT-HC $655,452 /YR HT-HC $54,621 /MO HT-HC |
| Space Use |
| Office |
| Condition |
| Full Build-Out |
| Available |
| July 01, 2026 |
2nd Floor
| Size | 7,083 SF |
| Term | 3/6/9 |
|
Rental Rate
|
$98.22 /SF/YR HT-HC |
| Space Use | Office |
| Condition | Full Build-Out |
| Available | July 01, 2026 |
This space, located on the second floor of a prestigious Haussmannian building, offers an elegant and functional work environment. Fully renovated by the owner, it features high-end finishes, including herringbone parquet flooring and acoustic ceilings. The generous ceiling height and the continuous balcony overlooking Boulevard Haussmann provide brightness and comfort. The layout allows for various configurations, including open spaces, executive offices, and meeting rooms, accommodating approximately seventy workstations. Modern amenities, such as air conditioning and connections to the CPCU and Fraîcheur de Paris networks, ensure optimal comfort and energy efficiency year-round.
- Agency Fee: 15.00% of annual rent
-
Rental Charges: $8.40 /SF/YR $0.70 /SF/MO $59,514 /YR $4,960 /MO
- Security Deposit: 3 months of rent
- Fully Built-Out as Standard Office
- Mostly Open Floor Plan Layout
- Partitioned Offices
- Space is in Excellent Condition
- Central Air Conditioning
- Elevator Access
- Balcony
- High Ceilings
- Drop Ceilings
- Natural Light
- Bicycle Storage
- Common Parts WC Facilities
- Open-Plan
- Hardwood Floors
- Continuous balcony on Haussmann
- Modern air conditioning
- Indigo parking available
3rd Floor
| Size | 6,674 SF |
| Term | 3/6/9 |
|
Rental Rate
|
$98.22 /SF/YR HT-HC |
| Space Use | Office |
| Condition | Full Build-Out |
| Available | July 01, 2026 |
This office space, located on the third floor of a prestigious Haussmannian building, offers an exceptional work environment. Fully renovated by the owner, it features high-end finishes such as herringbone parquet flooring and acoustic ceilings. With a ceiling height of over three meters and a continuous balcony overlooking Boulevard Haussmann, the space is both bright and elegant. The layout allows for various configurations, including open spaces, executive offices, and meeting rooms, accommodating approximately seventy workstations. Modern amenities, such as air conditioning and connections to the CPCU and Fraîcheur de Paris networks, ensure year-round comfort and energy efficiency.
- Agency Fee: 15.00% of annual rent
-
Rental Charges: $8.40 /SF/YR $0.70 /SF/MO $56,077 /YR $4,673 /MO
- Security Deposit: 3 months of rent
- Fully Built-Out as Standard Office
- Mostly Open Floor Plan Layout
- Partitioned Offices
- Space is in Excellent Condition
- Central Air Conditioning
- Elevator Access
- Balcony
- High Ceilings
- Drop Ceilings
- Natural Light
- Bicycle Storage
- Common Parts WC Facilities
- Open-Plan
- Hardwood Floors
- Continuous balcony on Haussmann.
- Modern air conditioning
- Indigo parking available
PROPERTY OVERVIEW
Savills is offering two office floors for rent, measuring 619 m² and 658 m², located on the prestigious Boulevard Haussmann in the 9th arrondissement of Paris, just steps away from the Opéra. The building, certified HQE (High Environmental Quality) "Very High Performance," features modern air conditioning and is connected to the CPCU and Fraîcheur de Paris networks, ensuring comfort and energy efficiency year-round. These spaces, fully renovated by the owner, boast premium finishes: Hungarian point parquet flooring, acoustic drop ceilings, and impressive ceiling heights. They also feature a continuous balcony overlooking Boulevard Haussmann, bringing natural light and prestige to your office environment. Each floor is designed to accommodate approximately 70 workstations and offers flexible layouts, including open spaces, executive offices, and meeting rooms. Availability: July 2026 Commercial lease: 6-9 years
- Courtyard
- Skylights
- Balcony
PROPERTY FACTS
Presented by
13 Bis Boulevard Haussmann
Hmm, there seems to have been an error sending your message. Please try again.
Thanks! Your message was sent.






