Your email has been sent.
All Available Spaces(15)
Display Rental Rate as
- Space
- Size
- Term
- Rental Rate
- Space Use
- Condition
- Available
3 various sized meeting rooms, Kitchenette, 3 exclusive restrooms, and an exclusive entrance
- Fully Built-Out as Standard Office
- 3 Private Offices
- Finished Ceilings: 11’
- Private Restrooms
- Mostly Open Floor Plan Layout
- Conference Rooms
- Kitchen
¨ Whitebox shell condition ¨ Direct access to floor via internal staircase from the main lobby ¨ Expansive ceiling heights ¨ Floor-to-ceiling window line ¨ Available now ¨ Can consolidate up to 43,927 rsf block
- Mostly Open Floor Plan Layout
- Can be combined with additional space(s) for up to 34,591 SF of adjacent space
- Finished Ceilings: 11’
¨ Traditional suite ¨ 3 private offices ¨ 2 conference rooms ¨ Kitchenette ¨ Restroom en-suite ¨ Available now
- Fully Built-Out as Standard Office
- 3 Private Offices
- Finished Ceilings: 11’
- Private Restrooms
- Mostly Open Floor Plan Layout
- 2 Conference Rooms
- Kitchen
¨ Brand new, full-floor creative spec suite ¨ Exposed ceilings ¨ Open area for 150+ workstations ¨ 6 conference rooms ¨ 6 phone rooms ¨ Floor-to-ceiling window line ¨ Available now ¨ Can consolidate up to 43,927 rsf block
- Mostly Open Floor Plan Layout
- 6 Conference Rooms
- Finished Ceilings: 11’
- 6 Private Offices
- 150 Workstations
- Can be combined with additional space(s) for up to 34,591 SF of adjacent space
¨ Traditional suite ¨ 2 large conference rooms ¨ 6 private offices ¨ Views of City Hall ¨ Floor-to-ceiling window line ¨ Available now ¨ Can consolidate up to 10,652 rsf ¨ IT/storage closet
- Fully Built-Out as Standard Office
- 6 Private Offices
- Finished Ceilings: 11’
- Mostly Open Floor Plan Layout
- 2 Conference Rooms
- Can be combined with additional space(s) for up to 10,652 SF of adjacent space
¨ Traditional suite ¨ 4 various sized conference rooms ¨ 5 private offices ¨ Views of City Hall ¨ Floor to ceiling window line ¨ Available now ¨ Can consolidate up to 10,652 rsf
- Fully Built-Out as Standard Office
- 5 Private Offices
- Finished Ceilings: 11’
- Mostly Open Floor Plan Layout
- 4 Conference Rooms
- Can be combined with additional space(s) for up to 10,652 SF of adjacent space
¨ Market ready suite ¨ Exposed ceilings ¨ Mostly open plan ¨ Conference room ¨ IT closet ¨ Kitchenette ¨ 3 private offices/meeting rooms ¨ Floor to ceiling window line ¨ Available now ¨ Can consolidate up to 10,652 rsf
- Fully Built-Out as Standard Office
- 3 Private Offices
- Finished Ceilings: 11’
- Mostly Open Floor Plan Layout
- 1 Conference Room
- Can be combined with additional space(s) for up to 10,652 SF of adjacent space
Available now ¨ Partial plug-and-play opportunity ¨ Open plan ¨ 1 conference room ¨ 2 private offices/meeting rooms ¨ Kitchenette ¨ IT Closet
- Fully Built-Out as Standard Office
- Finished Ceilings: 11’
- Mostly Open Floor Plan Layout
¨ Market ready creative suite ¨ 2 conference rooms ¨ 2 private offices ¨ Views of City Hall ¨ Mostly open plan ¨ Kitchen ¨ Floor-to-ceiling window line ¨ Available now
- Fully Built-Out as Standard Office
- 2 Private Offices
- Finished Ceilings: 11’
- Mostly Open Floor Plan Layout
- 2 Conference Rooms
- Kitchen
¨ Brand new creative spec suite ¨ Partly plug-and-play opportunity ¨ Exposed ceilings ¨ Boardroom ¨ 2 meeting rooms ¨ 3 phone rooms ¨ Kitchen ¨ Floor-to-ceiling window line ¨ Fantastic Market Street views ¨ Available now
- Mostly Open Floor Plan Layout
- Finished Ceilings: 11’
- 3 Private Offices
¨ Traditional suite ¨ 2 private offices ¨ 2 conference rooms ¨ IT/storage ¨ Available now
- Fully Built-Out as Standard Office
- 2 Private Offices
- Finished Ceilings: 11’
- Mostly Open Floor Plan Layout
- 2 Conference Rooms
¨ Traditional suite ¨ 5 private offices ¨ Kitchen/break room ¨ IT/storage ¨ Double-door identity right off elevator ¨ Available now
- Fully Built-Out as Standard Office
- 5 Private Offices
- Kitchen
- Secure Storage
- Mostly Open Floor Plan Layout
- Finished Ceilings: 11’
- Elevator Access
¨ Market ready traditional suite ¨ 2 conference rooms ¨ 2 private offices ¨ 3 breakout rooms ¨ 2 phone rooms ¨ Kitchen/break room ¨ Floor to ceiling window line ¨ Available now
- Fully Built-Out as Standard Office
- 2 Private Offices
- Finished Ceilings: 11’
- Fantastic views
- Mostly Open Floor Plan Layout
- 2 Conference Rooms
- Kitchen
Traditional suite, 3 private offices/meeting rooms, conference room, Kitchenette, IT/Storage room, Open area
- Fully Built-Out as Standard Office
- 3 Private Offices
- Finished Ceilings: 11’
- Secure Storage
- Mostly Open Floor Plan Layout
- 1 Conference Room
- Kitchen
¨ Market-ready traditional suite ¨ 1 conference room ¨ 5 private offices ¨ Kitchen ¨ Floor-to-ceiling window line ¨ Available now
- Fully Built-Out as Standard Office
- 5 Private Offices
- Finished Ceilings: 11’
- Mostly Open Floor Plan Layout
- 1 Conference Room
- Kitchen
| Space | Size | Term | Rental Rate | Space Use | Condition | Available |
| Ground, Ste 111 | 4,646 SF | 3-5 Years | Upon Request Upon Request Upon Request Upon Request | Office | Full Build-Out | Now |
| 2nd Floor, Ste 210 | 15,112 SF | 3-5 Years | Upon Request Upon Request Upon Request Upon Request | Office | Shell Space | Now |
| 2nd Floor, Ste 226 | 1,512 SF | 3-5 Years | Upon Request Upon Request Upon Request Upon Request | Office | Full Build-Out | Now |
| 3rd Floor, Ste 300 | 19,479 SF | 3-5 Years | Upon Request Upon Request Upon Request Upon Request | Office | Spec Suite | Now |
| 8th Floor, Ste 810 | 4,741 SF | 3-5 Years | Upon Request Upon Request Upon Request Upon Request | Office | Full Build-Out | Now |
| 8th Floor, Ste 818 | 2,918 SF | 3-5 Years | Upon Request Upon Request Upon Request Upon Request | Office | Full Build-Out | Now |
| 8th Floor, Ste 820 | 2,993 SF | 3-5 Years | Upon Request Upon Request Upon Request Upon Request | Office | Full Build-Out | Now |
| 9th Floor, Ste 905 | 2,187 SF | 3-5 Years | Upon Request Upon Request Upon Request Upon Request | Office | Full Build-Out | Now |
| 9th Floor, Ste 910 | 5,293 SF | 3-5 Years | Upon Request Upon Request Upon Request Upon Request | Office | Full Build-Out | Now |
| 10th Floor, Ste 1004 | 5,160 SF | 3-5 Years | Upon Request Upon Request Upon Request Upon Request | Office | Spec Suite | Now |
| 10th Floor, Ste 1008 | 1,415 SF | 3-5 Years | Upon Request Upon Request Upon Request Upon Request | Office | Full Build-Out | Now |
| 10th Floor, Ste 1010 | 2,295 SF | 3-5 Years | Upon Request Upon Request Upon Request Upon Request | Office | Full Build-Out | Now |
| 10th Floor, Ste 1018 | 7,124 SF | 3-5 Years | Upon Request Upon Request Upon Request Upon Request | Office | Full Build-Out | Now |
| 10th Floor, Ste 1025 | 3,067 SF | 3-5 Years | Upon Request Upon Request Upon Request Upon Request | Office | Full Build-Out | Now |
| 11th Floor, Ste 1100 | 4,698 SF | 3-5 Years | Upon Request Upon Request Upon Request Upon Request | Office | Full Build-Out | Now |
Ground, Ste 111
| Size |
| 4,646 SF |
| Term |
| 3-5 Years |
| Rental Rate |
| Upon Request Upon Request Upon Request Upon Request |
| Space Use |
| Office |
| Condition |
| Full Build-Out |
| Available |
| Now |
2nd Floor, Ste 210
| Size |
| 15,112 SF |
| Term |
| 3-5 Years |
| Rental Rate |
| Upon Request Upon Request Upon Request Upon Request |
| Space Use |
| Office |
| Condition |
| Shell Space |
| Available |
| Now |
2nd Floor, Ste 226
| Size |
| 1,512 SF |
| Term |
| 3-5 Years |
| Rental Rate |
| Upon Request Upon Request Upon Request Upon Request |
| Space Use |
| Office |
| Condition |
| Full Build-Out |
| Available |
| Now |
3rd Floor, Ste 300
| Size |
| 19,479 SF |
| Term |
| 3-5 Years |
| Rental Rate |
| Upon Request Upon Request Upon Request Upon Request |
| Space Use |
| Office |
| Condition |
| Spec Suite |
| Available |
| Now |
8th Floor, Ste 810
| Size |
| 4,741 SF |
| Term |
| 3-5 Years |
| Rental Rate |
| Upon Request Upon Request Upon Request Upon Request |
| Space Use |
| Office |
| Condition |
| Full Build-Out |
| Available |
| Now |
8th Floor, Ste 818
| Size |
| 2,918 SF |
| Term |
| 3-5 Years |
| Rental Rate |
| Upon Request Upon Request Upon Request Upon Request |
| Space Use |
| Office |
| Condition |
| Full Build-Out |
| Available |
| Now |
8th Floor, Ste 820
| Size |
| 2,993 SF |
| Term |
| 3-5 Years |
| Rental Rate |
| Upon Request Upon Request Upon Request Upon Request |
| Space Use |
| Office |
| Condition |
| Full Build-Out |
| Available |
| Now |
9th Floor, Ste 905
| Size |
| 2,187 SF |
| Term |
| 3-5 Years |
| Rental Rate |
| Upon Request Upon Request Upon Request Upon Request |
| Space Use |
| Office |
| Condition |
| Full Build-Out |
| Available |
| Now |
9th Floor, Ste 910
| Size |
| 5,293 SF |
| Term |
| 3-5 Years |
| Rental Rate |
| Upon Request Upon Request Upon Request Upon Request |
| Space Use |
| Office |
| Condition |
| Full Build-Out |
| Available |
| Now |
10th Floor, Ste 1004
| Size |
| 5,160 SF |
| Term |
| 3-5 Years |
| Rental Rate |
| Upon Request Upon Request Upon Request Upon Request |
| Space Use |
| Office |
| Condition |
| Spec Suite |
| Available |
| Now |
10th Floor, Ste 1008
| Size |
| 1,415 SF |
| Term |
| 3-5 Years |
| Rental Rate |
| Upon Request Upon Request Upon Request Upon Request |
| Space Use |
| Office |
| Condition |
| Full Build-Out |
| Available |
| Now |
10th Floor, Ste 1010
| Size |
| 2,295 SF |
| Term |
| 3-5 Years |
| Rental Rate |
| Upon Request Upon Request Upon Request Upon Request |
| Space Use |
| Office |
| Condition |
| Full Build-Out |
| Available |
| Now |
10th Floor, Ste 1018
| Size |
| 7,124 SF |
| Term |
| 3-5 Years |
| Rental Rate |
| Upon Request Upon Request Upon Request Upon Request |
| Space Use |
| Office |
| Condition |
| Full Build-Out |
| Available |
| Now |
10th Floor, Ste 1025
| Size |
| 3,067 SF |
| Term |
| 3-5 Years |
| Rental Rate |
| Upon Request Upon Request Upon Request Upon Request |
| Space Use |
| Office |
| Condition |
| Full Build-Out |
| Available |
| Now |
11th Floor, Ste 1100
| Size |
| 4,698 SF |
| Term |
| 3-5 Years |
| Rental Rate |
| Upon Request Upon Request Upon Request Upon Request |
| Space Use |
| Office |
| Condition |
| Full Build-Out |
| Available |
| Now |
Ground, Ste 111
| Size | 4,646 SF |
| Term | 3-5 Years |
| Rental Rate | Upon Request |
| Space Use | Office |
| Condition | Full Build-Out |
| Available | Now |
3 various sized meeting rooms, Kitchenette, 3 exclusive restrooms, and an exclusive entrance
- Fully Built-Out as Standard Office
- Mostly Open Floor Plan Layout
- 3 Private Offices
- Conference Rooms
- Finished Ceilings: 11’
- Kitchen
- Private Restrooms
2nd Floor, Ste 210
| Size | 15,112 SF |
| Term | 3-5 Years |
| Rental Rate | Upon Request |
| Space Use | Office |
| Condition | Shell Space |
| Available | Now |
¨ Whitebox shell condition ¨ Direct access to floor via internal staircase from the main lobby ¨ Expansive ceiling heights ¨ Floor-to-ceiling window line ¨ Available now ¨ Can consolidate up to 43,927 rsf block
- Mostly Open Floor Plan Layout
- Finished Ceilings: 11’
- Can be combined with additional space(s) for up to 34,591 SF of adjacent space
2nd Floor, Ste 226
| Size | 1,512 SF |
| Term | 3-5 Years |
| Rental Rate | Upon Request |
| Space Use | Office |
| Condition | Full Build-Out |
| Available | Now |
¨ Traditional suite ¨ 3 private offices ¨ 2 conference rooms ¨ Kitchenette ¨ Restroom en-suite ¨ Available now
- Fully Built-Out as Standard Office
- Mostly Open Floor Plan Layout
- 3 Private Offices
- 2 Conference Rooms
- Finished Ceilings: 11’
- Kitchen
- Private Restrooms
3rd Floor, Ste 300
| Size | 19,479 SF |
| Term | 3-5 Years |
| Rental Rate | Upon Request |
| Space Use | Office |
| Condition | Spec Suite |
| Available | Now |
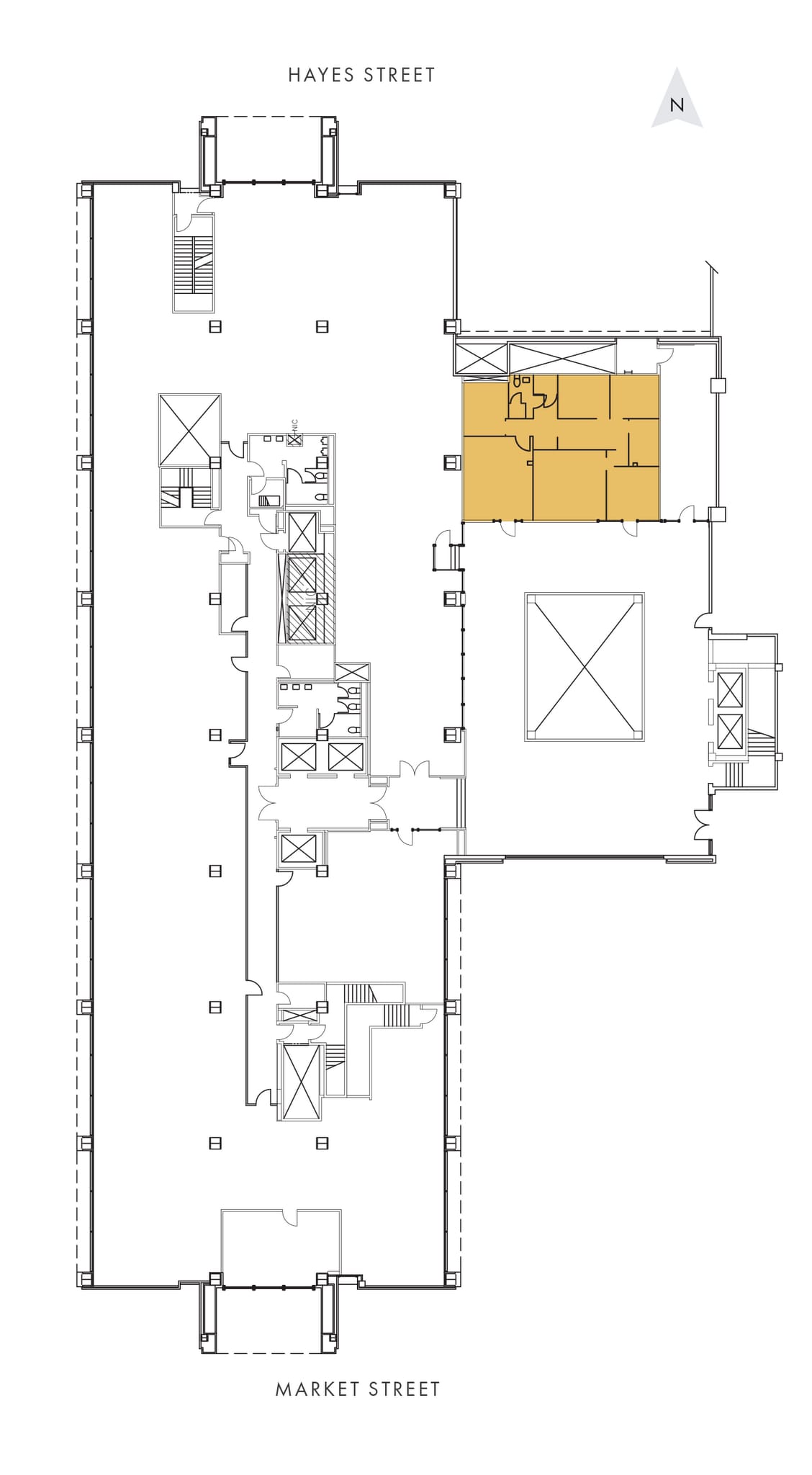
¨ Brand new, full-floor creative spec suite ¨ Exposed ceilings ¨ Open area for 150+ workstations ¨ 6 conference rooms ¨ 6 phone rooms ¨ Floor-to-ceiling window line ¨ Available now ¨ Can consolidate up to 43,927 rsf block
- Mostly Open Floor Plan Layout
- 6 Private Offices
- 6 Conference Rooms
- 150 Workstations
- Finished Ceilings: 11’
- Can be combined with additional space(s) for up to 34,591 SF of adjacent space
8th Floor, Ste 810
| Size | 4,741 SF |
| Term | 3-5 Years |
| Rental Rate | Upon Request |
| Space Use | Office |
| Condition | Full Build-Out |
| Available | Now |
¨ Traditional suite ¨ 2 large conference rooms ¨ 6 private offices ¨ Views of City Hall ¨ Floor-to-ceiling window line ¨ Available now ¨ Can consolidate up to 10,652 rsf ¨ IT/storage closet
- Fully Built-Out as Standard Office
- Mostly Open Floor Plan Layout
- 6 Private Offices
- 2 Conference Rooms
- Finished Ceilings: 11’
- Can be combined with additional space(s) for up to 10,652 SF of adjacent space
8th Floor, Ste 818
| Size | 2,918 SF |
| Term | 3-5 Years |
| Rental Rate | Upon Request |
| Space Use | Office |
| Condition | Full Build-Out |
| Available | Now |
¨ Traditional suite ¨ 4 various sized conference rooms ¨ 5 private offices ¨ Views of City Hall ¨ Floor to ceiling window line ¨ Available now ¨ Can consolidate up to 10,652 rsf
- Fully Built-Out as Standard Office
- Mostly Open Floor Plan Layout
- 5 Private Offices
- 4 Conference Rooms
- Finished Ceilings: 11’
- Can be combined with additional space(s) for up to 10,652 SF of adjacent space
8th Floor, Ste 820
| Size | 2,993 SF |
| Term | 3-5 Years |
| Rental Rate | Upon Request |
| Space Use | Office |
| Condition | Full Build-Out |
| Available | Now |
¨ Market ready suite ¨ Exposed ceilings ¨ Mostly open plan ¨ Conference room ¨ IT closet ¨ Kitchenette ¨ 3 private offices/meeting rooms ¨ Floor to ceiling window line ¨ Available now ¨ Can consolidate up to 10,652 rsf
- Fully Built-Out as Standard Office
- Mostly Open Floor Plan Layout
- 3 Private Offices
- 1 Conference Room
- Finished Ceilings: 11’
- Can be combined with additional space(s) for up to 10,652 SF of adjacent space
9th Floor, Ste 905
| Size | 2,187 SF |
| Term | 3-5 Years |
| Rental Rate | Upon Request |
| Space Use | Office |
| Condition | Full Build-Out |
| Available | Now |
Available now ¨ Partial plug-and-play opportunity ¨ Open plan ¨ 1 conference room ¨ 2 private offices/meeting rooms ¨ Kitchenette ¨ IT Closet
- Fully Built-Out as Standard Office
- Mostly Open Floor Plan Layout
- Finished Ceilings: 11’
9th Floor, Ste 910
| Size | 5,293 SF |
| Term | 3-5 Years |
| Rental Rate | Upon Request |
| Space Use | Office |
| Condition | Full Build-Out |
| Available | Now |
¨ Market ready creative suite ¨ 2 conference rooms ¨ 2 private offices ¨ Views of City Hall ¨ Mostly open plan ¨ Kitchen ¨ Floor-to-ceiling window line ¨ Available now
- Fully Built-Out as Standard Office
- Mostly Open Floor Plan Layout
- 2 Private Offices
- 2 Conference Rooms
- Finished Ceilings: 11’
- Kitchen
10th Floor, Ste 1004
| Size | 5,160 SF |
| Term | 3-5 Years |
| Rental Rate | Upon Request |
| Space Use | Office |
| Condition | Spec Suite |
| Available | Now |
¨ Brand new creative spec suite ¨ Partly plug-and-play opportunity ¨ Exposed ceilings ¨ Boardroom ¨ 2 meeting rooms ¨ 3 phone rooms ¨ Kitchen ¨ Floor-to-ceiling window line ¨ Fantastic Market Street views ¨ Available now
- Mostly Open Floor Plan Layout
- 3 Private Offices
- Finished Ceilings: 11’
10th Floor, Ste 1008
| Size | 1,415 SF |
| Term | 3-5 Years |
| Rental Rate | Upon Request |
| Space Use | Office |
| Condition | Full Build-Out |
| Available | Now |
¨ Traditional suite ¨ 2 private offices ¨ 2 conference rooms ¨ IT/storage ¨ Available now
- Fully Built-Out as Standard Office
- Mostly Open Floor Plan Layout
- 2 Private Offices
- 2 Conference Rooms
- Finished Ceilings: 11’
10th Floor, Ste 1010
| Size | 2,295 SF |
| Term | 3-5 Years |
| Rental Rate | Upon Request |
| Space Use | Office |
| Condition | Full Build-Out |
| Available | Now |
¨ Traditional suite ¨ 5 private offices ¨ Kitchen/break room ¨ IT/storage ¨ Double-door identity right off elevator ¨ Available now
- Fully Built-Out as Standard Office
- Mostly Open Floor Plan Layout
- 5 Private Offices
- Finished Ceilings: 11’
- Kitchen
- Elevator Access
- Secure Storage
10th Floor, Ste 1018
| Size | 7,124 SF |
| Term | 3-5 Years |
| Rental Rate | Upon Request |
| Space Use | Office |
| Condition | Full Build-Out |
| Available | Now |
¨ Market ready traditional suite ¨ 2 conference rooms ¨ 2 private offices ¨ 3 breakout rooms ¨ 2 phone rooms ¨ Kitchen/break room ¨ Floor to ceiling window line ¨ Available now
- Fully Built-Out as Standard Office
- Mostly Open Floor Plan Layout
- 2 Private Offices
- 2 Conference Rooms
- Finished Ceilings: 11’
- Kitchen
- Fantastic views
10th Floor, Ste 1025
| Size | 3,067 SF |
| Term | 3-5 Years |
| Rental Rate | Upon Request |
| Space Use | Office |
| Condition | Full Build-Out |
| Available | Now |
Traditional suite, 3 private offices/meeting rooms, conference room, Kitchenette, IT/Storage room, Open area
- Fully Built-Out as Standard Office
- Mostly Open Floor Plan Layout
- 3 Private Offices
- 1 Conference Room
- Finished Ceilings: 11’
- Kitchen
- Secure Storage
11th Floor, Ste 1100
| Size | 4,698 SF |
| Term | 3-5 Years |
| Rental Rate | Upon Request |
| Space Use | Office |
| Condition | Full Build-Out |
| Available | Now |
¨ Market-ready traditional suite ¨ 1 conference room ¨ 5 private offices ¨ Kitchen ¨ Floor-to-ceiling window line ¨ Available now
- Fully Built-Out as Standard Office
- Mostly Open Floor Plan Layout
- 5 Private Offices
- 1 Conference Room
- Finished Ceilings: 11’
- Kitchen
Features and Amenities
- Property Manager on Site
- Restaurant
- Security System
- Air Conditioning
Property Facts
Sustainability
Sustainability
LEED Certification Developed by the U.S. Green Building Council (USGBC), the Leadership in Energy and Environmental Design (LEED) is a green building certification program focused on the design, construction, operation, and maintenance of green buildings, homes, and neighborhoods, which aims to help building owners and operators be environmentally responsible and use resources efficiently. LEED certification is a globally recognized symbol of sustainability achievement and leadership. To achieve LEED certification, a project earns points by adhering to prerequisites and credits that address carbon, energy, water, waste, transportation, materials, health and indoor environmental quality. Projects go through a verification and review process and are awarded points that correspond to a level of LEED certification: Platinum (80+ points) Gold (60-79 points) Silver (50-59 points) Certified (40-49 points)
Presented by
1390 Market St
Hmm, there seems to have been an error sending your message. Please try again.
Thanks! Your message was sent.


































