Your email has been sent.
Davenport Shopping Center 14500 N Dallas Pky 1,200 - 10,895 SF of Space Available in Dallas, TX 75254



Highlights
- 685 Apartment Units Within the Davenport Apartments Community
- DNT Tollway Visibility
- Landlord Willing to Demise the Space to Accommodate tenants Within the Building
- 8,696 SF Total Contiguous Space Available
- Easy Access and Excellent Visibility
Display Rental Rate as
- Space
- Size
- Term
- Rental Rate
- Rent Type
| Space | Size | Term | Rental Rate | Rent Type | ||
| 1st Floor | 1,200-7,095 SF | Negotiable | Upon Request Upon Request Upon Request Upon Request | Negotiable |
14500 N Dallas Pky - 1st Floor
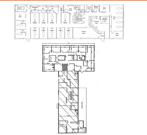
Former Monarch Dental • 685 Apartment Units Within the Davenport Apartments Community • 8,696 SF Total Contiguous Space Available • DNT Tollway Visibility
- Fully Built-Out as Dental Office Space
- Office intensive layout
- Fits 3 - 57 People
- • Easy Access and Excellent Visibility
- Space
- Size
- Term
- Rental Rate
- Rent Type
| Space | Size | Term | Rental Rate | Rent Type | ||
| 1st Floor | 1,200-7,095 SF | Negotiable | Upon Request Upon Request Upon Request Upon Request | Negotiable | ||
| 1st Floor | 3,800 SF | Negotiable | Upon Request Upon Request Upon Request Upon Request | TBD |
14500 N Dallas Pky - 1st Floor
Former Monarch Dental • 685 Apartment Units Within the Davenport Apartments Community • 8,696 SF Total Contiguous Space Available • DNT Tollway Visibility
- Fully Built-Out as Dental Office Space
- Office intensive layout
- Fits 3 - 57 People
- • Easy Access and Excellent Visibility
14400-14444 N Dallas Pky - 1st Floor
Rent Types
The rent amount and type that the tenant (lessee) will be responsible to pay to the landlord (lessor) throughout the lease term is negotiated prior to both parties signing a lease agreement. The rent type will vary depending upon the services provided. For example, triple net rents are typically lower than full service rents due to additional expenses the tenant is required to pay in addition to the base rent. Contact the listing broker for a full understanding of any associated costs or additional expenses for each rent type.
1. Full Service: A rental rate that includes normal building standard services as provided by the landlord within a base year rental.
2. Double Net (NN): Tenant pays for only two of the building expenses; the landlord and tenant determine the specific expenses prior to signing the lease agreement.
3. Triple Net (NNN): A lease in which the tenant is responsible for all expenses associated with their proportional share of occupancy of the building.
4. Modified Gross: Modified Gross is a general type of lease rate where typically the tenant will be responsible for their proportional share of one or more of the expenses. The landlord will pay the remaining expenses. See the below list of common Modified Gross rental rate structures: 4. Plus All Utilities: A type of Modified Gross Lease where the tenant is responsible for their proportional share of utilities in addition to the rent. 4. Plus Cleaning: A type of Modified Gross Lease where the tenant is responsible for their proportional share of cleaning in addition to the rent. 4. Plus Electric: A type of Modified Gross Lease where the tenant is responsible for their proportional share of the electrical cost in addition to the rent. 4. Plus Electric & Cleaning: A type of Modified Gross Lease where the tenant is responsible for their proportional share of the electrical and cleaning cost in addition to the rent. 4. Plus Utilities and Char: A type of Modified Gross Lease where the tenant is responsible for their proportional share of the utilities and cleaning cost in addition to the rent. 4. Industrial Gross: A type of Modified Gross lease where the tenant pays one or more of the expenses in addition to the rent. The landlord and tenant determine these prior to signing the lease agreement.
5. Tenant Electric: The landlord pays for all services and the tenant is responsible for their usage of lights and electrical outlets in the space they occupy.
6. Negotiable or Upon Request: Used when the leasing contact does not provide the rent or service type.
7. TBD: To be determined; used for buildings for which no rent or service type is known, commonly utilized when the buildings are not yet built.
Select Tenants at Davenport Shopping Center
- Tenant
- Description
- US Locations
- Reach
- Dallas Parkway Medical
- -
- 1
- -
- Flamingo Beer Wine Beverages
- Liquor
- 1
- -
- Roae Clothing Collection
- -
- 1
- -
- Westdale - The Davenport
- Real Estate
- 116
- National
| Tenant | Description | US Locations | Reach |
| Dallas Parkway Medical | - | 1 | - |
| Flamingo Beer Wine Beverages | Liquor | 1 | - |
| Roae Clothing Collection | - | 1 | - |
| Westdale - The Davenport | Real Estate | 116 | National |
Property Facts
| Total Space Available | 10,895 SF | Frontage | dallas pkwy |
| Min. Divisible | 1,200 SF | Gross Leasable Area | 17,224 SF |
| Center Type | Strip Center | Total Land Area | 1.02 AC |
| Stores | 4 | Year Built | 1979 |
| Center Properties | 2 |
| Total Space Available | 10,895 SF |
| Min. Divisible | 1,200 SF |
| Center Type | Strip Center |
| Stores | 4 |
| Center Properties | 2 |
| Frontage | dallas pkwy |
| Gross Leasable Area | 17,224 SF |
| Total Land Area | 1.02 AC |
| Year Built | 1979 |
About the Property
Flexible Retail Space with Prime Tollway Visibility in High-Density Community Situated within the vibrant Davenport Apartments community, home to 685 residential units, this offering presents an exceptional opportunity to serve a built-in customer base. The available 8,696 SF of contiguous space boasts prominent visibility from the Dallas North Tollway, ensuring maximum exposure. With easy access and high traffic flow, the location is ideal for a range of retail uses. The landlord is open to demising the space to accommodate tenant needs, making this a highly adaptable and attractive option for businesses seeking flexibility and visibility in a thriving, residentially anchored environment.
Nearby Major Retailers


