Log In/Sign Up
Your email has been sent.
Highlights
- Warehouse with 50' x 50' column spacing and 28' clear height.
- 14 miles from Downtown Chicago.
- 7 miles from O'Hare International Airport.
- Unit has a pro rate share of the 140 car parking stalls.
- 15 miles to Midway International Airport.
- 3 miles to I-290/I-294 via North Ave.
Features
Clear Height
28’
Column Spacing
50’ x 50’
Drive In Bays
4
Exterior Dock Doors
12
Levelers
2
Standard Parking Spaces
140
All Available Space(1)
Display Rental Rate as
- Space
- Size
- Term
- Rental Rate
- Space Use
- Condition
- Available
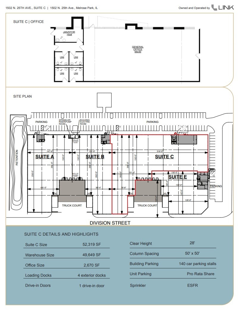
Suite C features a 49,649 square foot warehouse, 2,670 square foot Office, 4 exterior loading docks, and 1 drive-in door.
- Includes 2,670 SF of dedicated office space
- 4 Loading Docks
- 50' x 50' column spacing.
- 1 Drive Bay
- 28' clear height.
- Unit Parking: Pro Rata Share
| Space | Size | Term | Rental Rate | Space Use | Condition | Available |
| 1st Floor - C | 52,319 SF | Negotiable | Upon Request Upon Request Upon Request Upon Request | Industrial | Full Build-Out | Now |
1st Floor - C
| Size |
| 52,319 SF |
| Term |
| Negotiable |
| Rental Rate |
| Upon Request Upon Request Upon Request Upon Request |
| Space Use |
| Industrial |
| Condition |
| Full Build-Out |
| Available |
| Now |
1 of 1
Videos
Matterport 3D Exterior
Matterport 3D Tour
Photos
Street View
Street
Map
1st Floor - C
| Size | 52,319 SF |
| Term | Negotiable |
| Rental Rate | Upon Request |
| Space Use | Industrial |
| Condition | Full Build-Out |
| Available | Now |
Suite C features a 49,649 square foot warehouse, 2,670 square foot Office, 4 exterior loading docks, and 1 drive-in door.
- Includes 2,670 SF of dedicated office space
- 1 Drive Bay
- 4 Loading Docks
- 28' clear height.
- 50' x 50' column spacing.
- Unit Parking: Pro Rata Share
Property Overview
Industrial property located in Melrose Park. T5 Warehouse Lights with Motion Sensors.
Manufacturing Facility Facts
Building Size
139,331 SF
Lot Size
5.42 AC
Year Built
2007
Construction
Masonry
Sprinkler System
ESFR
Lighting
Fluorescent
Water
City
Sewer
City
Heating
Gas
Gas
Natural
Power Supply
Amps: 1,200 Volts: 277-480
Zoning
Industrial
1 of 9
Videos
Matterport 3D Exterior
Matterport 3D Tour
Photos
Street View
Street
Map
Presented by
1502 N 25th Ave
Already a member? Log In
Hmm, there seems to have been an error sending your message. Please try again.
Thanks! Your message was sent.
Your message has been sent!
Activate your LoopNet account now to track properties, get real-time alerts, save time on future inquiries, and more.






