Enter your email to login or create a free account
This feature is unavailable at the moment.
We apologize, but the feature you are trying to access is currently unavailable. We are aware of this issue and our team is working hard to resolve the matter.
Please check back in a few minutes. We apologize for the inconvenience.
- LoopNet Team
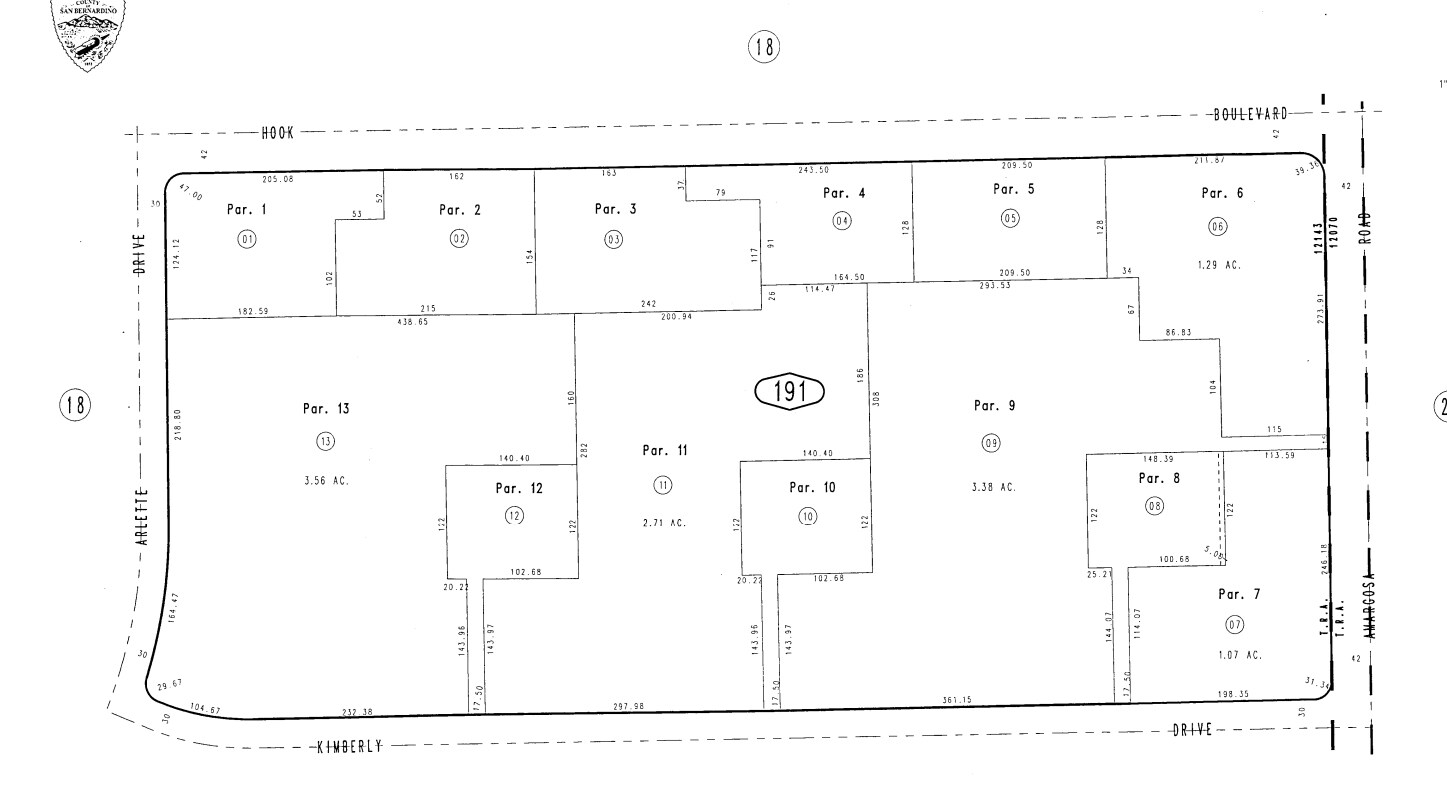
15151 Hook Blvd
Victorville, CA 92394
Lot 2 · Land For Sale
·
0.72 AC

Property Facts
| Property Type | Land | Proposed Use | Retail |
| Property Subtype | Commercial | Total Lot Size | 0.72 AC |
| Zoning | C2T - Commercial | ||
| Property Type | Land |
| Property Subtype | Commercial |
| Proposed Use | Retail |
| Total Lot Size | 0.72 AC |
| Zoning | C2T - Commercial |
Description
!!!!!!THIS PROPERTY IS SOLD TOGETHER WITH THE OTHER 4 PARCELS AVAILABLE #1, # 11 #12 AND #13 SEE INFORMATION ON PRICES ON THE OTHER PARCELS!!!!!!!!!! next to a Corner pad in major Stater Bros shopping center on Hook Boulevard in Victorville. Behing Blockbuster Video and Taco Grande Mexican Restaurant. Excellent location with great frontage, close to $12 per square foot! Has a site plan already and you can build up to 4.675 square feet of building. Adjacent corner pad also for sale for @14 per square foot for a 4000 square foot building and land 30,354 square feet parcel # 0395-681-02 30,354 square feet of land for a 4,675 square foot of building which could be a restaurant or other type of development. Behind Blockbuster Video. In major Stater Bros shopping center anchored by many national tenants. and across from Home Depot. Surrounded by many developments, residential, apartments, office, schools and Church. What else would you want?
Property Taxes
| Parcel Number | 3106-191-02 | Improvements Assessment | $0 |
| Land Assessment | $265,302 | Total Assessment | $265,302 |
Property Taxes
Listing ID: 3901030
Date on Market: 9/24/2016
Last Updated:
Address: 15151 Hook Blvd, Victorville, CA 92394
The Land Property at 15151 Hook Blvd, Victorville, CA 92394 is no longer being advertised on LoopNet.com. Contact the broker for information on availability.
NEARBY LISTINGS
- NEC Lindero Street & Tamarisk Road, Victorville CA
- Cottonwood Ave, Victorville CA
- Lots 1&2 Bear Valley Road, Victorville CA
- Mc Art Rd, Victorville CA
- APN 3071-531-09 Vincent, Victorville CA
- 28 Palmdale Rd, Victorville CA
- Begonia Rd, Victorville CA
- Seneca Rd, Victorville CA
- Bear Valley Rd, Hesperia CA
- 12276 Cobalt Rd, Victorville CA
- Hwy 395, Victorville CA
- 16138 Lorene Dr, Victorville CA
- 0 Tuscola Rd, Apple Valley CA
- 15403 Bear Valley Rd, Hesperia CA
- 0 Cassia Rd Rd, Adelanto CA
