Your email has been sent.
1520-1536 Wynkoop St - Alliance Center Coworking Space Available in Denver, CO 80202



Highlights
- cafe, event space, and conference rooms
- exposed historic brick and beams
- natural light
All Available Spaces(4)
Display Rental Rate as
- Space
- No. of People
- Size
- Rental Rate
- Space Use
The Alliance Center is a mission-driven coworking space and event venue located in downtown Denver. Our LEED Certified and WELL Health + Safety rated building is home to dozens of organizations working to create a more sustainable and equitable world. Conveniently located in Lower Downtown Denver, our space offers a diverse array of sustainable amenities. We offer high-quality, affordable, move-in ready workspaces that can accommodate anything from drop-in usage to larger teams. As a nonprofit shared space, we prioritize other nonprofits and offer discounted rates to nonprofits. Options are move-in ready and flexible, including flexible terms (such as one-year agreements). Pricing is typically determined on a price per suite basis, so the price per square foot may not accurately reflect the monthly cost. Pricing also includes access to 16 shared conference rooms and other community/shared spaces. Please reach out for exact pricing! We are a community of mission-driven professionals in a building that 'walks the walk' of sustainability and located just a block from Union Station. We offer a lactation room, showers, lockers, bike parking, EV charging, high speed (1GB internet) and pay-per-page printing options. We have an on-site event space, where tenants receive an allotment of free space each year. Additionally, tenants have shared access to 16 other conference rooms throughout the building. Our on-site cafe has coffee and food options. We're also dog friendly! Learn more at www.thealliancecenter.org!
-
Term
-
- Space available from coworking provider
- 4 Private Offices
- 16 Conference Rooms
- 16 Workstations
- Plug & Play
- Central Air and Heating
- Reception Area
- Wi-Fi Connectivity
- Print/Copy Room
- Fully Carpeted
- Exposed Ceiling
- Secure Storage
- Natural Light
- Bicycle Storage
- Shower Facilities
- Energy Performance Rating - A
- Open-Plan
- Wheelchair Accessible
The Alliance Center is a mission-driven coworking space and event venue located in downtown Denver. Our LEED Certified and WELL Health + Safety rated building is home to dozens of organizations working to create a more sustainable and equitable world. Conveniently located in Lower Downtown Denver, our space offers a diverse array of sustainable amenities. We offer high-quality, affordable, move-in ready workspaces that can accommodate anything from drop-in usage to larger teams. As a nonprofit shared space, we prioritize other nonprofits and offer discounted rates to nonprofits. Options are move-in ready and flexible, including flexible terms (such as one-year agreements). Pricing is typically determined on a price per suite basis, so the price per square foot may not accurately reflect the monthly cost. Pricing also includes access to 16 shared conference rooms and other community/shared spaces. Please reach out for exact pricing! We are a community of mission-driven professionals in a building that 'walks the walk' of sustainability and located just a block from Union Station. We offer a lactation room, showers, lockers, bike parking, EV charging, high speed (1GB internet) and pay-per-page printing options. We have an on-site event space, where tenants receive an allotment of free space each year. Additionally, tenants have shared access to 16 other conference rooms throughout the building. Our on-site cafe has coffee and food options. We're also dog friendly! Learn more at www.thealliancecenter.org!
-
Term
-
- Space available from coworking provider
- 4 Private Offices
- 16 Conference Rooms
- 16 Workstations
- Plug & Play
- Central Air and Heating
- Reception Area
- Wi-Fi Connectivity
- Print/Copy Room
- Fully Carpeted
- Exposed Ceiling
- Secure Storage
- Natural Light
- Bicycle Storage
- Shower Facilities
- Energy Performance Rating - A
- Open-Plan
- Wheelchair Accessible
The Alliance Center is a mission-driven coworking space and event venue located in downtown Denver. Our LEED Certified and WELL Health + Safety rated building is home to dozens of organizations working to create a more sustainable and equitable world. Conveniently located in Lower Downtown Denver, our space offers a diverse array of sustainable amenities. We offer high-quality, affordable, move-in ready workspaces that can accommodate anything from drop-in usage to larger teams. As a nonprofit shared space, we prioritize other nonprofits and offer discounted rates to nonprofits. Options are move-in ready and flexible, including flexible terms (such as one-year agreements). Pricing is typically determine on a price per suite basis, so the price per square foot may not accurately reflect the monthly cost. Pricing also includes access to 16 shared conference rooms and other community/shared spaces. Please reach out for exact pricing! We are a community of mission-driven professionals in a building that 'walks the walk' of sustainability and located just a block from Union Station. We offer a lactation room, showers, lockers, bike parking, EV charging, high speed (1GB internet) and pay-per-page printing options. We have an on-site event space, where tenants receive an allotment of free space each year. Additionally, tenants have shared access to 16 other conference rooms throughout the building. Our on-site cafe has coffee and food options. We're also dog friendly! Learn more at www.thealliancecenter.org!
-
Term
-
- Space available from coworking provider
- 6 Private Offices
- 16 Conference Rooms
- 19 Workstations
- Plug & Play
- Can be combined with additional space(s) for up to 10,000 SF of adjacent space
- Central Air and Heating
- Reception Area
- Wi-Fi Connectivity
- Print/Copy Room
- Fully Carpeted
- Exposed Ceiling
- Secure Storage
- Natural Light
- Bicycle Storage
- Shower Facilities
- Energy Performance Rating - A
- Open-Plan
The Alliance Center is a mission-driven coworking space and event venue located in downtown Denver. Our LEED Certified and WELL Health + Safety rated building is home to dozens of organizations working to create a more sustainable and equitable world. Conveniently located in Lower Downtown Denver, our space offers a diverse array of sustainable amenities. We offer high-quality, affordable, move-in ready workspaces that can accommodate anything from drop-in usage to larger teams. As a nonprofit shared space, we prioritize other nonprofits and offer discounted rates to nonprofits. Options are move-in ready and flexible, including flexible terms (such as one-year agreements). Pricing is typically determine on a price per suite basis, so the price per square foot may not accurately reflect the monthly cost. Pricing also includes access to 16 shared conference rooms and other community/shared spaces. Please reach out for exact pricing! We are a community of mission-driven professionals in a building that 'walks the walk' of sustainability and located just a block from Union Station. We offer a lactation room, showers, lockers, bike parking, EV charging, high speed (1GB internet) and pay-per-page printing options. We have an on-site event space, where tenants receive an allotment of free space each year. Additionally, tenants have shared access to 16 other conference rooms throughout the building. Our on-site cafe has coffee and food options. We're also dog friendly! Learn more at www.thealliancecenter.org!
-
Term
-
- Space available from coworking provider
- 6 Private Offices
- 16 Conference Rooms
- 19 Workstations
- Plug & Play
- Can be combined with additional space(s) for up to 10,000 SF of adjacent space
- Central Air and Heating
- Reception Area
- Wi-Fi Connectivity
- Print/Copy Room
- Fully Carpeted
- Exposed Ceiling
- Secure Storage
- Natural Light
- Bicycle Storage
- Shower Facilities
- Energy Performance Rating - A
- Open-Plan
| Space | No. of People | Size | Rental Rate | Space Use |
| Lower Level | 6 - 18 | 2,202 SF | Upon Request Upon Request Upon Request Upon Request | Office |
| 2nd Floor | 1 - 14 | 50-1,650 SF | Upon Request Upon Request Upon Request Upon Request | Office |
| 4th Floor | 7 - 40 | 2,500-5,000 SF | Upon Request Upon Request Upon Request Upon Request | Office |
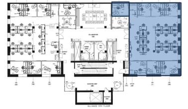
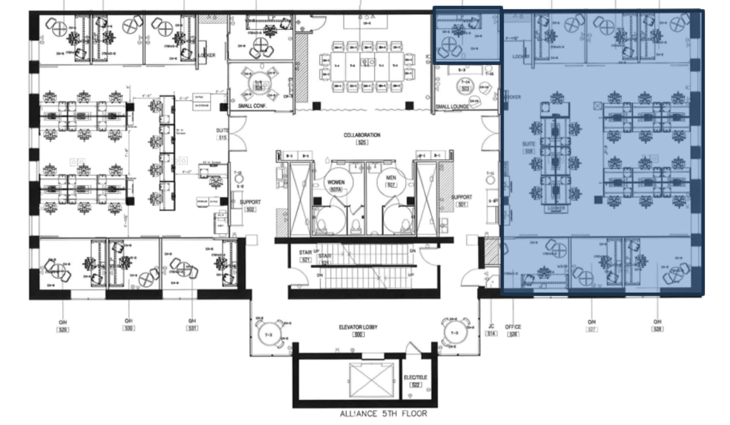
| 5th Floor | 7 - 40 | 2,500-5,000 SF | Upon Request Upon Request Upon Request Upon Request | Office |
Lower Level
| No. of People |
| 6 - 18 |
| Size |
| 2,202 SF |
| Term |
| - |
| Rental Rate |
| Upon Request Upon Request Upon Request Upon Request |
| Space Use |
| Office |
2nd Floor
| No. of People |
| 1 - 14 |
| Size |
| 50-1,650 SF |
| Term |
| - |
| Rental Rate |
| Upon Request Upon Request Upon Request Upon Request |
| Space Use |
| Office |
4th Floor
| No. of People |
| 7 - 40 |
| Size |
| 2,500-5,000 SF |
| Term |
| - |
| Rental Rate |
| Upon Request Upon Request Upon Request Upon Request |
| Space Use |
| Office |
5th Floor
| No. of People |
| 7 - 40 |
| Size |
| 2,500-5,000 SF |
| Term |
| - |
| Rental Rate |
| Upon Request Upon Request Upon Request Upon Request |
| Space Use |
| Office |
Lower Level
| No. of People | 6 - 18 |
| Size | 2,202 SF |
| Term | - |
| Rental Rate | Upon Request |
| Space Use | Office |
The Alliance Center is a mission-driven coworking space and event venue located in downtown Denver. Our LEED Certified and WELL Health + Safety rated building is home to dozens of organizations working to create a more sustainable and equitable world. Conveniently located in Lower Downtown Denver, our space offers a diverse array of sustainable amenities. We offer high-quality, affordable, move-in ready workspaces that can accommodate anything from drop-in usage to larger teams. As a nonprofit shared space, we prioritize other nonprofits and offer discounted rates to nonprofits. Options are move-in ready and flexible, including flexible terms (such as one-year agreements). Pricing is typically determined on a price per suite basis, so the price per square foot may not accurately reflect the monthly cost. Pricing also includes access to 16 shared conference rooms and other community/shared spaces. Please reach out for exact pricing! We are a community of mission-driven professionals in a building that 'walks the walk' of sustainability and located just a block from Union Station. We offer a lactation room, showers, lockers, bike parking, EV charging, high speed (1GB internet) and pay-per-page printing options. We have an on-site event space, where tenants receive an allotment of free space each year. Additionally, tenants have shared access to 16 other conference rooms throughout the building. Our on-site cafe has coffee and food options. We're also dog friendly! Learn more at www.thealliancecenter.org!
- Space available from coworking provider
- 4 Private Offices
- 16 Conference Rooms
- 16 Workstations
- Plug & Play
- Central Air and Heating
- Reception Area
- Wi-Fi Connectivity
- Print/Copy Room
- Fully Carpeted
- Exposed Ceiling
- Secure Storage
- Natural Light
- Bicycle Storage
- Shower Facilities
- Energy Performance Rating - A
- Open-Plan
- Wheelchair Accessible
2nd Floor
| No. of People | 1 - 14 |
| Size | 50-1,650 SF |
| Term | - |
| Rental Rate | Upon Request |
| Space Use | Office |
The Alliance Center is a mission-driven coworking space and event venue located in downtown Denver. Our LEED Certified and WELL Health + Safety rated building is home to dozens of organizations working to create a more sustainable and equitable world. Conveniently located in Lower Downtown Denver, our space offers a diverse array of sustainable amenities. We offer high-quality, affordable, move-in ready workspaces that can accommodate anything from drop-in usage to larger teams. As a nonprofit shared space, we prioritize other nonprofits and offer discounted rates to nonprofits. Options are move-in ready and flexible, including flexible terms (such as one-year agreements). Pricing is typically determined on a price per suite basis, so the price per square foot may not accurately reflect the monthly cost. Pricing also includes access to 16 shared conference rooms and other community/shared spaces. Please reach out for exact pricing! We are a community of mission-driven professionals in a building that 'walks the walk' of sustainability and located just a block from Union Station. We offer a lactation room, showers, lockers, bike parking, EV charging, high speed (1GB internet) and pay-per-page printing options. We have an on-site event space, where tenants receive an allotment of free space each year. Additionally, tenants have shared access to 16 other conference rooms throughout the building. Our on-site cafe has coffee and food options. We're also dog friendly! Learn more at www.thealliancecenter.org!
- Space available from coworking provider
- 4 Private Offices
- 16 Conference Rooms
- 16 Workstations
- Plug & Play
- Central Air and Heating
- Reception Area
- Wi-Fi Connectivity
- Print/Copy Room
- Fully Carpeted
- Exposed Ceiling
- Secure Storage
- Natural Light
- Bicycle Storage
- Shower Facilities
- Energy Performance Rating - A
- Open-Plan
- Wheelchair Accessible
4th Floor
| No. of People | 7 - 40 |
| Size | 2,500-5,000 SF |
| Term | - |
| Rental Rate | Upon Request |
| Space Use | Office |
The Alliance Center is a mission-driven coworking space and event venue located in downtown Denver. Our LEED Certified and WELL Health + Safety rated building is home to dozens of organizations working to create a more sustainable and equitable world. Conveniently located in Lower Downtown Denver, our space offers a diverse array of sustainable amenities. We offer high-quality, affordable, move-in ready workspaces that can accommodate anything from drop-in usage to larger teams. As a nonprofit shared space, we prioritize other nonprofits and offer discounted rates to nonprofits. Options are move-in ready and flexible, including flexible terms (such as one-year agreements). Pricing is typically determine on a price per suite basis, so the price per square foot may not accurately reflect the monthly cost. Pricing also includes access to 16 shared conference rooms and other community/shared spaces. Please reach out for exact pricing! We are a community of mission-driven professionals in a building that 'walks the walk' of sustainability and located just a block from Union Station. We offer a lactation room, showers, lockers, bike parking, EV charging, high speed (1GB internet) and pay-per-page printing options. We have an on-site event space, where tenants receive an allotment of free space each year. Additionally, tenants have shared access to 16 other conference rooms throughout the building. Our on-site cafe has coffee and food options. We're also dog friendly! Learn more at www.thealliancecenter.org!
- Space available from coworking provider
- 6 Private Offices
- 16 Conference Rooms
- 19 Workstations
- Plug & Play
- Can be combined with additional space(s) for up to 10,000 SF of adjacent space
- Central Air and Heating
- Reception Area
- Wi-Fi Connectivity
- Print/Copy Room
- Fully Carpeted
- Exposed Ceiling
- Secure Storage
- Natural Light
- Bicycle Storage
- Shower Facilities
- Energy Performance Rating - A
- Open-Plan
5th Floor
| No. of People | 7 - 40 |
| Size | 2,500-5,000 SF |
| Term | - |
| Rental Rate | Upon Request |
| Space Use | Office |
The Alliance Center is a mission-driven coworking space and event venue located in downtown Denver. Our LEED Certified and WELL Health + Safety rated building is home to dozens of organizations working to create a more sustainable and equitable world. Conveniently located in Lower Downtown Denver, our space offers a diverse array of sustainable amenities. We offer high-quality, affordable, move-in ready workspaces that can accommodate anything from drop-in usage to larger teams. As a nonprofit shared space, we prioritize other nonprofits and offer discounted rates to nonprofits. Options are move-in ready and flexible, including flexible terms (such as one-year agreements). Pricing is typically determine on a price per suite basis, so the price per square foot may not accurately reflect the monthly cost. Pricing also includes access to 16 shared conference rooms and other community/shared spaces. Please reach out for exact pricing! We are a community of mission-driven professionals in a building that 'walks the walk' of sustainability and located just a block from Union Station. We offer a lactation room, showers, lockers, bike parking, EV charging, high speed (1GB internet) and pay-per-page printing options. We have an on-site event space, where tenants receive an allotment of free space each year. Additionally, tenants have shared access to 16 other conference rooms throughout the building. Our on-site cafe has coffee and food options. We're also dog friendly! Learn more at www.thealliancecenter.org!
- Space available from coworking provider
- 6 Private Offices
- 16 Conference Rooms
- 19 Workstations
- Plug & Play
- Can be combined with additional space(s) for up to 10,000 SF of adjacent space
- Central Air and Heating
- Reception Area
- Wi-Fi Connectivity
- Print/Copy Room
- Fully Carpeted
- Exposed Ceiling
- Secure Storage
- Natural Light
- Bicycle Storage
- Shower Facilities
- Energy Performance Rating - A
- Open-Plan
About the Property
The six-story, 36,000-square-foot brick building was erected in 1908. We purchased the building in 2004 and have been a mission-driven shared space ever since (the first shared space in Denver!). Tenants either have private suites or reserved desks/offices within shared suites (a more economical and flexible option for groups still deciding what their in-person footprint looks like). Additional suites may be available outside of what is listed, please reach out! Tenants get 24/7 building access, as well as unlimited access to 16 conference rooms of various sizes and a $600 allotment for our first floor event space. Tenancy is tied to a contract agreement and we require a 150% security deposit. Suites are a minimum one year agreement, but for desks and private offices we can do a shorter term (month to month, 6 months, etc) for a slight increase. Conference Rooms We have 16 conference rooms of varying sizes that hold between 4-14 people. We use an online reservation system to book meetings so you can see and book well in advance. Tenants get unlimited conference room access. Event Space We also have a first floor event space that is open to the public. We can do all sorts of different events, from board meetings to happy hours. It's a flexible space and can hold between 10-150 people, depending on the set. Tenants get a prorated allotment that they can use in the event space, then there are discounted rates beyond that. Printing We have two printers in the building, one on the 4th floor and one on the 1st floor. Printing is pay per page, so you never pay if you never use it. The cost is $0.07/page for black and white or $0.20/page for color. You can bring your own printer, but it would have to be kept within your org's footprint so it doesn't take up community space. Storage There are storage cages available in our basement that are perfect for things like accounting files, collateral, etc. Prices and sizes vary, but space starts at $15/month. Parking We own the parking lot adjacent to our building. For organizations, depending on your footprint, we can do 1 or 2 reserved parking spaces starting at $225/month for 24/5 parking. Otherwise, most of the lot is available on a first come basis for tenants and visitors. The cost is $20/day. We're also very close to Union Station and Cherry Creek Trail, so alternate transit is very easy to access! For bike commuters, we have indoor bike parking as well as showers and lockers. Security and Visitors Our front doors facing Wynkoop Street are unlocked from 7:30-5pm daily as we have a cafe on our first floor that is open to the public. Our staff is onsite from 8:30-5pm and during those hours, we will sign for packages, help visitors get where they need to be, check out temporary key cards, and just generally are around to be helpful. Access to our other floors via stairs or elevators is via key card access only. Each suite is also locked 24/7 and only accessible via key card, unless someone props a door open. Visitors are encouraged to check in with us and if they know where they are going (ie I have a meeting in conference room 2B) then we will let them up and direct them to the appropriate room. If they are meeting someone specific, then we will call that person and follow their instructions. Other Amenities We're located in a LEED certified building where we walk the walk with compost, green cleaning materials, a hard to recycle station, bike parking, and a like-minded community of changemakers. We are a nonprofit ourselves, so we offer discounted nonprofit rates. We also have a wellness room for nursing parents, meditation space, regular yoga classes and happy hour events, and an on-site cafe with great coffee and food options.
Features and Amenities
- Bus Line
- Controlled Access
- Commuter Rail
- Conferencing Facility
- Courtyard
- Property Manager on Site
- Storage Space
- Car Charging Station
- Bicycle Storage
- Central Heating
- Natural Light
- Partitioned Offices
- Plug & Play
- Secure Storage
- Shower Facilities
- Wi-Fi
- Outdoor Seating
- Air Conditioning
Sustainability
Sustainability
LEED Certification Developed by the U.S. Green Building Council (USGBC), the Leadership in Energy and Environmental Design (LEED) is a green building certification program focused on the design, construction, operation, and maintenance of green buildings, homes, and neighborhoods, which aims to help building owners and operators be environmentally responsible and use resources efficiently. LEED certification is a globally recognized symbol of sustainability achievement and leadership. To achieve LEED certification, a project earns points by adhering to prerequisites and credits that address carbon, energy, water, waste, transportation, materials, health and indoor environmental quality. Projects go through a verification and review process and are awarded points that correspond to a level of LEED certification: Platinum (80+ points) Gold (60-79 points) Silver (50-59 points) Certified (40-49 points)
Select Tenants at This Property
- Floor
- Tenant Name
- Industry
- Multiple
- AIA Colorado
- Services
- Multiple
- Early Milestones Colorado
- Services
- 2nd
- Impact Charitable
- Services
- Unknown
- Sierra Club
- -
- 1st
- The Alliance Center
- Professional, Scientific, and Technical Services
- Multiple
- Urban Ventures LLC
- Construction
- Unknown
- Weave Social Finance
- Professional, Scientific, and Technical Services
Contact the Leasing Agent
1520-1536 Wynkoop St - Alliance Center









