Enter your email to login or create a free account
This feature is unavailable at the moment.
We apologize, but the feature you are trying to access is currently unavailable. We are aware of this issue and our team is working hard to resolve the matter.
Please check back in a few minutes. We apologize for the inconvenience.
- LoopNet Team
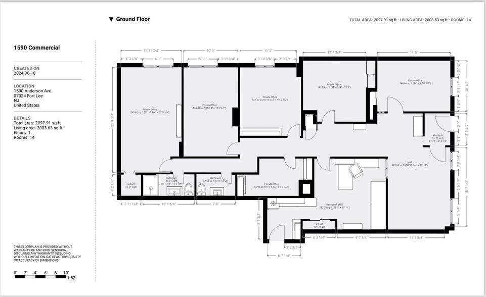
1590 Anderson
Fort Lee, NJ 07024
2,100 SF-Best Professional Space in Fort Lee · Multifamily Property For Sale
·
226 Units

Investment Highlights
- 2,100 SF Medical / Office Suite
- Renovated in 2024
- Delivered Vacant upon Sale
- 200+ Unit Residential Building Above
- HOA Includes Taxes, Insurance, CAM Charges, Cable, etc.
- 4 Parking Spaces Deeded | 10 Common Parking Spaces
Executive Summary
Introducing a prime owner-user or investment opportunity in Fort Lee, NJ! This well-maintained property boasts a 2,100 SF building, recently renovated in 2024, and currently enjoys a 100% occupancy rate. With this ground floor unit, this property offers an ideal setup for Office/Medical space owner-users and investors seeking a lucrative opportunity in the Northern NJ area. Renovated in 2020 and zoned R-2, it presents a strong and stable investment potential. Don't miss out on this turnkey property with great potential for future growth and attractive returns.
Property Facts
| No. Units | 226 | Building Size | 264,363 SF |
| Property Type | Multifamily | Average Occupancy | 0% |
| Property Subtype | Apartment | No. Stories | 22 |
| Apartment Style | Hi-Rise | Year Built/Renovated | 1972/2020 |
| Building Class | C | Parking Ratio | 1.23/1,000 SF |
| Lot Size | 1.81 AC | APN / Parcel ID | 19-04151-0000-00013 |
| Zoning | R2 - 2,100 SF Ground floor commercial space is zoned for office and medical use. | ||
| No. Units | 226 |
| Property Type | Multifamily |
| Property Subtype | Apartment |
| Apartment Style | Hi-Rise |
| Building Class | C |
| Lot Size | 1.81 AC |
| Building Size | 264,363 SF |
| Average Occupancy | 0% |
| No. Stories | 22 |
| Year Built/Renovated | 1972/2020 |
| Parking Ratio | 1.23/1,000 SF |
| APN / Parcel ID | 19-04151-0000-00013 |
| Zoning | R2 - 2,100 SF Ground floor commercial space is zoned for office and medical use. |
Amenities
Unit Amenities
- Air Conditioning
- Balcony
- Dishwasher
- Heating
- Kitchen
- Refrigerator
- Oven
- Freezer
Site Amenities
- 24 Hour Access
- Fitness Center
- Laundry Facilities
- Pool
- Doorman
- Sundeck
Links
Listing ID: 35996259
Date on Market: 5/27/2025
Last Updated:
Address: 1590 Anderson, Fort Lee, NJ 07024
The Multifamily Property at 1590 Anderson, Fort Lee, NJ 07024 is no longer being advertised on LoopNet.com. Contact the broker for information on availability.
MULTIFAMILY PROPERTIES IN NEARBY NEIGHBORHOODS
- Central Queens Apartment Buildings
- Upper East Side Apartment Buildings
- Northwestern Queens Apartment Buildings
- Williamsburg Apartment Buildings
- Lower West Side Apartment Buildings
- Lower East Side Apartment Buildings
- Midtown South Apartment Buildings
- Harlem Apartment Buildings
- South Bronx Apartment Buildings
- Upper West Side Apartment Buildings
- West Bronx Apartment Buildings
- East Harlem Apartment Buildings
- Midtown West Apartment Buildings
- East Village Apartment Buildings
- Chelsea Apartment Buildings
NEARBY LISTINGS
- 484 Amsterdam Ave, New York NY
- 6 Alliotts Pl, Palisades Park NJ
- 2185 Lemoine Ave, Fort Lee NJ
- 2131 Frederick Douglass Blvd, New York NY
- 2295 Adam Clayton Powell Jr Blvd, New York NY
- 82 Bradhurst Avenue, New York NY
- 176 W 87th St, New York NY
- 520 Cliff St, Fairview NJ
- 239 E 116th St, New York NY
- 78 W 170th St, Bronx NY
- 40 E 94th St, New York NY
- 2073 Ryer Ave, Bronx NY
- 168 W 133rd St, New York NY
- 467 Hudson St, Hackensack NJ
- 231 E 123rd St, New York NY
