Your email has been sent.
Tri-City Medical Arts Building 161 Thunder Dr 764 - 12,906 SF of Office/Medical Space Available in Vista, CA 92083



All Available Spaces(4)
Display Rental Rate as
- Space
- Size
- Term
- Rental Rate
- Space Use
- Condition
- Available
Suite 106 (Contiguous with Suite 108 - 11,730 RSF) • Space Available: 2,683 SF • Lease Rate: $2.40/SF • Lease Type: NNN • Suite Description: Waiting Room. Reception/Admin. 6 Exam Rooms. 2 Doctor’s Offices. 2 In-Suite Restrooms. Breakroom and 2 Storage Rooms. Floor Plan: https://medwestrealty.com/wp-content/uploads/2023/09/Suite-106.jpg Virtual Tour: https://my.matterport.com/show/?m=xeKmdTV3zDA
- Lease rate does not include utilities, property expenses or building services
- Office intensive layout
- Reception Area
- High Visibility
- Partially Built-Out as Standard Medical Space
- Can be combined with additional space(s) for up to 11,330 SF of adjacent space
- Private Restrooms
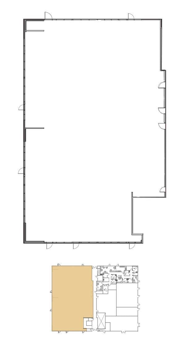
Suite 108 (Contiguous with Suite 106 - 11,730 RSF) • Space Available: 8,647 SF • Lease Rate: $2.40/SF • Lease Type: NNN • Suite Description: Shell Space. Ready for Tenant’s customization. Floor Plan: https://medwestrealty.com/wp-content/uploads/2023/09/Suite-108.jpg
- Lease rate does not include utilities, property expenses or building services
- Mostly Open Floor Plan Layout
- Can be combined with additional space(s) for up to 11,330 SF of adjacent space
- Fully Built-Out as Standard Medical Space
- Space is in Excellent Condition
- High Visibility
Suite 203 • Space Available: 812 SF • Lease Rate: $2.40/SF • Lease Type: NNN • Suite Description: Open Build-out. Floor Plan: https://medwestrealty.com/wp-content/uploads/2023/09/Suite-203.jpg
- Lease rate does not include utilities, property expenses or building services
- Open Floor Plan Layout
- Fully Built-Out as Standard Medical Space
- Space is in Excellent Condition
Suite 209 • Space Available: 764 SF • Lease Rate: $2.40/SF • Lease Type: NNN • Suite Description: Waiting Room. Reception/Admin. 3 Exam Rooms. In-Suite Restroom, and Nurses’ Station. Floor Plan: https://medwestrealty.com/wp-content/uploads/2023/09/Suite-209-scaled.png Virtual Tour: https://my.matterport.com/show/?m=Q7fn5GBYHsB
- Lease rate does not include utilities, property expenses or building services
| Space | Size | Term | Rental Rate | Space Use | Condition | Available |
| 1st Floor, Ste 106 | 2,683 SF | Negotiable | $28.80 /SF/YR $2.40 /SF/MO $77,270 /YR $6,439 /MO | Office/Medical | Partial Build-Out | Now |
| 1st Floor, Ste 108 | 8,647 SF | Negotiable | $28.80 /SF/YR $2.40 /SF/MO $249,034 /YR $20,753 /MO | Office/Medical | Full Build-Out | Now |
| 2nd Floor, Ste 203 | 812 SF | Negotiable | $28.80 /SF/YR $2.40 /SF/MO $23,386 /YR $1,949 /MO | Office/Medical | Full Build-Out | Now |
| 2nd Floor, Ste 209 | 764 SF | Negotiable | $28.80 /SF/YR $2.40 /SF/MO $22,003 /YR $1,834 /MO | Office/Medical | - | Now |
1st Floor, Ste 106
| Size |
| 2,683 SF |
| Term |
| Negotiable |
| Rental Rate |
| $28.80 /SF/YR $2.40 /SF/MO $77,270 /YR $6,439 /MO |
| Space Use |
| Office/Medical |
| Condition |
| Partial Build-Out |
| Available |
| Now |
1st Floor, Ste 108
| Size |
| 8,647 SF |
| Term |
| Negotiable |
| Rental Rate |
| $28.80 /SF/YR $2.40 /SF/MO $249,034 /YR $20,753 /MO |
| Space Use |
| Office/Medical |
| Condition |
| Full Build-Out |
| Available |
| Now |
2nd Floor, Ste 203
| Size |
| 812 SF |
| Term |
| Negotiable |
| Rental Rate |
| $28.80 /SF/YR $2.40 /SF/MO $23,386 /YR $1,949 /MO |
| Space Use |
| Office/Medical |
| Condition |
| Full Build-Out |
| Available |
| Now |
2nd Floor, Ste 209
| Size |
| 764 SF |
| Term |
| Negotiable |
| Rental Rate |
| $28.80 /SF/YR $2.40 /SF/MO $22,003 /YR $1,834 /MO |
| Space Use |
| Office/Medical |
| Condition |
| - |
| Available |
| Now |
1st Floor, Ste 106
| Size | 2,683 SF |
| Term | Negotiable |
| Rental Rate | $28.80 /SF/YR |
| Space Use | Office/Medical |
| Condition | Partial Build-Out |
| Available | Now |
Suite 106 (Contiguous with Suite 108 - 11,730 RSF) • Space Available: 2,683 SF • Lease Rate: $2.40/SF • Lease Type: NNN • Suite Description: Waiting Room. Reception/Admin. 6 Exam Rooms. 2 Doctor’s Offices. 2 In-Suite Restrooms. Breakroom and 2 Storage Rooms. Floor Plan: https://medwestrealty.com/wp-content/uploads/2023/09/Suite-106.jpg Virtual Tour: https://my.matterport.com/show/?m=xeKmdTV3zDA
- Lease rate does not include utilities, property expenses or building services
- Partially Built-Out as Standard Medical Space
- Office intensive layout
- Can be combined with additional space(s) for up to 11,330 SF of adjacent space
- Reception Area
- Private Restrooms
- High Visibility
1st Floor, Ste 108
| Size | 8,647 SF |
| Term | Negotiable |
| Rental Rate | $28.80 /SF/YR |
| Space Use | Office/Medical |
| Condition | Full Build-Out |
| Available | Now |
Suite 108 (Contiguous with Suite 106 - 11,730 RSF) • Space Available: 8,647 SF • Lease Rate: $2.40/SF • Lease Type: NNN • Suite Description: Shell Space. Ready for Tenant’s customization. Floor Plan: https://medwestrealty.com/wp-content/uploads/2023/09/Suite-108.jpg
- Lease rate does not include utilities, property expenses or building services
- Fully Built-Out as Standard Medical Space
- Mostly Open Floor Plan Layout
- Space is in Excellent Condition
- Can be combined with additional space(s) for up to 11,330 SF of adjacent space
- High Visibility
2nd Floor, Ste 203
| Size | 812 SF |
| Term | Negotiable |
| Rental Rate | $28.80 /SF/YR |
| Space Use | Office/Medical |
| Condition | Full Build-Out |
| Available | Now |
Suite 203 • Space Available: 812 SF • Lease Rate: $2.40/SF • Lease Type: NNN • Suite Description: Open Build-out. Floor Plan: https://medwestrealty.com/wp-content/uploads/2023/09/Suite-203.jpg
- Lease rate does not include utilities, property expenses or building services
- Fully Built-Out as Standard Medical Space
- Open Floor Plan Layout
- Space is in Excellent Condition
2nd Floor, Ste 209
| Size | 764 SF |
| Term | Negotiable |
| Rental Rate | $28.80 /SF/YR |
| Space Use | Office/Medical |
| Condition | - |
| Available | Now |
Suite 209 • Space Available: 764 SF • Lease Rate: $2.40/SF • Lease Type: NNN • Suite Description: Waiting Room. Reception/Admin. 3 Exam Rooms. In-Suite Restroom, and Nurses’ Station. Floor Plan: https://medwestrealty.com/wp-content/uploads/2023/09/Suite-209-scaled.png Virtual Tour: https://my.matterport.com/show/?m=Q7fn5GBYHsB
- Lease rate does not include utilities, property expenses or building services
Property Overview
Tri-City Medical Arts Building 161 Thunder Drive, Vista, CA 92083 The Tri City Medical Arts building is located at 161 Thunder Drive in Vista, CA . This medical office building offers over 30,000 SF of prime medical office space across the street from the renowned Tri-City Medical Center. The building features multiple medical office suites ranging from 800 SF – 8,600 SF with abundant window lines, multiple entrance options, and large open floorplans, providing an ideal environment for medical practices, Vista and Oceanside, part of the vibrant North County San Diego region, are known for their growing populations of young families and retirees, creating a strong demand for quality healthcare services. The North County San Diego region continues to see significant growth in the medical sector, making this location highly desirable for healthcare providers. With its strategic location, modern amenities, and proximity to a major medical center, 161 Thunder Drive is well-positioned to meet the needs of a growing and diverse population. ------------------------ Property Features: PRIME LOCATION • Building is located across the street from Tri-City Medical Center, which is situated in the heart of Vista, California VISIBILITY • Building top signage to help amplify your brand in the North County San Diego community AMPLE PARKING • Ample retail-like parking with a drive-up and walk-in opportunity for patients and staff ------------------------ 4 Suites Available: ------------------------ Suite 106 (Contiguous with Suite 108 - 11,730 RSF) • Space Available: 2,683 SF • Lease Rate: $2.40/SF • Lease Type: NNN • Suite Description: Waiting Room. Reception/Admin. 6 Exam Rooms. 2 Doctor’s Offices. 2 In-Suite Restrooms. Breakroom and 2 Storage Rooms. Floor Plan: https://medwestrealty.com/wp-content/uploads/2023/09/Suite-106.jpg Virtual Tour: https://my.matterport.com/show/?m=xeKmdTV3zDA ------------------------ Suite 108 (Contiguous with Suite 106 - 11,730 RSF) • Space Available: 8,647 SF • Lease Rate: $2.40/SF • Lease Type: NNN • Suite Description: Shell Space. Ready for Tenant’s customization. Floor Plan: https://medwestrealty.com/wp-content/uploads/2023/09/Suite-108.jpg ------------------------ Suite 203 • Space Available: 812 SF • Lease Rate: $2.40/SF • Lease Type: NNN • Suite Description: Open Build-out. Floor Plan: https://medwestrealty.com/wp-content/uploads/2023/09/Suite-203.jpg ------------------------ Suite 209 • Space Available: 764 SF • Lease Rate: $2.40/SF • Lease Type: NNN • Suite Description: Waiting Room. Reception/Admin. 3 Exam Rooms. In-Suite Restroom, and Nurses’ Station. Floor Plan: https://medwestrealty.com/wp-content/uploads/2023/09/Suite-209-scaled.png Virtual Tour: https://my.matterport.com/show/?m=Q7fn5GBYHsB ------------------------ MORE DETAILS: https://medicalofficeproperty.com/property/161-thunder-drive-vista-ca/ DOWNLOAD BROCHURE: https://medwestrealty.com/wp-content/uploads/2023/09/MW_ShareMD161-Thunder-Dr-LB15_WL.pdf
- Signage
Property Facts
Presented by
Tri-City Medical Arts Building | 161 Thunder Dr
Hmm, there seems to have been an error sending your message. Please try again.
Thanks! Your message was sent.








