Log In/Sign Up
Your email has been sent.
1626 Cranium Dr - Building III 3,677 SF Office/Medical Condo Unit Offered at $824,000 in Rock Hill, SC 29732



1 Unit Available
Unit 103
| Unit Size | 3,677 SF | Condo Use | Office/Medical |
| Price | $824,000 | Sale Type | Investment or Owner User |
| Price Per SF | $224.10 | APN/Parcel ID | 5950801008 |
| Unit Size | 3,677 SF |
| Price | $824,000 |
| Price Per SF | $224.10 |
| Condo Use | Office/Medical |
| Sale Type | Investment or Owner User |
| APN/Parcel ID | 5950801008 |
Description
Built out as medical office. 3,677 SF.
Sale Notes
purpose-built medical office condo for sale at $244psf
drone shot 2
top down2
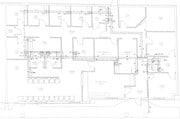
Floor plan 1
IMG_0337
IMG_0339
1 of 5
Videos
Matterport 3D Exterior
Matterport 3D Tour
Photos
Street View
Street
Map
Property Facts
The following property facts apply to the entire building. Details for individual condo units may vary and are listed in the unit information above.
| Total Building Size | 7,323 SF | Typical Floor Size | 7,323 SF |
| Property Type | Office (Condo) | Year Built | 2009 |
| Property Subtype | Medical | Lot Size | 2.97 AC |
| Building Class | B | Parking Ratio | 10/1,000 SF |
| Floors | 1 | ||
| Zoning | PUD - Planned Unit Development | ||
| Total Building Size | 7,323 SF |
| Property Type | Office (Condo) |
| Property Subtype | Medical |
| Building Class | B |
| Floors | 1 |
| Typical Floor Size | 7,323 SF |
| Year Built | 2009 |
| Lot Size | 2.97 AC |
| Parking Ratio | 10/1,000 SF |
| Zoning | PUD - Planned Unit Development |
1 1
Fairly walkable
50/100
Very drivable
80/100
Not bikeable
10/100
1 of 5
Videos
Matterport 3D Exterior
Matterport 3D Tour
Photos
Street View
Street
Map
1 of 1
Presented by
1626 Cranium Dr - Building III
Already a member? Log In
Hmm, there seems to have been an error sending your message. Please try again.
Thanks! Your message was sent.

