Your email has been sent.
HIGHLIGHTS
- A security guard on site.
- Variety of private offices and open areas with lots of natural light.
- Immediate access and convenience to all forms of transportation and amenities.
- High exposed ceilings with an industrial feel.
- Excellent window line on both sides.
- Brightly lit parking facility sits conveniently across the street.
ALL AVAILABLE SPACES(3)
Display Rental Rate as
- SPACE
- SIZE
- TERM
- RENTAL RATE
- SPACE USE
- CONDITION
- AVAILABLE
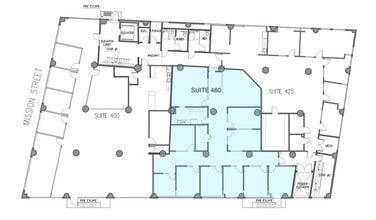
Suite 460 features 9 privates offices in an over mostly-open office floor plan. 3D Virtual Tour: https://my.matterport.com/show/?m=sUfq2rSikCZ
- Listed rate may not include certain utilities, building services and property expenses
- Mostly Open Floor Plan Layout
- 1 Conference Room
- High Ceilings
- Seven regular size offices.
- Excellent Views.
- Fully Built-Out as Standard Office
- 9 Private Offices
- Space is in Excellent Condition
- Two large offices.
- Storage room.
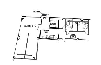
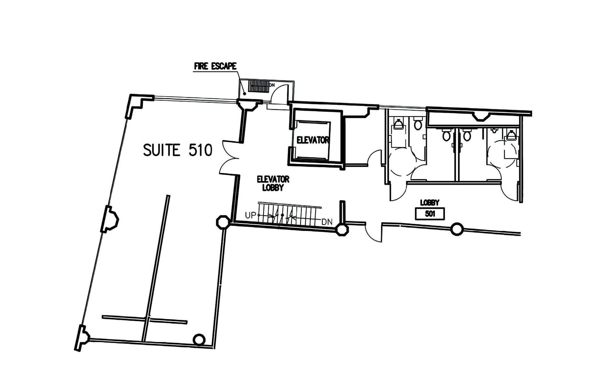
Modern creative offices for lease at 1663 Mission Street, featuring high ceilings, abundant natural light, and flexible floor plans. Suites 510 (±1,140 SF) and 520 (±3,000 SF) can be combined for up to 4,140 SF. Located near SoMa with excellent access to Highway 101, public transit, and nearby amenities. The building offers updated interiors, ADA access, and on-site security — ideal for professional and creative users.
- Listed rate may not include certain utilities, building services and property expenses
- Exposed Ceiling
- Shared bathrooms
- ADA Bathrooms
- 1 Private Office
- Great Natural Light
- Elevator Access
Modern creative offices for lease at 1663 Mission Street, featuring high ceilings, abundant natural light, and flexible floor plans. Suites 510 (±1,140 SF) and 520 (±3,000 SF) can be combined for up to 4,140 SF. Located near SoMa with excellent access to Highway 101, public transit, and nearby amenities. The building offers updated interiors, ADA access, and on-site security — ideal for professional and creative users.
- Listed rate may not include certain utilities, building services and property expenses
- Glass conference room
- Kitchen
- Excellent window line
- Large reception area
- Two interior offices with glass
- Large open area
| Space | Size | Term | Rental Rate | Space Use | Condition | Available |
| 4th Floor, Ste 460 | 3,459 SF | Negotiable | $24.00 /SF/YR $2.00 /SF/MO $83,016 /YR $6,918 /MO | Office | Full Build-Out | Pending |
| 5th Floor, Ste Suite 510 | 1,140 SF | 3-5 Years | $24.00 /SF/YR $2.00 /SF/MO $27,360 /YR $2,280 /MO | Office | - | Now |
| 5th Floor, Ste Suite 520 | 3,000 SF | 3 Years | $24.00 /SF/YR $2.00 /SF/MO $72,000 /YR $6,000 /MO | Office | - | Now |
4th Floor, Ste 460
| Size |
| 3,459 SF |
| Term |
| Negotiable |
| Rental Rate |
| $24.00 /SF/YR $2.00 /SF/MO $83,016 /YR $6,918 /MO |
| Space Use |
| Office |
| Condition |
| Full Build-Out |
| Available |
| Pending |
5th Floor, Ste Suite 510
| Size |
| 1,140 SF |
| Term |
| 3-5 Years |
| Rental Rate |
| $24.00 /SF/YR $2.00 /SF/MO $27,360 /YR $2,280 /MO |
| Space Use |
| Office |
| Condition |
| - |
| Available |
| Now |
5th Floor, Ste Suite 520
| Size |
| 3,000 SF |
| Term |
| 3 Years |
| Rental Rate |
| $24.00 /SF/YR $2.00 /SF/MO $72,000 /YR $6,000 /MO |
| Space Use |
| Office |
| Condition |
| - |
| Available |
| Now |
4th Floor, Ste 460
| Size | 3,459 SF |
| Term | Negotiable |
| Rental Rate | $24.00 /SF/YR |
| Space Use | Office |
| Condition | Full Build-Out |
| Available | Pending |
Suite 460 features 9 privates offices in an over mostly-open office floor plan. 3D Virtual Tour: https://my.matterport.com/show/?m=sUfq2rSikCZ
- Listed rate may not include certain utilities, building services and property expenses
- Fully Built-Out as Standard Office
- Mostly Open Floor Plan Layout
- 9 Private Offices
- 1 Conference Room
- Space is in Excellent Condition
- High Ceilings
- Two large offices.
- Seven regular size offices.
- Storage room.
- Excellent Views.
5th Floor, Ste Suite 510
| Size | 1,140 SF |
| Term | 3-5 Years |
| Rental Rate | $24.00 /SF/YR |
| Space Use | Office |
| Condition | - |
| Available | Now |
Modern creative offices for lease at 1663 Mission Street, featuring high ceilings, abundant natural light, and flexible floor plans. Suites 510 (±1,140 SF) and 520 (±3,000 SF) can be combined for up to 4,140 SF. Located near SoMa with excellent access to Highway 101, public transit, and nearby amenities. The building offers updated interiors, ADA access, and on-site security — ideal for professional and creative users.
- Listed rate may not include certain utilities, building services and property expenses
- 1 Private Office
- Exposed Ceiling
- Great Natural Light
- Shared bathrooms
- Elevator Access
- ADA Bathrooms
5th Floor, Ste Suite 520
| Size | 3,000 SF |
| Term | 3 Years |
| Rental Rate | $24.00 /SF/YR |
| Space Use | Office |
| Condition | - |
| Available | Now |
Modern creative offices for lease at 1663 Mission Street, featuring high ceilings, abundant natural light, and flexible floor plans. Suites 510 (±1,140 SF) and 520 (±3,000 SF) can be combined for up to 4,140 SF. Located near SoMa with excellent access to Highway 101, public transit, and nearby amenities. The building offers updated interiors, ADA access, and on-site security — ideal for professional and creative users.
- Listed rate may not include certain utilities, building services and property expenses
- Large reception area
- Glass conference room
- Two interior offices with glass
- Kitchen
- Large open area
- Excellent window line
PROPERTY OVERVIEW
1663 Mission pins right in the center of three vibrant areas: SoMa, Mission Dolores, and Lower Haight/Hayes Valley, with immediate access to the 101. Within walking distance, you’ll find gastropubs, beer gardens, breweries, diverse eateries, and major retailers like Target. A clean and brightly lit parking facility sits conveniently across the street from 1663 Mission, providing direct access to its multiple floors all featuring renovated common areas designed to accommodate a variety of creative-flex environments. Recent renovations include an updated lobby and elevators, enhancing the overall experience for tenants and visitors alike. The building offers a unique opportunity to lease the spaces you need now, with options for growth within each space.
- Fenced Lot
- Security System
PROPERTY FACTS
Presented by
1663 Mission St
Hmm, there seems to have been an error sending your message. Please try again.
Thanks! Your message was sent.











