Your email has been sent.
Pine Island Point- Building B 1753 Sea Pine Blvd 1,753 SF of 4-Star Office/Retail Space Available in Myrtle Beach, SC 29577



Space Availability (1)
Display Rental Rate as
- Space
- Size
- Term
- Rental Rate
- Rent Type
| Space | Size | Term | Rental Rate | Rent Type | ||
| 1st Floor, Ste 401 | 1,753 SF | Negotiable | $25.00 /SF/YR $2.08 /SF/MO $43,825 /YR $3,652 /MO | Triple Net (NNN) |
1st Floor, Ste 401
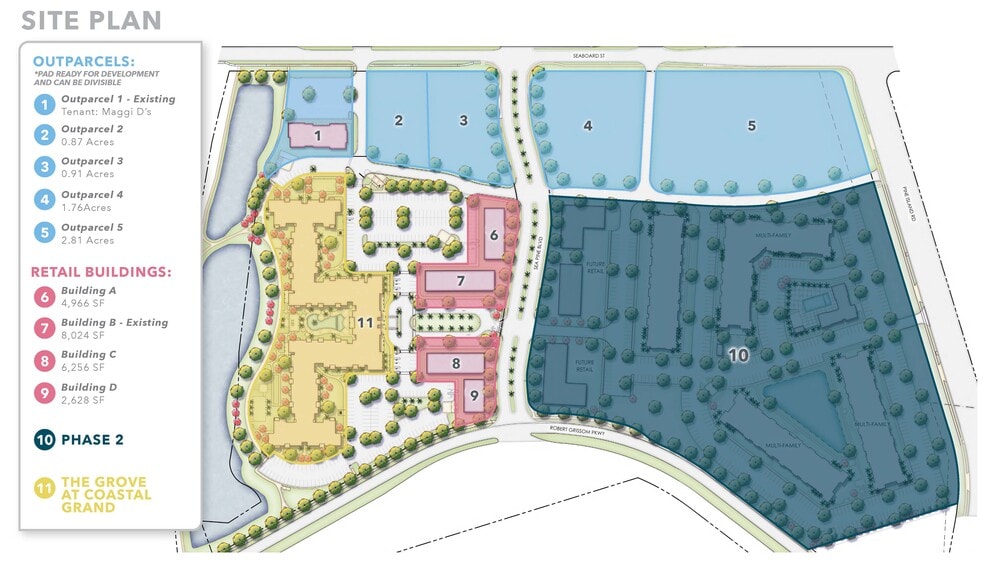
Building B has been delivered, with Unit 401 (1,753 SF) as the only vacancy and ready for tenant’s upfit. Pre-leasing opportunities are available for Buildings A, C & D. Outparcels are pad-ready and offered for ground lease, build-to-suit, or sale.
- Lease rate does not include utilities, property expenses or building services
- Fully Built-Out as Standard Retail Space
- Mostly Open Floor Plan Layout
- Fits 5 - 15 People
- Space is in Excellent Condition
- Located in-line with other retail
Rent Types
The rent amount and type that the tenant (lessee) will be responsible to pay to the landlord (lessor) throughout the lease term is negotiated prior to both parties signing a lease agreement. The rent type will vary depending upon the services provided. For example, triple net rents are typically lower than full service rents due to additional expenses the tenant is required to pay in addition to the base rent. Contact the listing broker for a full understanding of any associated costs or additional expenses for each rent type.
1. Full Service: A rental rate that includes normal building standard services as provided by the landlord within a base year rental.
2. Double Net (NN): Tenant pays for only two of the building expenses; the landlord and tenant determine the specific expenses prior to signing the lease agreement.
3. Triple Net (NNN): A lease in which the tenant is responsible for all expenses associated with their proportional share of occupancy of the building.
4. Modified Gross: Modified Gross is a general type of lease rate where typically the tenant will be responsible for their proportional share of one or more of the expenses. The landlord will pay the remaining expenses. See the below list of common Modified Gross rental rate structures: 4. Plus All Utilities: A type of Modified Gross Lease where the tenant is responsible for their proportional share of utilities in addition to the rent. 4. Plus Cleaning: A type of Modified Gross Lease where the tenant is responsible for their proportional share of cleaning in addition to the rent. 4. Plus Electric: A type of Modified Gross Lease where the tenant is responsible for their proportional share of the electrical cost in addition to the rent. 4. Plus Electric & Cleaning: A type of Modified Gross Lease where the tenant is responsible for their proportional share of the electrical and cleaning cost in addition to the rent. 4. Plus Utilities and Char: A type of Modified Gross Lease where the tenant is responsible for their proportional share of the utilities and cleaning cost in addition to the rent. 4. Industrial Gross: A type of Modified Gross lease where the tenant pays one or more of the expenses in addition to the rent. The landlord and tenant determine these prior to signing the lease agreement.
5. Tenant Electric: The landlord pays for all services and the tenant is responsible for their usage of lights and electrical outlets in the space they occupy.
6. Negotiable or Upon Request: Used when the leasing contact does not provide the rent or service type.
7. TBD: To be determined; used for buildings for which no rent or service type is known, commonly utilized when the buildings are not yet built.
Property Facts
| Total Space Available | 1,753 SF | Gross Leasable Area | 8,024 SF |
| Property Type | Retail | Year Built | 2024 |
| Property Subtype | Storefront Retail/Office |
| Total Space Available | 1,753 SF |
| Property Type | Retail |
| Property Subtype | Storefront Retail/Office |
| Gross Leasable Area | 8,024 SF |
| Year Built | 2024 |
About the Property
Strategically located at the intersection of Highway 17 & Highway 501, Pine Island Point is a premier retail development in the heart of Myrtle Beach. Situated directly behind Coastal Grand Mall, adjacent to the brand-new The Grove at Coastal Grand (a 194-unit 55+ community), and just minutes from the Myrtle Beach International Airport, this development is perfectly positioned to capture a diverse and growing customer base. Surrounded by leading retailers like Walmart, Home Depot, and Costco, it attracts both local and visiting consumers.
Nearby Major Retailers
Presented by
Pine Island Point- Building B | 1753 Sea Pine Blvd
Hmm, there seems to have been an error sending your message. Please try again.
Thanks! Your message was sent.


