Your email has been sent.
Kennesaw Office Space | ±1,460 - 8,787 SF 1925 Vaughn Rd NW 1,460 - 8,787 SF of Office Space Available in Kennesaw, GA 30144



Highlights
- ±32,725 SF office building located in Kennesaw, GA. Conveniently located near I-75 & I-575 Cobb Pkwy & Barrett Pkwy
- Suite 210 – 2,930 SF | Available immediately ; Suite 215 – 1,463 SF | Available immediately ; Suite 225 – 1,460 SF | Available immediately
- Parking ratio: 4.8/1,000 SF surface parking. Tenant has HVAC control.
- ±1,460-8,787 SF available for lease ; Suite 100 – 1,462 SF | Available immediately ; Suite 110 – 1,472 SF | Available immediately
- Up to +/-5,853 SF contiguous space available ; All suites have walk-up entrances and private restrooms.
- Elevator & two covered staircases.
All Available Spaces(5)
Display Rental Rate as
- Space
- Size
- Term
- Rental Rate
- Space Use
- Build-Out
- Available
- Fully Built-Out as Standard Office
- 1 Conference Room
- Space is in Excellent Condition
- 4 Private Offices
- Finished Ceilings: 9’
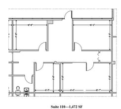
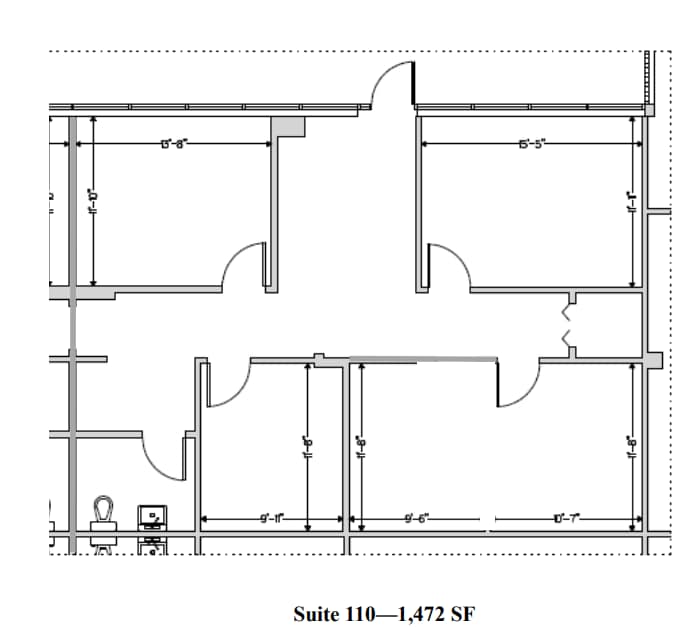
1,472 SF, private entry, available now
- Fully Built-Out as Standard Office
- 3 Private Offices
- Finished Ceilings: 9’
- Mostly Open Floor Plan Layout
- 1 Conference Room
- Space is in Excellent Condition
2,930 SF, private entry, available now
- Rate includes utilities, building services and property expenses
- Can be combined with additional space(s) for up to 4,390 SF of adjacent space
- Open Floor Plan Layout
1,463 SF, private entry, available now
- Fully Built-Out as Standard Office
- Space is in Excellent Condition
- Mostly Open Floor Plan Layout
1,460 SF, private entry, available now
- Open Floor Plan Layout
- Can be combined with additional space(s) for up to 4,390 SF of adjacent space
| Space | Size | Term | Rental Rate | Space Use | Build-Out | Available |
| 1st Floor, Ste 100 | 1,462 SF | Negotiable | Upon Request Upon Request Upon Request Upon Request | Office | Full Build-Out | Now |
| 1st Floor, Ste 110 | 1,472 SF | 1-15 Years | Upon Request Upon Request Upon Request Upon Request | Office | Full Build-Out | Now |
| 2nd Floor, Ste 210 | 2,930 SF | 1-15 Years | Upon Request Upon Request Upon Request Upon Request | Office | Spec Suite | Now |
| 2nd Floor, Ste 215 | 1,463 SF | 1-15 Years | Upon Request Upon Request Upon Request Upon Request | Office | Full Build-Out | Now |
| 2nd Floor, Ste 225 | 1,460 SF | 1-15 Years | Upon Request Upon Request Upon Request Upon Request | Office | Spec Suite | Now |
1st Floor, Ste 100
| Size |
| 1,462 SF |
| Term |
| Negotiable |
| Rental Rate |
| Upon Request Upon Request Upon Request Upon Request |
| Space Use |
| Office |
| Build-Out |
| Full Build-Out |
| Available |
| Now |
1st Floor, Ste 110
| Size |
| 1,472 SF |
| Term |
| 1-15 Years |
| Rental Rate |
| Upon Request Upon Request Upon Request Upon Request |
| Space Use |
| Office |
| Build-Out |
| Full Build-Out |
| Available |
| Now |
2nd Floor, Ste 210
| Size |
| 2,930 SF |
| Term |
| 1-15 Years |
| Rental Rate |
| Upon Request Upon Request Upon Request Upon Request |
| Space Use |
| Office |
| Build-Out |
| Spec Suite |
| Available |
| Now |
2nd Floor, Ste 215
| Size |
| 1,463 SF |
| Term |
| 1-15 Years |
| Rental Rate |
| Upon Request Upon Request Upon Request Upon Request |
| Space Use |
| Office |
| Build-Out |
| Full Build-Out |
| Available |
| Now |
2nd Floor, Ste 225
| Size |
| 1,460 SF |
| Term |
| 1-15 Years |
| Rental Rate |
| Upon Request Upon Request Upon Request Upon Request |
| Space Use |
| Office |
| Build-Out |
| Spec Suite |
| Available |
| Now |
1st Floor, Ste 100
| Size | 1,462 SF |
| Term | Negotiable |
| Rental Rate | Upon Request |
| Space Use | Office |
| Build-Out | Full Build-Out |
| Available | Now |
- Fully Built-Out as Standard Office
- 4 Private Offices
- 1 Conference Room
- Finished Ceilings: 9’
- Space is in Excellent Condition
1st Floor, Ste 110
| Size | 1,472 SF |
| Term | 1-15 Years |
| Rental Rate | Upon Request |
| Space Use | Office |
| Build-Out | Full Build-Out |
| Available | Now |
1,472 SF, private entry, available now
- Fully Built-Out as Standard Office
- Mostly Open Floor Plan Layout
- 3 Private Offices
- 1 Conference Room
- Finished Ceilings: 9’
- Space is in Excellent Condition
2nd Floor, Ste 210
| Size | 2,930 SF |
| Term | 1-15 Years |
| Rental Rate | Upon Request |
| Space Use | Office |
| Build-Out | Spec Suite |
| Available | Now |
2,930 SF, private entry, available now
- Rate includes utilities, building services and property expenses
- Open Floor Plan Layout
- Can be combined with additional space(s) for up to 4,390 SF of adjacent space
2nd Floor, Ste 215
| Size | 1,463 SF |
| Term | 1-15 Years |
| Rental Rate | Upon Request |
| Space Use | Office |
| Build-Out | Full Build-Out |
| Available | Now |
1,463 SF, private entry, available now
- Fully Built-Out as Standard Office
- Mostly Open Floor Plan Layout
- Space is in Excellent Condition
2nd Floor, Ste 225
| Size | 1,460 SF |
| Term | 1-15 Years |
| Rental Rate | Upon Request |
| Space Use | Office |
| Build-Out | Spec Suite |
| Available | Now |
1,460 SF, private entry, available now
- Open Floor Plan Layout
- Can be combined with additional space(s) for up to 4,390 SF of adjacent space
Property Overview
Positioned in the heart of Kennesaw’s thriving commercial corridor, 1925 Vaughn Road offers a rare opportunity to lease flexible office suites in a well-maintained ±32,725 SF building. This property is ideally situated near the intersection of I-75 and I-575, providing seamless connectivity to metro Atlanta and surrounding suburbs. Tenants benefit from immediate access to major thoroughfares including Cobb Parkway and Barrett Parkway, placing them minutes from Town Center at Cobb, Kennesaw Marketplace, and Kennesaw State University. Each suite features private walk-up entrances and dedicated restrooms, offering autonomy and convenience for a range of professional users. The building is supported by a generous 4.8/1,000 SF surface parking ratio and includes elevator access and two covered staircases. Tenants maintain control over their HVAC systems, enhancing comfort and operational efficiency. The surrounding area boasts a robust demographic profile with over 58,000 households and a population exceeding 152,000 within a one-mile radius. Average household income in the area is approximately $83,762, underscoring the location’s appeal for businesses seeking visibility and access to a strong consumer base. Whether you're a growing firm or an established enterprise, 1925 Vaughn Road delivers a strategic, accessible, and amenity-rich environment to support your business success.
- Wheelchair Accessible
- Air Conditioning
Property Facts
Presented by
Kennesaw Office Space | ±1,460 - 8,787 SF | 1925 Vaughn Rd NW
Hmm, there seems to have been an error sending your message. Please try again.
Thanks! Your message was sent.









