Your email has been sent.
194 E Harris Rd - 2.07 to 75.24 acres available. 4 Parcels! 75.24 Acres of Industrial Land Offered at $2,900,000 in Imperial, CA 92251



Investment Highlights
- Located in the Mesquite Lake Specific Plan Area
- Close to major transportation arteries
- Close to Spreckels Sugar
Property Facts
1 Lot Available
Lot
| Price | $2,900,000 | Lot Size | 75.24 AC |
| Price Per AC | $38,543.33 |
| Price | $2,900,000 |
| Price Per AC | $38,543.33 |
| Lot Size | 75.24 AC |
Description
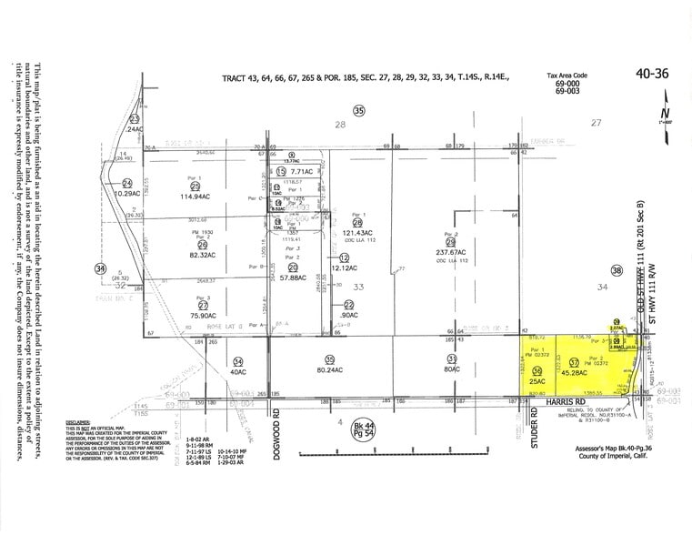
This 75.24 acre land listing is located in the Mesquite Lake Specific Plan Use area. There are four contiguous parcels that comprise this land offering. Parcel APN#040360036 consists of 25 gross acres, and is zoned Mesquite Lake Heavy Industrial (MLI3). The remaining three parcels, APN#040360037,038,039 consist of 50.24 gross acres, and are zoned Mesquite Lake Medium Industrial (MLI2). The land is strategically located next to major transportation arteries, those being Hwy 111, Hwy 86, Keystone Rd, Harris Rd. and Dogwood Rd. The Union Pacific Railroad has service approximately one mile to the west of the subject property. APN#040360036, has a CUP and a five year Sold Waste Permit, and facility renewal permit. There is a farming tenant with a four year lease on the subject property, but the owners have negotiated a buyout provision with the tenant in the event that a sale of the property can be negotiated. Directions : The property is located at the NW corner of Old Hwy 111 and Harris Rd. in rural Imperial, CA
Property Taxes
| Parcel Numbers | Improvements Assessment | $0 | |
| Land Assessment | $417,250 | Total Assessment | $417,250 |
Property Taxes
Presented by
194 E Harris Rd - 2.07 to 75.24 acres available. 4 Parcels!
Hmm, there seems to have been an error sending your message. Please try again.
Thanks! Your message was sent.

