Log In/Sign Up
Your email has been sent.
Investment Highlights
- Directly Across from Lee Memorial Hospital on Cleveland Ave
- Formerly a licensed commercial day-care
- Highly active bus route
Executive Summary
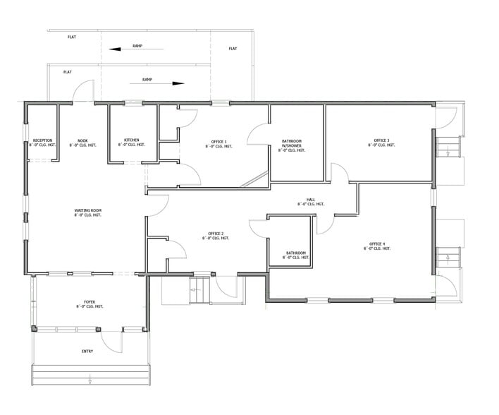
Freestanding Office or Day-care. Prior use was as a licensed child day-care for over 30 students. Prior tenant had added the additional fire-exits required as well as the fire alarm system, but has removed the fixtures. (wiring left intact) Has 5-6 enclosed rooms, plus 2 baths, one with shower. Has small kitchen.
Commercial Intensive (CI) zoning if one of the most extensive zoning districts within the City of Fort Myers. Has potential for a live/work type of use. The following are a sampling of uses from the City's Land Development Code that might be appropriate for this location. The full list is also available to download.
Permitted uses
1)Animal boarding, animal shelter, kennel, dog day care (See 118.3.3.C.2).
2)Animal grooming.
3)Animal hospital, veterinary clinic (See 118.3.3.C.2).
4)Art studio, gallery (See 118.3.3.C.3).
10)Butcher, baker, catering.
17)Day care center (adult or child), preschool.
29)Live-work.
32)Medical, dental, chiropractor, counseling, outpatient surgery centers and offices.
33)Medical or dental laboratory.
35)Offices: business, professional, financial, governmental, or operational.
39)Personal care services.
44)Repair services, non-automotive.
45)Research, testing and development laboratory.
49)Retail, wholesale or rental store (including motor vehicle or large equipment (See 118.3.3.C.10).
50)School, public or private (K—12).
53)Tattoo shop, body piercing, palmist, psychic, medium.
Commercial Intensive (CI) zoning if one of the most extensive zoning districts within the City of Fort Myers. Has potential for a live/work type of use. The following are a sampling of uses from the City's Land Development Code that might be appropriate for this location. The full list is also available to download.
Permitted uses
1)Animal boarding, animal shelter, kennel, dog day care (See 118.3.3.C.2).
2)Animal grooming.
3)Animal hospital, veterinary clinic (See 118.3.3.C.2).
4)Art studio, gallery (See 118.3.3.C.3).
10)Butcher, baker, catering.
17)Day care center (adult or child), preschool.
29)Live-work.
32)Medical, dental, chiropractor, counseling, outpatient surgery centers and offices.
33)Medical or dental laboratory.
35)Offices: business, professional, financial, governmental, or operational.
39)Personal care services.
44)Repair services, non-automotive.
45)Research, testing and development laboratory.
49)Retail, wholesale or rental store (including motor vehicle or large equipment (See 118.3.3.C.10).
50)School, public or private (K—12).
53)Tattoo shop, body piercing, palmist, psychic, medium.
Taxes & Operating Expenses (Actual - 2025) |
Annual | Annual Per SF |
|---|---|---|
| Taxes |
$5,074
|
$3.07
|
| Operating Expenses |
$4,872
|
$2.95
|
| Total Expenses |
$9,946
|
$6.01
|
Taxes & Operating Expenses (Actual - 2025)
| Taxes | |
|---|---|
| Annual | $5,074 |
| Annual Per SF | $3.07 |
| Operating Expenses | |
|---|---|
| Annual | $4,872 |
| Annual Per SF | $2.95 |
| Total Expenses | |
|---|---|
| Annual | $9,946 |
| Annual Per SF | $6.01 |
Property Facts Under Contract
Sale Type
Owner User
Property Type
Building Size
1,654 SF
Building Class
C
Year Built/Renovated
1981/2022
Price
$249,500
Price Per SF
$150.85
Tenancy
Single
Building Height
1 Story
Typical Floor Size
1,654 SF
Building FAR
0.13
Lot Size
0.30 AC
Zoning
CI - Commercial Intensive
Parking
6 Spaces (3.63 Spaces per 1,000 SF Leased)
Amenities
- Reception
- Storage Space
- Natural Light
- Air Conditioning
- Smoke Detector
Moderately walkable
60/100
Very drivable
80/100
Limited public transit
30/100
Fairly bikeable
40/100
Property Taxes
| Parcel Number | 24-44-24-P4-01402.0160 | Total Assessment | $240,424 |
| Land Assessment | $0 | Annual Taxes | $5,074 ($3.07/SF) |
| Improvements Assessment | $0 | Tax Year | 2025 |
Property Taxes
Parcel Number
24-44-24-P4-01402.0160
Land Assessment
$0
Improvements Assessment
$0
Total Assessment
$240,424
Annual Taxes
$5,074 ($3.07/SF)
Tax Year
2025
1 of 10
Videos
Matterport 3D Exterior
Matterport 3D Tour
Photos
Street View
Street
Map
Presented by
2023 Jeffcott St
Already a member? Log In
Hmm, there seems to have been an error sending your message. Please try again.
Thanks! Your message was sent.




