Your email has been sent.
2025 M Street Nw 2025 M St NW 4,721 - 63,514 SF of 4-Star Office Space Available in Washington, DC 20036



Highlights
- Signage opportunity available
- Private rooop lounge and on-site parking (1/1,200 SF)
- Proximity to over 200 restaurants and 8 high-end hotels
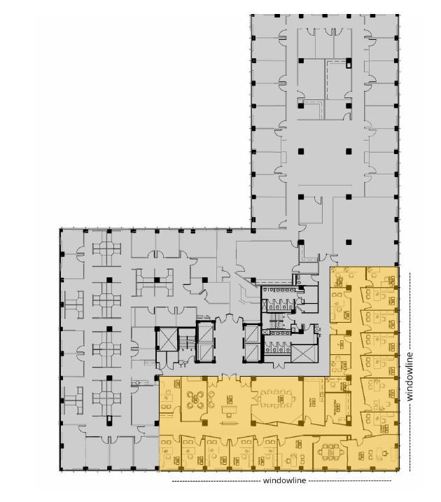
- Ecient floor plans with three sides of glass
- Direct access to transportation and major thoroughfares
- 2 blocks from Dupont Circle Metro
All Available Spaces(4)
Display Rental Rate as
- Space
- Size
- Term
- Rental Rate
- Space Use
- Build-Out
- Available
Front of the building office intensive layout with fantastic elevator exposure
- Rate includes utilities, building services and property expenses
- Mostly Open Floor Plan Layout
- Natural Light
- Partially Built-Out as Standard Office
- Can be combined with additional space(s) for up to 63,514 SF of adjacent space
Second-generation suite with direct elevator exposure.
- Rate includes utilities, building services and property expenses
- Space is in Excellent Condition
- Mostly Open Floor Plan Layout
- Can be combined with additional space(s) for up to 63,514 SF of adjacent space
Full floor availability with office intensive layout
- Rate includes utilities, building services and property expenses
- Open Floor Plan Layout
- Can be combined with additional space(s) for up to 63,514 SF of adjacent space
- Fully Built-Out as Standard Office
- Space is in Excellent Condition
Top floor available with glass on 3.5 sides. Great natural light. Existing build-out is 50% open/50% private offices. Great rooftop terrace!
- Rate includes utilities, building services and property expenses
- Mostly Open Floor Plan Layout
- Natural Light
- Partially Built-Out as Standard Office
- Can be combined with additional space(s) for up to 63,514 SF of adjacent space
| Space | Size | Term | Rental Rate | Space Use | Build-Out | Available |
| 5th Floor, Ste 500 | 7,377-8,695 SF | Negotiable | $43.00 /SF/YR $3.58 /SF/MO $373,885 /YR $31,157 /MO | Office | Partial Build-Out | Now |
| 6th Floor, Ste 610 | 4,721 SF | Negotiable | $43.00 /SF/YR $3.58 /SF/MO $203,003 /YR $16,917 /MO | Office | Spec Suite | Now |
| 7th Floor, Ste 700 | 25,049 SF | Negotiable | $45.00 /SF/YR $3.75 /SF/MO $1,127,205 /YR $93,934 /MO | Office | Full Build-Out | Now |
| 8th Floor, Ste 800 | 25,049 SF | Negotiable | $45.00 /SF/YR $3.75 /SF/MO $1,127,205 /YR $93,934 /MO | Office | Partial Build-Out | Now |
5th Floor, Ste 500
| Size |
| 7,377-8,695 SF |
| Term |
| Negotiable |
| Rental Rate |
| $43.00 /SF/YR $3.58 /SF/MO $373,885 /YR $31,157 /MO |
| Space Use |
| Office |
| Build-Out |
| Partial Build-Out |
| Available |
| Now |
6th Floor, Ste 610
| Size |
| 4,721 SF |
| Term |
| Negotiable |
| Rental Rate |
| $43.00 /SF/YR $3.58 /SF/MO $203,003 /YR $16,917 /MO |
| Space Use |
| Office |
| Build-Out |
| Spec Suite |
| Available |
| Now |
7th Floor, Ste 700
| Size |
| 25,049 SF |
| Term |
| Negotiable |
| Rental Rate |
| $45.00 /SF/YR $3.75 /SF/MO $1,127,205 /YR $93,934 /MO |
| Space Use |
| Office |
| Build-Out |
| Full Build-Out |
| Available |
| Now |
8th Floor, Ste 800
| Size |
| 25,049 SF |
| Term |
| Negotiable |
| Rental Rate |
| $45.00 /SF/YR $3.75 /SF/MO $1,127,205 /YR $93,934 /MO |
| Space Use |
| Office |
| Build-Out |
| Partial Build-Out |
| Available |
| Now |
5th Floor, Ste 500
| Size | 7,377-8,695 SF |
| Term | Negotiable |
| Rental Rate | $43.00 /SF/YR |
| Space Use | Office |
| Build-Out | Partial Build-Out |
| Available | Now |
Front of the building office intensive layout with fantastic elevator exposure
- Rate includes utilities, building services and property expenses
- Partially Built-Out as Standard Office
- Mostly Open Floor Plan Layout
- Can be combined with additional space(s) for up to 63,514 SF of adjacent space
- Natural Light
6th Floor, Ste 610
| Size | 4,721 SF |
| Term | Negotiable |
| Rental Rate | $43.00 /SF/YR |
| Space Use | Office |
| Build-Out | Spec Suite |
| Available | Now |
Second-generation suite with direct elevator exposure.
- Rate includes utilities, building services and property expenses
- Mostly Open Floor Plan Layout
- Space is in Excellent Condition
- Can be combined with additional space(s) for up to 63,514 SF of adjacent space
7th Floor, Ste 700
| Size | 25,049 SF |
| Term | Negotiable |
| Rental Rate | $45.00 /SF/YR |
| Space Use | Office |
| Build-Out | Full Build-Out |
| Available | Now |
Full floor availability with office intensive layout
- Rate includes utilities, building services and property expenses
- Fully Built-Out as Standard Office
- Open Floor Plan Layout
- Space is in Excellent Condition
- Can be combined with additional space(s) for up to 63,514 SF of adjacent space
8th Floor, Ste 800
| Size | 25,049 SF |
| Term | Negotiable |
| Rental Rate | $45.00 /SF/YR |
| Space Use | Office |
| Build-Out | Partial Build-Out |
| Available | Now |
Top floor available with glass on 3.5 sides. Great natural light. Existing build-out is 50% open/50% private offices. Great rooftop terrace!
- Rate includes utilities, building services and property expenses
- Partially Built-Out as Standard Office
- Mostly Open Floor Plan Layout
- Can be combined with additional space(s) for up to 63,514 SF of adjacent space
- Natural Light
Property Overview
2025 M Street is now ADA compliant and includes sprinklers.Tenants at 2025 M Street enjoy a downtown address that offers proximity to the West End, Georgetown and Dupont Circle. The building is three blocks from Metro, and provides an ample parking garage for the ease and convenience of employees. Numerous restaurants, hotels and stores are within easy walking distance, as are useful services such as banks, child care facilities and health clubs.* Short walk to both Dupont Circle and Foggy Bottom Metro stations* Lobby attendant* Rooftop terrace* Excellent window ratio* 1 per 500 sf windowed office* On-site engineering staffProperty is located in the Golden Triangle BID
- 24 Hour Access
- Courtyard
- Natural Light
- Air Conditioning










