Your email has been sent.
Highlights
- Located 1 mile from I-90
- Located directly on Rt. 9
- Located 3.5 miles from I-495
Space Availability (2)
Display Rental Rate as
- Space
- Size
- Term
- Rental Rate
- Rent Type
| Space | Size | Term | Rental Rate | Rent Type | ||
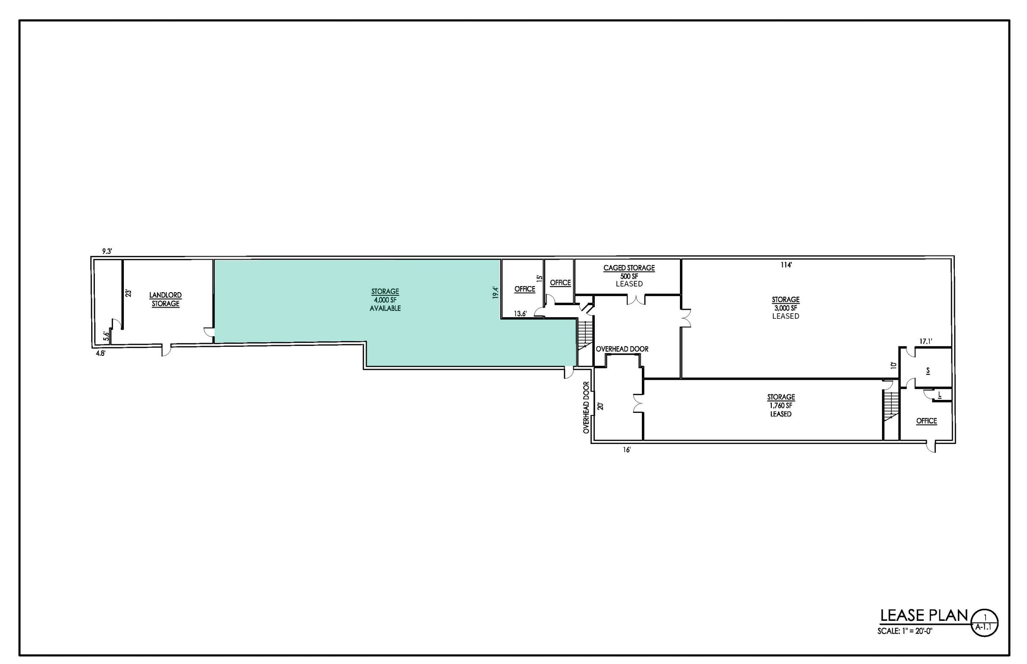
| 1st Floor | 4,000 SF | Negotiable | $12.00 /SF/YR $1.00 /SF/MO $48,000 /YR $4,000 /MO | Plus All Utilities | ||
| 1st Floor | 800-4,000 SF | Negotiable | Upon Request Upon Request Upon Request Upon Request | TBD |
21-23 Turnpike Rd - 1st Floor
4,000 SF storage space
- Listed lease rate plus proportional share of utilities
- Central Air Conditioning
- Ample parking on site
21-23 Turnpike Rd - 1st Floor
- Fully Built-Out as Standard Retail Space
- Located in-line with other retail
Rent Types
The rent amount and type that the tenant (lessee) will be responsible to pay to the landlord (lessor) throughout the lease term is negotiated prior to both parties signing a lease agreement. The rent type will vary depending upon the services provided. For example, triple net rents are typically lower than full service rents due to additional expenses the tenant is required to pay in addition to the base rent. Contact the listing broker for a full understanding of any associated costs or additional expenses for each rent type.
1. Full Service: A rental rate that includes normal building standard services as provided by the landlord within a base year rental.
2. Double Net (NN): Tenant pays for only two of the building expenses; the landlord and tenant determine the specific expenses prior to signing the lease agreement.
3. Triple Net (NNN): A lease in which the tenant is responsible for all expenses associated with their proportional share of occupancy of the building.
4. Modified Gross: Modified Gross is a general type of lease rate where typically the tenant will be responsible for their proportional share of one or more of the expenses. The landlord will pay the remaining expenses. See the below list of common Modified Gross rental rate structures: 4. Plus All Utilities: A type of Modified Gross Lease where the tenant is responsible for their proportional share of utilities in addition to the rent. 4. Plus Cleaning: A type of Modified Gross Lease where the tenant is responsible for their proportional share of cleaning in addition to the rent. 4. Plus Electric: A type of Modified Gross Lease where the tenant is responsible for their proportional share of the electrical cost in addition to the rent. 4. Plus Electric & Cleaning: A type of Modified Gross Lease where the tenant is responsible for their proportional share of the electrical and cleaning cost in addition to the rent. 4. Plus Utilities and Char: A type of Modified Gross Lease where the tenant is responsible for their proportional share of the utilities and cleaning cost in addition to the rent. 4. Industrial Gross: A type of Modified Gross lease where the tenant pays one or more of the expenses in addition to the rent. The landlord and tenant determine these prior to signing the lease agreement.
5. Tenant Electric: The landlord pays for all services and the tenant is responsible for their usage of lights and electrical outlets in the space they occupy.
6. Negotiable or Upon Request: Used when the leasing contact does not provide the rent or service type.
7. TBD: To be determined; used for buildings for which no rent or service type is known, commonly utilized when the buildings are not yet built.
Property Facts
| Total Space Available | 8,000 SF | Center Properties | 1 |
| Min. Divisible | 800 SF | Gross Leasable Area | 18,942 SF |
| Center Type | Strip Center | Total Land Area | 3.50 AC |
| Parking | 81 Spaces | Year Built | 1987 |
| Stores | 1 |
| Total Space Available | 8,000 SF |
| Min. Divisible | 800 SF |
| Center Type | Strip Center |
| Parking | 81 Spaces |
| Stores | 1 |
| Center Properties | 1 |
| Gross Leasable Area | 18,942 SF |
| Total Land Area | 3.50 AC |
| Year Built | 1987 |
About the Property
Kelleher & Sadowsky is pleased to present 21 Turnpike Road in Southborough as available for lease. This property is extremely well located along Route 9, with outstanding visibility. The property is located 1 mile away from I-90 and only 3.5 miles from I-495. The available retail spaces are between 800 SF - 4,000 SF. The building also offers 4,000 SF of warehouse space which can be accessed directly from some of the first-floor retail spaces in the building. Signage opportunities are available on the building as well as the pylon sign located directly along Route 9. Call us today to schedule a tour.
Presented by
Brickyard Square | 21-23 Turnpike Rd
Hmm, there seems to have been an error sending your message. Please try again.
Thanks! Your message was sent.





