Log In/Sign Up
Your email has been sent.
210 Brewer St East Hartford, CT 210 Brewer St 8,000 SF Industrial Building East Hartford, CT 06118 $455,000 ($56.88/SF)



Investment Highlights
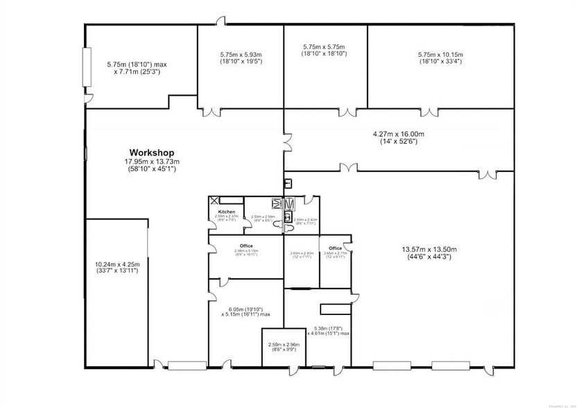
- 2 Buildings 8000 SQ FT Metal building and a 1500 SQFT residential home
- Overhead doors, off street parking, spray booth
- I 2 zone several possibilities
Executive Summary
This is a Unique property and a great investment! 2 buildings are included in the sale. an 8000 SQ FT metal industrial building with room for 3 tenants one being occupied by owner at present. At present there is one tenant in the building a sign company that pays $1300 a month on a month to month. The warehouse has overdoors, high ceilings, and spray booth! The 2nd building is a 1500 SQ FT single detached residential home. The rental fee is $1200 a month also on a month to month. Plenty of off street Parking Great Location minutes to all major highways. Why pay Rent? Own piece of the American Dream!! Bring your business here and also collect the rents. Buildings are being sold in As Is Condition. Several possibilities, auto repair, distribution center, Antiqued Dealer, Paint Store and more See it Today!
Property Facts
1 1
1 of 9
Videos
Matterport 3D Exterior
Matterport 3D Tour
Photos
Street View
Street
Map
1 of 1
Presented by
210 Brewer St East Hartford, CT | 210 Brewer St
Already a member? Log In
Hmm, there seems to have been an error sending your message. Please try again.
Thanks! Your message was sent.
Your message has been sent!
Activate your LoopNet account now to track properties, get real-time alerts, save time on future inquiries, and more.
