Your email has been sent.
Francis K. Shattuck Bldg 2100 Shattuck Ave 4,578 - 21,134 SF of Space Available in Berkeley, CA 94704



Highlights
- Historic site, one block from the University of California Berkeley campus.
- Public Transportation - BART, AC Transit.
Display Rental Rate as
- Space
- Size
- Term
- Rental Rate
- Space Use
- Build-Out
- Available
New finishes throughout. Operable windows, open floor plan.
- Fully Built-Out as Standard Office
- Fits 13 - 41 People
- 2 Conference Rooms
- Finished Ceilings: 9’
- Surrounded by Downtown Restaurants and Amenities
- Mostly Open Floor Plan Layout
- 5 Private Offices
- 10 Workstations
- Private Restrooms
New finishes throughout. Operable windows, open floor plan.
- Rate includes utilities, building services and property expenses
- Fits 12 - 37 People
- Finished Ceilings: 12’ - 18’
- Central Air Conditioning
- Corner Space
- Natural Light
- Open-Plan
- Fully Built-Out as Research and Development Space
- 5 Conference Rooms
- Space is in Excellent Condition
- Elevator Access
- High Ceilings
- Basement
New finishes throughout. Operable windows, open floor plan.
- Rate includes utilities, building services and property expenses
- Mostly Open Floor Plan Layout
- 4 Private Offices
- 10 Workstations
- Space is in Excellent Condition
- Surrounded by Downtown Restaurants and Amenities
- Fully Built-Out as Standard Office
- Fits 13 - 39 People
- 5 Conference Rooms
- Finished Ceilings: 18’
- Private Restrooms
| Space | Size | Term | Rental Rate | Space Use | Build-Out | Available |
| 3rd Floor, Ste 301 | 5,098 SF | Negotiable | Upon Request Upon Request Upon Request Upon Request | Office | Full Build-Out | Now |
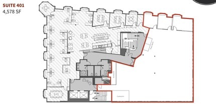
| 4th Floor, Ste 401 | 4,578 SF | 3 Years | Upon Request Upon Request Upon Request Upon Request | Office | Full Build-Out | Now |
| 4th Floor, Ste 402 | 4,824 SF | 2-5 Years | $48.00 /SF/YR $4.00 /SF/MO $231,552 /YR $19,296 /MO | Office | Full Build-Out | Now |
3rd Floor, Ste 301
| Size |
| 5,098 SF |
| Term |
| Negotiable |
| Rental Rate |
| Upon Request Upon Request Upon Request Upon Request |
| Space Use |
| Office |
| Build-Out |
| Full Build-Out |
| Available |
| Now |
4th Floor, Ste 401
| Size |
| 4,578 SF |
| Term |
| 3 Years |
| Rental Rate |
| Upon Request Upon Request Upon Request Upon Request |
| Space Use |
| Office |
| Build-Out |
| Full Build-Out |
| Available |
| Now |
4th Floor, Ste 402
| Size |
| 4,824 SF |
| Term |
| 2-5 Years |
| Rental Rate |
| $48.00 /SF/YR $4.00 /SF/MO $231,552 /YR $19,296 /MO |
| Space Use |
| Office |
| Build-Out |
| Full Build-Out |
| Available |
| Now |
- Space
- Size
- Term
- Rental Rate
- Space Use
- Build-Out
- Available
Lower Level: ±6,634 SF - former GYM with sprinklers & HVAC.
- Rate includes utilities, building services and property expenses
- After Hours HVAC Available
- Central Air and Heating
- Exposed Ceiling
New finishes throughout. Operable windows, open floor plan.
- Fully Built-Out as Standard Office
- Fits 13 - 41 People
- 2 Conference Rooms
- Finished Ceilings: 9’
- Surrounded by Downtown Restaurants and Amenities
- Mostly Open Floor Plan Layout
- 5 Private Offices
- 10 Workstations
- Private Restrooms
New finishes throughout. Operable windows, open floor plan.
- Rate includes utilities, building services and property expenses
- Fits 12 - 37 People
- Finished Ceilings: 12’ - 18’
- Central Air Conditioning
- Corner Space
- Natural Light
- Open-Plan
- Fully Built-Out as Research and Development Space
- 5 Conference Rooms
- Space is in Excellent Condition
- Elevator Access
- High Ceilings
- Basement
New finishes throughout. Operable windows, open floor plan.
- Rate includes utilities, building services and property expenses
- Mostly Open Floor Plan Layout
- 4 Private Offices
- 10 Workstations
- Space is in Excellent Condition
- Surrounded by Downtown Restaurants and Amenities
- Fully Built-Out as Standard Office
- Fits 13 - 39 People
- 5 Conference Rooms
- Finished Ceilings: 18’
- Private Restrooms
| Space | Size | Term | Rental Rate | Space Use | Build-Out | Available |
| 1st Floor - Lower Level | 6,634 SF | Negotiable | $15.00 /SF/YR $1.25 /SF/MO $99,510 /YR $8,293 /MO | Flex | Partial Build-Out | Now |
| 3rd Floor, Ste 301 | 5,098 SF | Negotiable | Upon Request Upon Request Upon Request Upon Request | Office | Full Build-Out | Now |
| 4th Floor, Ste 401 | 4,578 SF | 3 Years | Upon Request Upon Request Upon Request Upon Request | Office | Full Build-Out | Now |
| 4th Floor, Ste 402 | 4,824 SF | 2-5 Years | $48.00 /SF/YR $4.00 /SF/MO $231,552 /YR $19,296 /MO | Office | Full Build-Out | Now |
1st Floor - Lower Level
| Size |
| 6,634 SF |
| Term |
| Negotiable |
| Rental Rate |
| $15.00 /SF/YR $1.25 /SF/MO $99,510 /YR $8,293 /MO |
| Space Use |
| Flex |
| Build-Out |
| Partial Build-Out |
| Available |
| Now |
3rd Floor, Ste 301
| Size |
| 5,098 SF |
| Term |
| Negotiable |
| Rental Rate |
| Upon Request Upon Request Upon Request Upon Request |
| Space Use |
| Office |
| Build-Out |
| Full Build-Out |
| Available |
| Now |
4th Floor, Ste 401
| Size |
| 4,578 SF |
| Term |
| 3 Years |
| Rental Rate |
| Upon Request Upon Request Upon Request Upon Request |
| Space Use |
| Office |
| Build-Out |
| Full Build-Out |
| Available |
| Now |
4th Floor, Ste 402
| Size |
| 4,824 SF |
| Term |
| 2-5 Years |
| Rental Rate |
| $48.00 /SF/YR $4.00 /SF/MO $231,552 /YR $19,296 /MO |
| Space Use |
| Office |
| Build-Out |
| Full Build-Out |
| Available |
| Now |
1st Floor - Lower Level
| Size | 6,634 SF |
| Term | Negotiable |
| Rental Rate | $15.00 /SF/YR |
| Space Use | Flex |
| Build-Out | Partial Build-Out |
| Available | Now |
Lower Level: ±6,634 SF - former GYM with sprinklers & HVAC.
- Rate includes utilities, building services and property expenses
- Central Air and Heating
- After Hours HVAC Available
- Exposed Ceiling
3rd Floor, Ste 301
| Size | 5,098 SF |
| Term | Negotiable |
| Rental Rate | Upon Request |
| Space Use | Office |
| Build-Out | Full Build-Out |
| Available | Now |
New finishes throughout. Operable windows, open floor plan.
- Fully Built-Out as Standard Office
- Mostly Open Floor Plan Layout
- Fits 13 - 41 People
- 5 Private Offices
- 2 Conference Rooms
- 10 Workstations
- Finished Ceilings: 9’
- Private Restrooms
- Surrounded by Downtown Restaurants and Amenities
4th Floor, Ste 401
| Size | 4,578 SF |
| Term | 3 Years |
| Rental Rate | Upon Request |
| Space Use | Office |
| Build-Out | Full Build-Out |
| Available | Now |
New finishes throughout. Operable windows, open floor plan.
- Rate includes utilities, building services and property expenses
- Fully Built-Out as Research and Development Space
- Fits 12 - 37 People
- 5 Conference Rooms
- Finished Ceilings: 12’ - 18’
- Space is in Excellent Condition
- Central Air Conditioning
- Elevator Access
- Corner Space
- High Ceilings
- Natural Light
- Basement
- Open-Plan
4th Floor, Ste 402
| Size | 4,824 SF |
| Term | 2-5 Years |
| Rental Rate | $48.00 /SF/YR |
| Space Use | Office |
| Build-Out | Full Build-Out |
| Available | Now |
New finishes throughout. Operable windows, open floor plan.
- Rate includes utilities, building services and property expenses
- Fully Built-Out as Standard Office
- Mostly Open Floor Plan Layout
- Fits 13 - 39 People
- 4 Private Offices
- 5 Conference Rooms
- 10 Workstations
- Finished Ceilings: 18’
- Space is in Excellent Condition
- Private Restrooms
- Surrounded by Downtown Restaurants and Amenities
Property Overview
Building renovation completed in April 1999. Historic renovation with full ADA. BART at the front door, spacious lobby, operable windows, A/C, across from the Berkeley Repertory Theater. One block to the U.C. Berkeley campus, seismic retrofits. Aka 2080 Addison St. HVAC Status: Full HVAC throughout. Formally referred to as 2080 Addison the property has two entrances, one on Shattuck and the other on Addison.
- 24 Hour Access
- Controlled Access
- Metro/Subway
- Security System
- Skylights
- Air Conditioning
Property Facts
Presented by
Francis K. Shattuck Bldg | 2100 Shattuck Ave
Hmm, there seems to have been an error sending your message. Please try again.
Thanks! Your message was sent.









