Log In/Sign Up
Your email has been sent.
Investment Highlights
- 5 existing units with existing in-place income
- Eight drive-in door & three loading docks
- Highly visible and accessible
- Various ceiling heights (range from 10' to 41'10")
- Zoned Limited Industrial (LI)
- Close proximity to Street Rd, York Rd, Easton Rd, and PA Turnpike
Executive Summary
SVN is pleased to offer an exceptional opportunity to acquire a versatile industrial property on County Line Road in Hatboro, Montgomery County, Pennsylvania. The property consists of approximately 31,403± SF of free-standing, single-story building, currently configured as five units. This property is well-suited for an owner-user with additional in-place rental income, or as a value-add/redevelopment investment opportunity. Strategically located in a vibrant commercial corridor surrounded by dense residential communities, the site benefits from excellent visibility and convenient access. The property is situated in a high-growth area with numerous nearby amenities and quick regional connectivity to major commuter routes. Zoned Limited Industrial (LI), the property can accommodate a wide range of permitted uses by right.The property is conveniently located in Hatboro, PA, near the intersection of County Line Road and Jacksonville Road. The site offers easy access to major routes including PA-132 (Street Rd) - 1.5 Mi., PA-263 (York Rd) - 1.6 Mi., PA-611 (Easton Rd) - 3 Mi., and I-276 (PA Turnpike-Willow Grove Interchange) - 3.2 Mi., and is just 26 miles from downtown Philadelphia. The Warminster SEPTA Station is only about one mile away.
Property Facts
Amenities
- Front Loading
Utilities
- Lighting - Fluorescent
- Water - County
- Sewer - County
- Heating - Oil (Fired)
Space Availability
- Space
- Size
- Space Use
- Build-Out
- Available
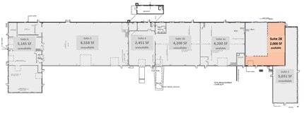
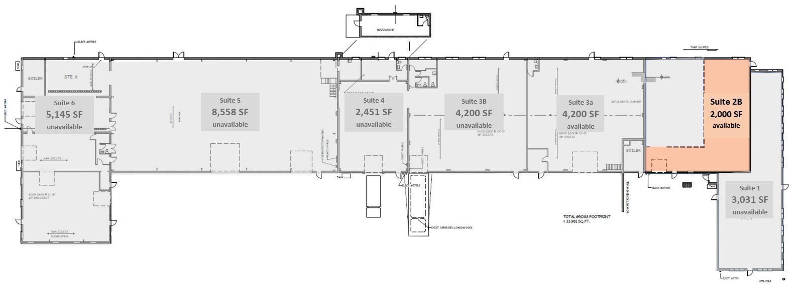
| Space | Size | Space Use | Build-Out | Available |
| 1st Fl - 2B | 2,000 SF | Industrial | Full Build-Out | 30 Days |
1st Fl - 2B
| Size |
| 2,000 SF |
| Space Use |
| Industrial |
| Build-Out |
| Full Build-Out |
| Available |
| 30 Days |
1 of 3
Videos
Matterport 3D Exterior
Matterport 3D Tour
Photos
Street View
Street
Map
1st Fl - 2B
| Size | 2,000 SF |
| Space Use | Industrial |
| Build-Out | Full Build-Out |
| Available | 30 Days |
Moderately walkable
60/100
Very drivable
80/100
Some public transit
40/100
Fairly bikeable
50/100
Property Taxes
| Parcel Number | 08-00-00964-009 | Improvements Assessment | $0 |
| Land Assessment | $0 | Total Assessment | $583,880 |
Property Taxes
Parcel Number
08-00-00964-009
Land Assessment
$0
Improvements Assessment
$0
Total Assessment
$583,880
1 of 15
Videos
Matterport 3D Exterior
Matterport 3D Tour
Photos
Street View
Street
Map
Presented by
244 E County Line Rd
Already a member? Log In
Hmm, there seems to have been an error sending your message. Please try again.
Thanks! Your message was sent.







