Log In/Sign Up
Your email has been sent.
2532 Abels Ln 7,710 SF Industrial Building Las Vegas, NV 89115 $1,796,000 ($232.94/SF)



Investment Highlights
- +/- 2,125 SF of existing office
- 400 Amp, 277/480V, 3-phase main switchgear (buyer to verify)
- Stubbed for fire sprinklers (buyer to verify)
- +/- 6,250 SF of paved, gated yard space
- Two (2) 10' x 12' (front & rear) grade level loading doors
- Evaporative cooling & oversized skylights in warehouse
Executive Summary
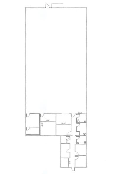
Office/Warehouse With Large, Paved Fenced Yard. Constructed of split-faced block and situated on +/- 0.50 acres, 2532 Abels Lane is a +/-7,710 total SF office/warehouse with +/- 2,125 SF of existing office space. The current office configuration includes a reception area, four (4) private offices, two (2) conference rooms, one (1) kitchenette area, one (1) file room, one (1) storage room, and two (2) restrooms. The current office space could be reduced to +/- 1,000 SF. Other amenities include a 400 Amp, 277/480V, 3-phase main switchgear to the building (buyer to verify) with 120/208V, 3-phase power panels, two (2) 10' x 12' (front & rear) grade level loading doors (the current office configuration has one (1) 10' x 12' rear grade level loading door), 16' average clear height, building stubbed for fire sprinklers (buyer to verify), oversized skylights, evaporative cooling in the warehouse, warehouse insulation, I-L zoning, and +/- 6,250 SF of paved, gated yard space.
Property Facts In Escrow
Amenities
- 24 Hour Access
- Cooler
- Fenced Lot
- Security System
- Skylights
- Air Conditioning
Utilities
- Lighting - Fluorescent
- Gas
- Water - City
- Sewer - County
- Heating
1 1
Somewhat walkable
30/100
Very drivable
80/100
Limited public transit
20/100
Fairly bikeable
40/100
Property Taxes
| Parcel Number | 140-17-410-008 | Improvements Assessment | $148,600 |
| Land Assessment | $106,722 | Total Assessment | $255,322 |
Property Taxes
Parcel Number
140-17-410-008
Land Assessment
$106,722
Improvements Assessment
$148,600
Total Assessment
$255,322
1 of 20
Videos
Matterport 3D Exterior
Matterport 3D Tour
Photos
Street View
Street
Map
1 of 1
Presented by
General Realty Group - Commercial Division
2532 Abels Ln
Already a member? Log In
Hmm, there seems to have been an error sending your message. Please try again.
Thanks! Your message was sent.
