Your email has been sent.
INVESTMENT HIGHLIGHTS
- Princeton ranks within the top 5 fastest growing cities in the nation as of 2024.
- Population growth between 80,000 and 65,000 within next 10 years.
- The average household income in Princeton is $105,589 - worldpopulationreview.com
- 36,000+ Vehicles daily along 380
EXECUTIVE SUMMARY
2024 built warehouse flex space with 4 ground level 9' automatic roll up doors, fully heated & aired, insulated with bathroom and area for additional office to built out.
PROPERTY FACTS
| Price | $1,100,000 | Lot Size | 0.80 AC |
| Price Per SF | $255.52 | Rentable Building Area | 4,305 SF |
| Sale Type | Investment or Owner User | No. Stories | 1 |
| Property Type | Flex | Year Built | 2022 |
| Building Class | B | Parking Ratio | 2.79/1,000 SF |
| Zoning | F3 - Office Commercial Building | ||
| Price | $1,100,000 |
| Price Per SF | $255.52 |
| Sale Type | Investment or Owner User |
| Property Type | Flex |
| Building Class | B |
| Lot Size | 0.80 AC |
| Rentable Building Area | 4,305 SF |
| No. Stories | 1 |
| Year Built | 2022 |
| Parking Ratio | 2.79/1,000 SF |
| Zoning | F3 - Office Commercial Building |
SPACE AVAILABILITY
- SPACE
- SIZE
- SPACE USE
- CONDITION
- AVAILABLE
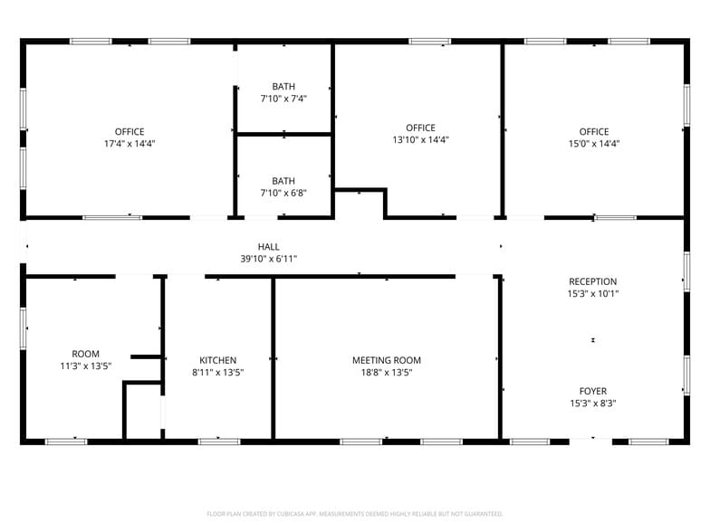
Excellent office space offering 4 private offices, large reception, conference room, break room & 2 restrooms. Perfect set up for Lawyer, CPA, Insurance, Title Company, Chiropractor, Physical Therapist or other medical use not requiring water in each room. Warehouse could be available at additional cost. 2,200sf heat/air with bathroom. No mechanical, retail, manufacturing allowed.
| Space | Size | Space Use | Condition | Available |
| 1st Floor | 1,995 SF | Office/Medical | Full Build-Out | Jan 2026 |
1st Floor
| Size |
| 1,995 SF |
| Space Use |
| Office/Medical |
| Condition |
| Full Build-Out |
| Available |
| Jan 2026 |
1st Floor
| Size | 1,995 SF |
| Space Use | Office/Medical |
| Condition | Full Build-Out |
| Available | Jan 2026 |
Excellent office space offering 4 private offices, large reception, conference room, break room & 2 restrooms. Perfect set up for Lawyer, CPA, Insurance, Title Company, Chiropractor, Physical Therapist or other medical use not requiring water in each room. Warehouse could be available at additional cost. 2,200sf heat/air with bathroom. No mechanical, retail, manufacturing allowed.
PROPERTY TAXES
| Parcel Number | R-9620-00A-003R-1 | Improvements Assessment | $332,601 |
| Land Assessment | $356,299 | Total Assessment | $688,900 |
PROPERTY TAXES
Presented by
255 W Princeton Dr
Hmm, there seems to have been an error sending your message. Please try again.
Thanks! Your message was sent.






