Your email has been sent.
Highlights
- Prime Accessibility & Visibility
- Superior Parking Options
- Comprehensive Amenities
- Flexible Professional Spaces
- Excellent Local Proximity
All Available Spaces(12)
Display Rental Rate as
- Space
- Size
- Term
- Rental Rate
- Space Use
- Build-Out
- Available
This versatile office suite is available for immediate occupancy or can be customized to suit your business needs. Highlights include an oversized exterior office with a wall of windows providing exceptional natural light, two additional exterior offices with glass interior windows, and two private interior offices. A large open floor plan allows for flexibility, complemented by a welcoming reception area. Located directly off the elevators and featuring a kitchenette with sink, this space is designed for both efficiency and comfort.
- Lease rate does not include utilities, property expenses or building services
- Conference Rooms
- Reception Area
- Corner Space
- Natural Light
- Basement
- Wheelchair Accessible
- Fully Built-Out as Standard Office
- Central Air Conditioning
- Elevator Access
- Drop Ceilings
- Atrium
- Open-Plan
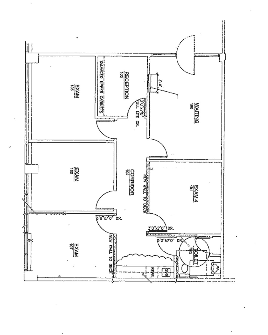
Newly available, fully built-out office or medical suite designed for efficiency and impact. The space features a welcoming reception area highlighted by a striking rock wall accent, multiple offices each equipped with a sink, a private office, and a convenient ensuite restroom. Located just off the entryway for easy access, the suite also includes a breakroom with sink, abundant built-in storage, and a thoughtful layout ideal for medical, wellness, or professional office use.
- Lease rate does not include utilities, property expenses or building services
Discover this newly built 1,531 SF office suite designed for productivity and comfort. The space features four private offices, a spacious reception area, and the flexibility to add a private exterior entrance/exit—ideal for businesses seeking both convenience and a professional presence. Tenants will enjoy abundant natural light throughout the suite and ample on-site parking for staff and visitors. The property also includes access to a large shared break room equipped with a TV, refrigerator, and game area—perfect for team collaboration and relaxation.
- Lease rate does not include utilities, property expenses or building services
- 4 Private Offices
This spacious office features two walls of windows facing northeast, filling the open layout with abundant natural light. The large, flexible floor plan supports collaborative work environments and includes access to a shared conference room for meetings and presentations. A shared kitchenette provides added convenience for staff and guests. The suite is ready for immediate occupancy.
- Lease rate does not include utilities, property expenses or building services
- Open Floor Plan Layout
This professional office space offers two large suites—one 490 square feet and the other 880 square feet—connected by a convenient central kitchenette area. The layout is highly versatile, making it ideal for private offices, conference rooms, collaborative workspaces, or a welcoming reception area. The space is filled with natural light thanks to two full walls of windows, creating a bright and productive work environment. Tenants also enjoy access to a large shared conference room and an expansive shared break room complete with a TV and games, providing excellent amenities for team meetings and employee relaxation. Perfect for growing businesses seeking a flexible and inviting office setting.
- Lease rate does not include utilities, property expenses or building services
- Mostly Open Floor Plan Layout
- Lease rate does not include utilities, property expenses or building services
- Lease rate does not include utilities, property expenses or building services
- Lease rate does not include utilities, property expenses or building services
- Mostly Open Floor Plan Layout
- Lease rate does not include utilities, property expenses or building services
Efficient and professional 216 RSF office suite available in a well-maintained building featuring abundant natural light throughout the lobby and atrium areas, creating a welcoming environment for clients and staff. Tenants enjoy access to a large conference room ideal for hosting larger meetings, presentations, or client consultations. The property offers ample on-site parking for tenants and visitors, ensuring convenience and accessibility. Additional highlights include prime building signage opportunities for enhanced visibility and professional on-site management providing responsive service and support.
- Lease rate does not include utilities, property expenses or building services
- Open Floor Plan Layout
- Fully Built-Out as Standard Office
- Space is in Excellent Condition
This well-maintained 488 sq ft office suite offers a quiet, professional environment with abundant natural light. The space includes two private offices and a large reception area, making it ideal for small businesses or professional services that need both client-facing and focused work areas. Tenants have access to an onsite conference room and common meeting space, along with ample parking for staff and visitors. The property is professionally managed onsite, ensuring a clean, secure, and well-run workplace.
- Lease rate does not include utilities, property expenses or building services
- 2 Private Offices
- Fully Built-Out as Professional Services Office
- Space is in Excellent Condition
Flexible build-to-suit options to meet tenant requirements
- Lease rate does not include utilities, property expenses or building services
- Conference Rooms
- Atrium
- Fully Built-Out as Standard Office
- Central Air Conditioning
- Basement
| Space | Size | Term | Rental Rate | Space Use | Build-Out | Available |
| 2nd Floor, Ste 111 | 3,689 SF | Negotiable | $12.00 /SF/YR $1.00 /SF/MO $44,268 /YR $3,689 /MO | Office | Full Build-Out | Now |
| 2nd Floor, Ste 120 | 1,482 SF | Negotiable | $12.00 /SF/YR $1.00 /SF/MO $17,784 /YR $1,482 /MO | Office/Medical | Full Build-Out | Now |
| 2nd Floor, Ste 132 | 1,531 SF | Negotiable | $12.00 /SF/YR $1.00 /SF/MO $18,372 /YR $1,531 /MO | Office | Partial Build-Out | Now |
| 2nd Floor, Ste 133 | 880 SF | Negotiable | $12.00 /SF/YR $1.00 /SF/MO $10,560 /YR $880.00 /MO | Office/Medical | - | Now |
| 2nd Floor, Ste 133 & 136 | 1,588 SF | Negotiable | $12.00 /SF/YR $1.00 /SF/MO $19,056 /YR $1,588 /MO | Office/Medical | Partial Build-Out | Now |
| 2nd Floor, Ste 134 | 812 SF | Negotiable | $12.00 /SF/YR $1.00 /SF/MO $9,744 /YR $812.00 /MO | Office | Shell Space | Now |
| 2nd Floor, Ste 135 | 812 SF | Negotiable | $12.00 /SF/YR $1.00 /SF/MO $9,744 /YR $812.00 /MO | Office | Shell Space | Now |
| 2nd Floor, Ste 136 | 490 SF | Negotiable | $12.00 /SF/YR $1.00 /SF/MO $5,880 /YR $490.00 /MO | Office | - | Now |
| 2nd Floor, Ste 137 | 1,467 SF | Negotiable | $12.00 /SF/YR $1.00 /SF/MO $17,604 /YR $1,467 /MO | Office | Shell Space | Now |
| 2nd Floor, Ste 162 | 216 SF | Negotiable | $12.00 /SF/YR $1.00 /SF/MO $2,592 /YR $216.00 /MO | Office | Full Build-Out | Now |
| 2nd Floor, Ste 164 | 488 SF | Negotiable | $12.00 /SF/YR $1.00 /SF/MO $5,856 /YR $488.00 /MO | Office/Medical | Full Build-Out | Now |
| 2nd Floor, Ste 166 | 2,841 SF | Negotiable | $12.00 /SF/YR $1.00 /SF/MO $34,092 /YR $2,841 /MO | Office | Full Build-Out | Now |
2nd Floor, Ste 111
| Size |
| 3,689 SF |
| Term |
| Negotiable |
| Rental Rate |
| $12.00 /SF/YR $1.00 /SF/MO $44,268 /YR $3,689 /MO |
| Space Use |
| Office |
| Build-Out |
| Full Build-Out |
| Available |
| Now |
2nd Floor, Ste 120
| Size |
| 1,482 SF |
| Term |
| Negotiable |
| Rental Rate |
| $12.00 /SF/YR $1.00 /SF/MO $17,784 /YR $1,482 /MO |
| Space Use |
| Office/Medical |
| Build-Out |
| Full Build-Out |
| Available |
| Now |
2nd Floor, Ste 132
| Size |
| 1,531 SF |
| Term |
| Negotiable |
| Rental Rate |
| $12.00 /SF/YR $1.00 /SF/MO $18,372 /YR $1,531 /MO |
| Space Use |
| Office |
| Build-Out |
| Partial Build-Out |
| Available |
| Now |
2nd Floor, Ste 133
| Size |
| 880 SF |
| Term |
| Negotiable |
| Rental Rate |
| $12.00 /SF/YR $1.00 /SF/MO $10,560 /YR $880.00 /MO |
| Space Use |
| Office/Medical |
| Build-Out |
| - |
| Available |
| Now |
2nd Floor, Ste 133 & 136
| Size |
| 1,588 SF |
| Term |
| Negotiable |
| Rental Rate |
| $12.00 /SF/YR $1.00 /SF/MO $19,056 /YR $1,588 /MO |
| Space Use |
| Office/Medical |
| Build-Out |
| Partial Build-Out |
| Available |
| Now |
2nd Floor, Ste 134
| Size |
| 812 SF |
| Term |
| Negotiable |
| Rental Rate |
| $12.00 /SF/YR $1.00 /SF/MO $9,744 /YR $812.00 /MO |
| Space Use |
| Office |
| Build-Out |
| Shell Space |
| Available |
| Now |
2nd Floor, Ste 135
| Size |
| 812 SF |
| Term |
| Negotiable |
| Rental Rate |
| $12.00 /SF/YR $1.00 /SF/MO $9,744 /YR $812.00 /MO |
| Space Use |
| Office |
| Build-Out |
| Shell Space |
| Available |
| Now |
2nd Floor, Ste 136
| Size |
| 490 SF |
| Term |
| Negotiable |
| Rental Rate |
| $12.00 /SF/YR $1.00 /SF/MO $5,880 /YR $490.00 /MO |
| Space Use |
| Office |
| Build-Out |
| - |
| Available |
| Now |
2nd Floor, Ste 137
| Size |
| 1,467 SF |
| Term |
| Negotiable |
| Rental Rate |
| $12.00 /SF/YR $1.00 /SF/MO $17,604 /YR $1,467 /MO |
| Space Use |
| Office |
| Build-Out |
| Shell Space |
| Available |
| Now |
2nd Floor, Ste 162
| Size |
| 216 SF |
| Term |
| Negotiable |
| Rental Rate |
| $12.00 /SF/YR $1.00 /SF/MO $2,592 /YR $216.00 /MO |
| Space Use |
| Office |
| Build-Out |
| Full Build-Out |
| Available |
| Now |
2nd Floor, Ste 164
| Size |
| 488 SF |
| Term |
| Negotiable |
| Rental Rate |
| $12.00 /SF/YR $1.00 /SF/MO $5,856 /YR $488.00 /MO |
| Space Use |
| Office/Medical |
| Build-Out |
| Full Build-Out |
| Available |
| Now |
2nd Floor, Ste 166
| Size |
| 2,841 SF |
| Term |
| Negotiable |
| Rental Rate |
| $12.00 /SF/YR $1.00 /SF/MO $34,092 /YR $2,841 /MO |
| Space Use |
| Office |
| Build-Out |
| Full Build-Out |
| Available |
| Now |
2nd Floor, Ste 111
| Size | 3,689 SF |
| Term | Negotiable |
| Rental Rate | $12.00 /SF/YR |
| Space Use | Office |
| Build-Out | Full Build-Out |
| Available | Now |
This versatile office suite is available for immediate occupancy or can be customized to suit your business needs. Highlights include an oversized exterior office with a wall of windows providing exceptional natural light, two additional exterior offices with glass interior windows, and two private interior offices. A large open floor plan allows for flexibility, complemented by a welcoming reception area. Located directly off the elevators and featuring a kitchenette with sink, this space is designed for both efficiency and comfort.
- Lease rate does not include utilities, property expenses or building services
- Fully Built-Out as Standard Office
- Conference Rooms
- Central Air Conditioning
- Reception Area
- Elevator Access
- Corner Space
- Drop Ceilings
- Natural Light
- Atrium
- Basement
- Open-Plan
- Wheelchair Accessible
2nd Floor, Ste 120
| Size | 1,482 SF |
| Term | Negotiable |
| Rental Rate | $12.00 /SF/YR |
| Space Use | Office/Medical |
| Build-Out | Full Build-Out |
| Available | Now |
Newly available, fully built-out office or medical suite designed for efficiency and impact. The space features a welcoming reception area highlighted by a striking rock wall accent, multiple offices each equipped with a sink, a private office, and a convenient ensuite restroom. Located just off the entryway for easy access, the suite also includes a breakroom with sink, abundant built-in storage, and a thoughtful layout ideal for medical, wellness, or professional office use.
- Lease rate does not include utilities, property expenses or building services
2nd Floor, Ste 132
| Size | 1,531 SF |
| Term | Negotiable |
| Rental Rate | $12.00 /SF/YR |
| Space Use | Office |
| Build-Out | Partial Build-Out |
| Available | Now |
Discover this newly built 1,531 SF office suite designed for productivity and comfort. The space features four private offices, a spacious reception area, and the flexibility to add a private exterior entrance/exit—ideal for businesses seeking both convenience and a professional presence. Tenants will enjoy abundant natural light throughout the suite and ample on-site parking for staff and visitors. The property also includes access to a large shared break room equipped with a TV, refrigerator, and game area—perfect for team collaboration and relaxation.
- Lease rate does not include utilities, property expenses or building services
- 4 Private Offices
2nd Floor, Ste 133
| Size | 880 SF |
| Term | Negotiable |
| Rental Rate | $12.00 /SF/YR |
| Space Use | Office/Medical |
| Build-Out | - |
| Available | Now |
This spacious office features two walls of windows facing northeast, filling the open layout with abundant natural light. The large, flexible floor plan supports collaborative work environments and includes access to a shared conference room for meetings and presentations. A shared kitchenette provides added convenience for staff and guests. The suite is ready for immediate occupancy.
- Lease rate does not include utilities, property expenses or building services
- Open Floor Plan Layout
2nd Floor, Ste 133 & 136
| Size | 1,588 SF |
| Term | Negotiable |
| Rental Rate | $12.00 /SF/YR |
| Space Use | Office/Medical |
| Build-Out | Partial Build-Out |
| Available | Now |
This professional office space offers two large suites—one 490 square feet and the other 880 square feet—connected by a convenient central kitchenette area. The layout is highly versatile, making it ideal for private offices, conference rooms, collaborative workspaces, or a welcoming reception area. The space is filled with natural light thanks to two full walls of windows, creating a bright and productive work environment. Tenants also enjoy access to a large shared conference room and an expansive shared break room complete with a TV and games, providing excellent amenities for team meetings and employee relaxation. Perfect for growing businesses seeking a flexible and inviting office setting.
- Lease rate does not include utilities, property expenses or building services
- Mostly Open Floor Plan Layout
2nd Floor, Ste 134
| Size | 812 SF |
| Term | Negotiable |
| Rental Rate | $12.00 /SF/YR |
| Space Use | Office |
| Build-Out | Shell Space |
| Available | Now |
- Lease rate does not include utilities, property expenses or building services
2nd Floor, Ste 135
| Size | 812 SF |
| Term | Negotiable |
| Rental Rate | $12.00 /SF/YR |
| Space Use | Office |
| Build-Out | Shell Space |
| Available | Now |
- Lease rate does not include utilities, property expenses or building services
2nd Floor, Ste 136
| Size | 490 SF |
| Term | Negotiable |
| Rental Rate | $12.00 /SF/YR |
| Space Use | Office |
| Build-Out | - |
| Available | Now |
- Lease rate does not include utilities, property expenses or building services
- Mostly Open Floor Plan Layout
2nd Floor, Ste 137
| Size | 1,467 SF |
| Term | Negotiable |
| Rental Rate | $12.00 /SF/YR |
| Space Use | Office |
| Build-Out | Shell Space |
| Available | Now |
- Lease rate does not include utilities, property expenses or building services
2nd Floor, Ste 162
| Size | 216 SF |
| Term | Negotiable |
| Rental Rate | $12.00 /SF/YR |
| Space Use | Office |
| Build-Out | Full Build-Out |
| Available | Now |
Efficient and professional 216 RSF office suite available in a well-maintained building featuring abundant natural light throughout the lobby and atrium areas, creating a welcoming environment for clients and staff. Tenants enjoy access to a large conference room ideal for hosting larger meetings, presentations, or client consultations. The property offers ample on-site parking for tenants and visitors, ensuring convenience and accessibility. Additional highlights include prime building signage opportunities for enhanced visibility and professional on-site management providing responsive service and support.
- Lease rate does not include utilities, property expenses or building services
- Fully Built-Out as Standard Office
- Open Floor Plan Layout
- Space is in Excellent Condition
2nd Floor, Ste 164
| Size | 488 SF |
| Term | Negotiable |
| Rental Rate | $12.00 /SF/YR |
| Space Use | Office/Medical |
| Build-Out | Full Build-Out |
| Available | Now |
This well-maintained 488 sq ft office suite offers a quiet, professional environment with abundant natural light. The space includes two private offices and a large reception area, making it ideal for small businesses or professional services that need both client-facing and focused work areas. Tenants have access to an onsite conference room and common meeting space, along with ample parking for staff and visitors. The property is professionally managed onsite, ensuring a clean, secure, and well-run workplace.
- Lease rate does not include utilities, property expenses or building services
- Fully Built-Out as Professional Services Office
- 2 Private Offices
- Space is in Excellent Condition
2nd Floor, Ste 166
| Size | 2,841 SF |
| Term | Negotiable |
| Rental Rate | $12.00 /SF/YR |
| Space Use | Office |
| Build-Out | Full Build-Out |
| Available | Now |
Flexible build-to-suit options to meet tenant requirements
- Lease rate does not include utilities, property expenses or building services
- Fully Built-Out as Standard Office
- Conference Rooms
- Central Air Conditioning
- Atrium
- Basement
Property Overview
Discover a prime location with excellent visibility from Grandview Boulevard and seamless access to Interstate 94. Situated conveniently close to a variety of shops and restaurants, it's just a short 18-mile drive from downtown Milwaukee. Whether you prefer parking near the building or utilizing the lower-level garage, we've got you covered. This building truly offers it all! We invite you to schedule a tour and experience firsthand the exceptional service we provide. Limited-Time Qualified Prospect Incentive Tour this building and receive: • $100 gift card for completing a scheduled tour • $250 gift card when you bring a copy of your current lease to the tour *To qualify, prospects must mention this promotion when scheduling or arriving for their tour. Incentives are available to business occupants or decision-makers actively seeking office space. One incentive per company. Scheduled tours only. Limited-time offer. Terms and conditions apply.
- Atrium
- Conferencing Facility
- Property Manager on Site
- Signage
- Skylights
- Direct Elevator Exposure
- Natural Light
- Recessed Lighting
- Drop Ceiling
- Outdoor Seating
- Air Conditioning
Property Facts
Select Tenants
- Floor
- Tenant Name
- Industry
- 2nd
- Eras Senior Network Inc
- Health Care and Social Assistance
- 2nd
- Fox River Counseling
- Health Care and Social Assistance
- 2nd
- Great Lakes Tech Services
- Professional, Scientific, and Technical Services
- 2nd
- Highlander Dermatology LLC
- Health Care and Social Assistance
- 2nd
- Hope For A Better Tomorrow
- Health Care and Social Assistance
- 2nd
- Realty One Group Luminous
- Real Estate
- 2nd
- Skyline Dance Center
- Arts, Entertainment, and Recreation
- 2nd
- Superior Cleaners
- Services
Presented by
Silvernail Woods IV | 2607 N Grandview Blvd
Hmm, there seems to have been an error sending your message. Please try again.
Thanks! Your message was sent.












