Your email has been sent.
Highlights
- $27,006 Per Month (Entire Building).
- Matterport Tour: https://my.matterport.com/show/?m=n1VCjQqrNVf
- This property can be leased in its entirety or divided to lease either the upstairs or downstairs unit!
All Available Spaces(2)
Display Rental Rate as
- Space
- Size
- Term
- Rental Rate
- Space Use
- Build-Out
- Available
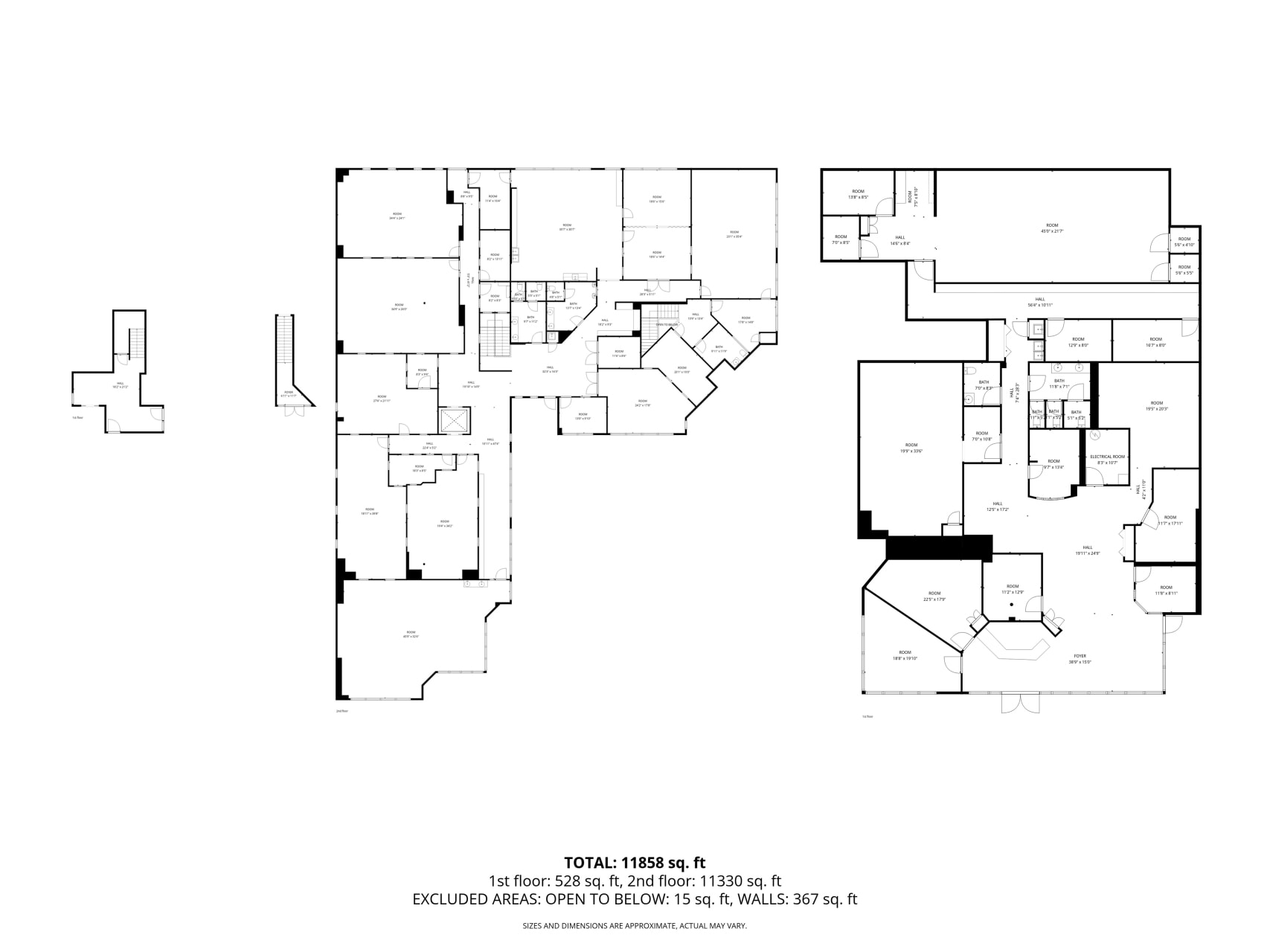
Spacious and versatile two-story office building, previously used as a school. This property can be leased in its entirety or divided to lease either the upstairs or downstairs unit! Ideal for office, educational, medical, or institutional use. Features multiple private offices/classrooms, conference rooms, reception area, restrooms, student lockers, and break areas. Solid construction with flexible floor plan allows for easy reconfiguration. Ample parking and ADA accessibility. Conveniently located near I-17 for easy access. Great opportunity for investors, nonprofits, or businesses seeking a move-in-ready or customizable space.
- Lease rate does not include utilities, property expenses or building services
- Mostly Open Floor Plan Layout
- Fully Built-Out as Standard Office
- Space is in Excellent Condition
- Lease rate does not include utilities, property expenses or building services
- Mostly Open Floor Plan Layout
- Fully Built-Out as Standard Office
- Central Air Conditioning
| Space | Size | Term | Rental Rate | Space Use | Build-Out | Available |
| 1st Floor, Ste Unit 2 | 8,299 SF | Negotiable | $16.00 /SF/YR $1.33 /SF/MO $132,784 /YR $11,065 /MO | Office | Full Build-Out | Now |
| 2nd Floor, Ste Unit 1 | 11,956 SF | Negotiable | $16.00 /SF/YR $1.33 /SF/MO $191,296 /YR $15,941 /MO | Office | Full Build-Out | Now |
1st Floor, Ste Unit 2
| Size |
| 8,299 SF |
| Term |
| Negotiable |
| Rental Rate |
| $16.00 /SF/YR $1.33 /SF/MO $132,784 /YR $11,065 /MO |
| Space Use |
| Office |
| Build-Out |
| Full Build-Out |
| Available |
| Now |
2nd Floor, Ste Unit 1
| Size |
| 11,956 SF |
| Term |
| Negotiable |
| Rental Rate |
| $16.00 /SF/YR $1.33 /SF/MO $191,296 /YR $15,941 /MO |
| Space Use |
| Office |
| Build-Out |
| Full Build-Out |
| Available |
| Now |
1st Floor, Ste Unit 2
| Size | 8,299 SF |
| Term | Negotiable |
| Rental Rate | $16.00 /SF/YR |
| Space Use | Office |
| Build-Out | Full Build-Out |
| Available | Now |
Spacious and versatile two-story office building, previously used as a school. This property can be leased in its entirety or divided to lease either the upstairs or downstairs unit! Ideal for office, educational, medical, or institutional use. Features multiple private offices/classrooms, conference rooms, reception area, restrooms, student lockers, and break areas. Solid construction with flexible floor plan allows for easy reconfiguration. Ample parking and ADA accessibility. Conveniently located near I-17 for easy access. Great opportunity for investors, nonprofits, or businesses seeking a move-in-ready or customizable space.
- Lease rate does not include utilities, property expenses or building services
- Fully Built-Out as Standard Office
- Mostly Open Floor Plan Layout
- Space is in Excellent Condition
2nd Floor, Ste Unit 1
| Size | 11,956 SF |
| Term | Negotiable |
| Rental Rate | $16.00 /SF/YR |
| Space Use | Office |
| Build-Out | Full Build-Out |
| Available | Now |
- Lease rate does not include utilities, property expenses or building services
- Fully Built-Out as Standard Office
- Mostly Open Floor Plan Layout
- Central Air Conditioning
Features and Amenities
- 24 Hour Access
- Kitchen
- Partitioned Offices
- Plug & Play
- Monument Signage
Property Facts
Presented by
2727 W Glendale Ave
Hmm, there seems to have been an error sending your message. Please try again.
Thanks! Your message was sent.







