Log In/Sign Up
Your email has been sent.
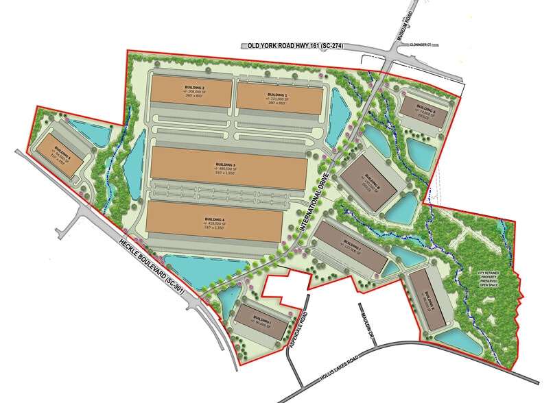
2798 International Drive
Rock Hill, SC 29732
Aspen Business Park · Industrial Property For Lease
·
221,000 SF


Property Overview
Occupying more than 118 acres, Aspen Business Park will include 6 buildings, with just over 1.4 million square feet of space and is expected to bring at least 1,000 new jobs to the region. The 1.4M SF industrial park will be developed in multiple phases. The first phase will include +/- 694,000 square feet of space and the remaining +/- 781,000 square feet will make up the second phase.
Distribution Facility Facts
Building Size
221,000 SF
Lot Size
118.00 AC
Year Built
2027
Construction
Reinforced Concrete
Zoning
GI - General Industrial
1 of 3
Videos
Matterport 3D Exterior
Matterport 3D Tour
Photos
Street View
Street
Map
