Your email has been sent.
2853 Gundry Ave 3,478 - 3,479 SF Office Condo Units Offered at $725,000 Per Unit in Signal Hill, CA 90755



Investment Highlights
- 2 Ground Level Loading Doors
- 3,241 SF Fully Built Out Office Mezzanine
- Part of a Larger Business Park
Executive Summary
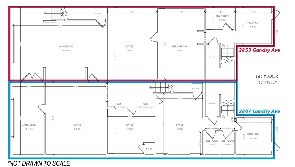
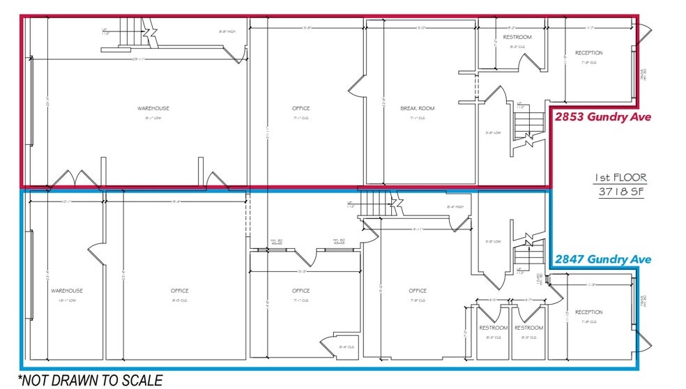
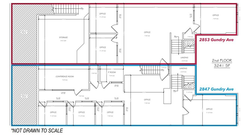
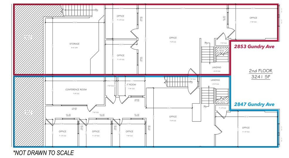
Lee & Associates Los Angeles – Long Beach is pleased to present the opportunity to secure a 6.959 SF Industrial Flex/ Office Condo at 2847 2853 Gundry Ave in Signal Hill, CA 90755. The location is minutes from the 405 Freeway and strategically located in between West Orange County/South Bay, and a 10-minute drive to the Long Beach Airport. In 2021 the Business Park’s Association completed new exterior paint and refurbished each unit’s front office/entry way. The floorplan attached shows that the space is composed of approximately 87% two story office space that is well maintained and has HVAC running throughout the building. There are two (2) ground level loading doors at 12’ x 14’.
2 Units Available
Unit 2847
| Unit Size | 3,478 SF | Sale Type | Investment or Owner User |
| Price | $725,000 | No. Parking Spaces | 6 |
| Price Per SF | $208.45 | APN/Parcel ID | 7212-008-065 |
| Condo Use | Office |
| Unit Size | 3,478 SF |
| Price | $725,000 |
| Price Per SF | $208.45 |
| Condo Use | Office |
| Sale Type | Investment or Owner User |
| No. Parking Spaces | 6 |
| APN/Parcel ID | 7212-008-065 |
Description
Looking for a prime unit for your business? Check out this industrial condominium located in Signal Hill! With a combined ( with 2853 Gundry) total 6956 sq. ft. of space, including a private offices and several separate rooms, this warehouse has everything you need. Plus, The ceiling height ranges from 10 to 19 feet, and there is a 220V 3-phase power feed. Other features include a ground-level 12' x 14' roll-up door, an entry door for foot access, public water and sewer, and a concrete slab floor. Don't miss out on this amazing opportunity!
1st Floor Plan
2nd Floor Plan
Unit 2853
| Unit Size | 3,479 SF | Sale Type | Investment or Owner User |
| Price | $725,000 | No. Parking Spaces | 6 |
| Price Per SF | $208.39 | APN/Parcel ID | 7212-008-066 |
| Condo Use | Office |
| Unit Size | 3,479 SF |
| Price | $725,000 |
| Price Per SF | $208.39 |
| Condo Use | Office |
| Sale Type | Investment or Owner User |
| No. Parking Spaces | 6 |
| APN/Parcel ID | 7212-008-066 |
Description
Can Be Sold Together or Separately
Lee & Associates Los Angeles – Long Beach is pleased to present the opportunity to secure a 6.959 SF Industrial Flex/Office Condo at 2847-2853 Gundry Ave in Signal Hill, CA 90755. The location is minutes from the 405 Freeway and strategically located in between West Orange County/South Bay, and a 10-minute drive to the Long Beach Airport. In 2021 the Business Park’s Association completed new exterior paint and refurbished each unit’s front office/entry way. The floorplan attached shows that the space is composed of approximately 87% two story office space that is well maintained and has HVAC running throughout the building. There are two (2) ground level loading doors at 12’ x 14’.
Sale Notes
Can be sold together or separately
Lee & Associates Los Angeles – Long Beach is pleased to present the opportunity to secure a 6.959 SF Industrial Flex/Office Condo at 2847-2853 Gundry Ave in Signal Hill, CA 90755. The location is minutes from the 405 Freeway and strategically located in between West Orange County/South Bay, and a 10-minute drive to the Long Beach Airport. In 2021 the Business Park’s Association completed new exterior paint and refurbished each unit’s front office/entry way. The floorplan attached shows that the space is composed of approximately 87% two story office space that is well maintained and has HVAC running throughout the building. There are two (2) ground level loading doors at 12’ x 14’.
1st Floor Plan
2nd Floor Plan
Property Facts
Amenities
- Air Conditioning
Utilities
- Water - City
- Sewer - City
Presented by
2853 Gundry Ave
Hmm, there seems to have been an error sending your message. Please try again.
Thanks! Your message was sent.


