Your email has been sent.
Rancho California Business Park 28780 Single Oak Dr 886 - 5,540 SF of Office Space Available in Temecula, CA 92590



Highlights
- Located near the I-15 and Rancho California Road interchange for optimal regional access.
- Full-service leases include utilities with no additional CAM or NNN charges.
- Surrounded by high-end residential projects and an expanding business community.
- Elevator-served building featuring a striking glass-line design throughout floors.
- Close proximity to Temecula’s upscale dining, retail, and medical facilities.
- Strong ownership presence and in-house fitness center available for tenant use.
All Available Spaces(4)
Display Rental Rate as
- Space
- Size
- Term
- Rental Rate
- Space Use
- Build-Out
- Available
Utilities Included. Proposed Configuration: Window lined suite with reception, waiting area, two offices, conference room, and open area. Building signage available.
- Reception Area
- Natural Light
- Corner Space
Utilities Included. Proposed Configuration: Reception/waiting area, conference room, two offices, and open/cubicle area with coffee bar/sink.
- Fully Built-Out as Standard Office
- Secure Storage
- Kitchen
Utilities Included. Proposed Configuration: Reception, three offices, kitchen with sink, two storage areas, and open area. This suite offers 2 entry doors, if needed.
- Fully Built-Out as Standard Office
- Secure Storage
- Kitchen
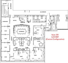
Utilities Included. Current Configuration: Reception, two open rooms, and storage area.
| Space | Size | Term | Rental Rate | Space Use | Build-Out | Available |
| 2nd Floor, Ste 155 | 1,353 SF | Negotiable | $33.00 /SF/YR $2.75 /SF/MO $44,649 /YR $3,721 /MO | Office | - | Now |
| 2nd Floor, Ste 290-A | 886 SF | Negotiable | $24.60 /SF/YR $2.05 /SF/MO $21,796 /YR $1,816 /MO | Office | Full Build-Out | Now |
| 2nd Floor, Ste 290-B | 1,308 SF | Negotiable | $27.00 /SF/YR $2.25 /SF/MO $35,316 /YR $2,943 /MO | Office | Full Build-Out | Now |
| 2nd Floor, Ste 295 | 1,993 SF | Negotiable | Upon Request Upon Request Upon Request Upon Request | Office | - | Now |
2nd Floor, Ste 155
| Size |
| 1,353 SF |
| Term |
| Negotiable |
| Rental Rate |
| $33.00 /SF/YR $2.75 /SF/MO $44,649 /YR $3,721 /MO |
| Space Use |
| Office |
| Build-Out |
| - |
| Available |
| Now |
2nd Floor, Ste 290-A
| Size |
| 886 SF |
| Term |
| Negotiable |
| Rental Rate |
| $24.60 /SF/YR $2.05 /SF/MO $21,796 /YR $1,816 /MO |
| Space Use |
| Office |
| Build-Out |
| Full Build-Out |
| Available |
| Now |
2nd Floor, Ste 290-B
| Size |
| 1,308 SF |
| Term |
| Negotiable |
| Rental Rate |
| $27.00 /SF/YR $2.25 /SF/MO $35,316 /YR $2,943 /MO |
| Space Use |
| Office |
| Build-Out |
| Full Build-Out |
| Available |
| Now |
2nd Floor, Ste 295
| Size |
| 1,993 SF |
| Term |
| Negotiable |
| Rental Rate |
| Upon Request Upon Request Upon Request Upon Request |
| Space Use |
| Office |
| Build-Out |
| - |
| Available |
| Now |
2nd Floor, Ste 155
| Size | 1,353 SF |
| Term | Negotiable |
| Rental Rate | $33.00 /SF/YR |
| Space Use | Office |
| Build-Out | - |
| Available | Now |
Utilities Included. Proposed Configuration: Window lined suite with reception, waiting area, two offices, conference room, and open area. Building signage available.
- Reception Area
- Corner Space
- Natural Light
2nd Floor, Ste 290-A
| Size | 886 SF |
| Term | Negotiable |
| Rental Rate | $24.60 /SF/YR |
| Space Use | Office |
| Build-Out | Full Build-Out |
| Available | Now |
Utilities Included. Proposed Configuration: Reception/waiting area, conference room, two offices, and open/cubicle area with coffee bar/sink.
- Fully Built-Out as Standard Office
- Kitchen
- Secure Storage
2nd Floor, Ste 290-B
| Size | 1,308 SF |
| Term | Negotiable |
| Rental Rate | $27.00 /SF/YR |
| Space Use | Office |
| Build-Out | Full Build-Out |
| Available | Now |
Utilities Included. Proposed Configuration: Reception, three offices, kitchen with sink, two storage areas, and open area. This suite offers 2 entry doors, if needed.
- Fully Built-Out as Standard Office
- Kitchen
- Secure Storage
2nd Floor, Ste 295
| Size | 1,993 SF |
| Term | Negotiable |
| Rental Rate | Upon Request |
| Space Use | Office |
| Build-Out | - |
| Available | Now |
Utilities Included. Current Configuration: Reception, two open rooms, and storage area.
Property Overview
Single Oak Center is a premier professional office building situated in Temecula’s thriving commercial corridor, offering convenient access near the intersection of I-15 and Rancho California Road. This prominent location provides tenants an easy five-minute drive to Old Town Temecula, renowned for its restaurants, retail, and business services. The property consists of flexible office spaces ranging from 886± to 1,993± RSF, tailored for a variety of professional and healthcare users. Tenants benefit from an upscale corporate environment with an elevator-served building, a two-story reception area, and abundant natural light through extensive glass lines. Building ownership is responsive, and full-service leases include electric and waste utilities with no additional CAM or NNN fees, optimizing cost efficiency. Tenants enjoy proximity to the rapidly growing Altair housing development, providing access to a high-income population base. Businesses at Single Oak Center also gain convenient ingress and egress, on-site parking with covered spaces, and access to nearby financial institutions and the Temecula Valley Hospital.
- 24 Hour Access
- Fitness Center
- Natural Light
Property Facts
Select Tenants
- Floor
- Tenant Name
- Industry
- 1st
- Helen Im, D.D.S.
- Health Care and Social Assistance
- 1st
- P4L Fitness
- Arts, Entertainment, and Recreation
- 2nd
- Quest Diagnostics
- Health Care and Social Assistance
- Multiple
- Rancho Family Medical Group
- Health Care and Social Assistance
- 2nd
- Youngberg Clinic
- Health Care and Social Assistance
Presented by
Rancho California Business Park | 28780 Single Oak Dr
Hmm, there seems to have been an error sending your message. Please try again.
Thanks! Your message was sent.









