Your email has been sent.
Dental/ Medical Office Property For Sale 2900 Hamilton Blvd 6,900 SF Office Building Allentown, PA 18103 $1,700,000 ($246.38/SF)



Investment Highlights
- Premier Island Parcel with Exceptional Visibility & Access
- Regional Traffic from Allentown's Core Destinations
- High-Traffic Co-Tenancy with Top-Performing Wells Fargo Bank
Executive Summary
Located less than one mile from Lehigh Valley Hospital–Cedar Crest and directly across from Cedar Crest College, the site benefits from exceptional visibility and consistent daytime traffic. The surrounding area includes Muhlenberg College, Dorney Park, and PPL Center, drawing steady visitation from students, professionals, and tourists alike.
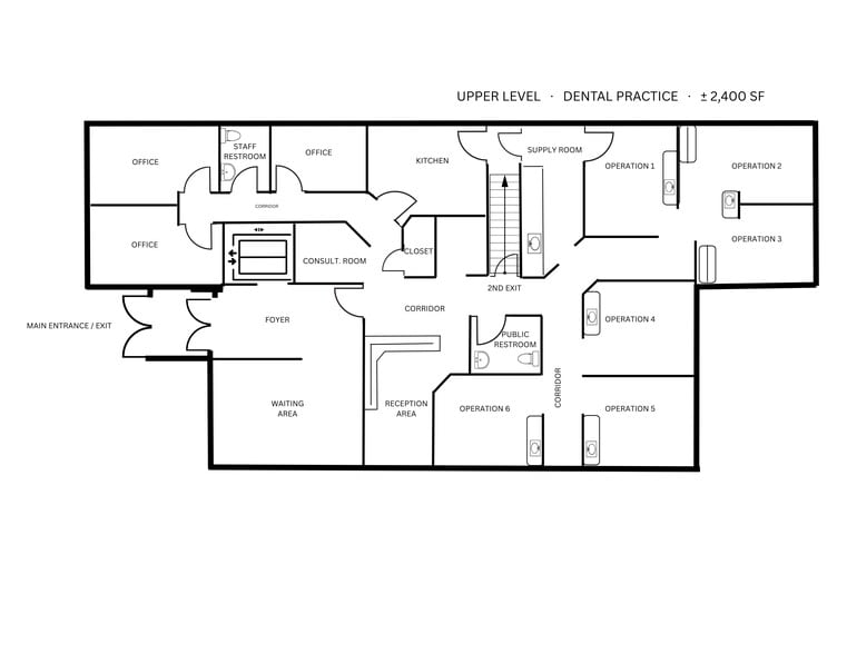
2900 Hamilton Boulevard represents a one-of-a-kind dental opportunity in the heart of Allentown’s West End.
Don’t let this opportunity slip—schedule a tour today.
Property Facts
Space Availability
- Space
- Size
- Space Use
- Build-Out
- Available
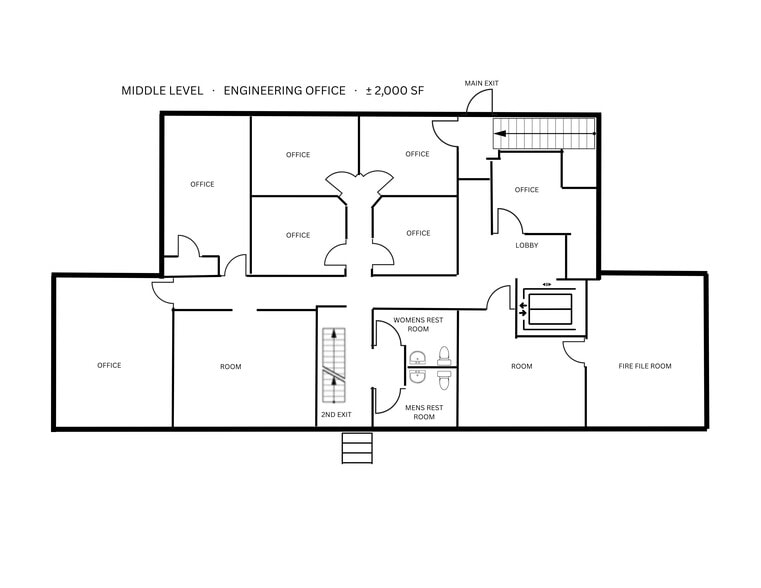
Professional lower-level office suite available for lease within a high-visibility medical and engineering building on Hamilton Blvd. The ±1,500 SF space is ideal for administrative, IT, or office operations. Join established tenants Dr. Taras DMD and HB Engineers in a well-maintained property featuring convenient access, excellent signage potential, and heavy daily traffic along one of Allentown’s most traveled corridors.
| Space | Size | Space Use | Build-Out | Available |
| Lower Level | 1,500 SF | Office | Full Build-Out | Now |
Lower Level
| Size |
| 1,500 SF |
| Space Use |
| Office |
| Build-Out |
| Full Build-Out |
| Available |
| Now |
Lower Level
| Size | 1,500 SF |
| Space Use | Office |
| Build-Out | Full Build-Out |
| Available | Now |
Professional lower-level office suite available for lease within a high-visibility medical and engineering building on Hamilton Blvd. The ±1,500 SF space is ideal for administrative, IT, or office operations. Join established tenants Dr. Taras DMD and HB Engineers in a well-maintained property featuring convenient access, excellent signage potential, and heavy daily traffic along one of Allentown’s most traveled corridors.
Property Taxes
| Parcel Number | 548683974419-1 | Improvements Assessment | $446,100 |
| Land Assessment | $203,900 | Total Assessment | $650,000 |
Property Taxes
Presented by
Dental/ Medical Office Property For Sale | 2900 Hamilton Blvd
Hmm, there seems to have been an error sending your message. Please try again.
Thanks! Your message was sent.




