30-32 Queensway | London W2 3RX
This feature is unavailable at the moment.
We apologize, but the feature you are trying to access is currently unavailable. We are aware of this issue and our team is working hard to resolve the matter.
Please check back in a few minutes. We apologize for the inconvenience.
- LoopNet Team
This Property is no longer advertised on LoopNet.com.
30-32 Queensway
London W2 3RX
Property For Lease
Commercial Real Estate Properties
30-32 Queensway, London W2 3RX

HIGHLIGHTS
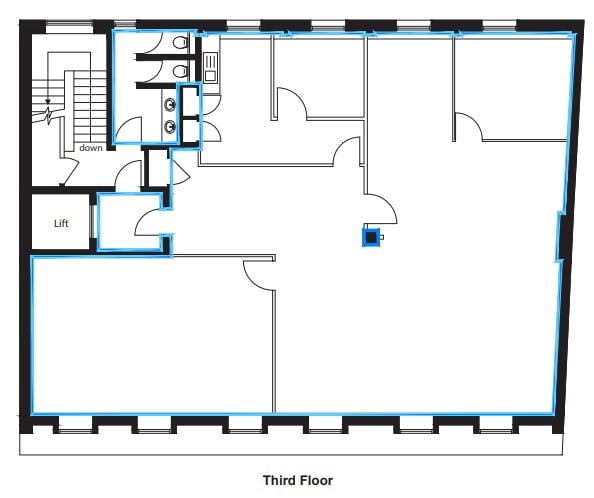
- Fully fitted to provide a combination of open plan work space, private meeting rooms and kitchen facilities
- Secure fob access
- Recently refurbished reception
PROPERTY OVERVIEW
The property is situated moments from the iconic West Walk scheme, there is no shortage of amenities that will well serve the modern day occupiers. West Walk has welcomed renowned occupiers such as; Pret A Manger, Barrys Bootcamp, Meat Liquor, Amorino, Queens Ice and Bowl, Simit Sarayi, Yeo Valley, Rosa’s Thai and Pizza Pilgrims.
- Bus Line
- Convenience Store
- Metro/Subway
- Security System
- Signage
- Storage Space
- Air Conditioning
PROPERTY FACTS
Building Type
Office
Year Built
1771
LoopNet Rating
4 Star
Building Height
5 Stories
Building Size
12,400 SF
Building Class
B
Typical Floor Size
2,472 SF
Unfinished Ceiling Height
10’
Parking
Surface Parking
ATTACHMENTS
| The-Queensway-Estate |
Listing ID: 19590214
Date on Market: 5/19/2020
Last Updated:
Address: 30-32 Queensway, London W2 3RX
The Office Property at 30-32 Queensway, London, W2 3RX is no longer being advertised on LoopNet.com. Contact the broker for information on availability.
OFFICE PROPERTIES IN NEARBY NEIGHBORHOODS
NEARBY LISTINGS
- Lilford Rd, London
- 103-105 Bunhill Row, London
- 75 Grosvenor St, London
- 117 Piccadilly, London
- 146-156 Brixton Hl, London
- 110 Bishopsgate, London
- 56 Grosvenor St, London
- 16-20 Ely Pl, London
- 103-105 Bunhill Row, London
- 6 Carnation Way, London
- 25 Wilton Rd, London
- Standard Rd, London
- 6 New Bridge St, London
- 20 Farringdon St, London
- 2 Bentinck Mews, London
1 of 1
VIDEOS
MATTERPORT 3D EXTERIOR
MATTERPORT 3D TOUR
PHOTOS
STREET VIEW
STREET
MAP

Link copied
Your LoopNet account has been created!
Thank you for your feedback.
Please Share Your Feedback
We welcome any feedback on how we can improve LoopNet to better serve your needs.X
{{ getErrorText(feedbackForm.starRating, "rating") }}
255 character limit ({{ remainingChars() }} charactercharacters remainingover)
{{ getErrorText(feedbackForm.msg, "rating") }}
{{ getErrorText(feedbackForm.fname, "first name") }}
{{ getErrorText(feedbackForm.lname, "last name") }}
{{ getErrorText(feedbackForm.phone, "phone number") }}
{{ getErrorText(feedbackForm.phonex, "phone extension") }}
{{ getErrorText(feedbackForm.email, "email address") }}
You can provide feedback any time using the Help button at the top of the page.