Your email has been sent.
30 Glennie St 11,056 SF of Flex Space Available in Worcester, MA 01605

Highlights
- Central Air Conditioning; 16' clear; Dock Door; Off Street Parking
Features
All Available Space(1)
Display Rental Rate as
- Space
- Size
- Term
- Rental Rate
- Space Use
- Build-Out
- Available
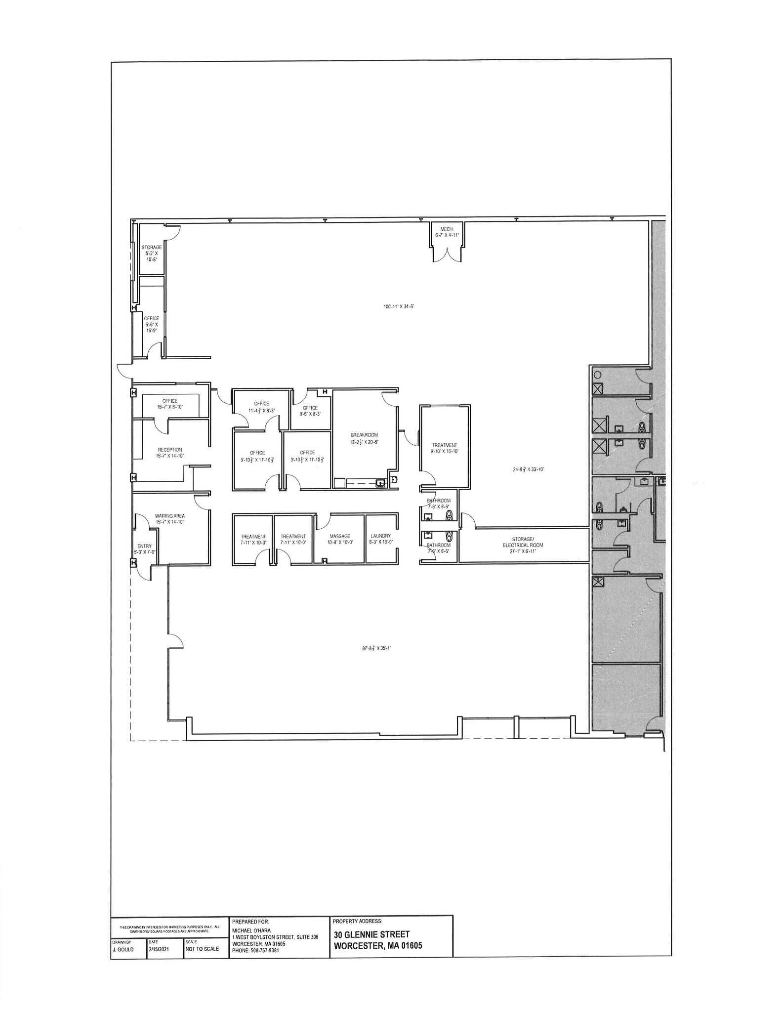
This 11,056 SF flex space is currently built out for physical therapy and offers a highly functional layout with a welcoming reception and waiting area, six private offices, a kitchen/lunch room, and men’s and ladies’ lavatories. The design includes two expansive open areas ideal for treatment, training, or collaborative work, along with dedicated storage and utility rooms for operational efficiency. The space is fully equipped with 100% central AC and provides versatility for a wide range of uses, including office, retail, flex, wholesale, or daycare. Strategically located directly off Gold Star Boulevard, a high-traffic corridor, this property combines excellent accessibility with a prime location, making it a rare opportunity for businesses seeking adaptable space in a thriving market.
- Lease rate does not include utilities, property expenses or building services
- Space is in Excellent Condition
- Central Air Conditioning
- Reception Area
- Drop Ceilings
- High Ceilings
- Exposed Ceiling
- 11,056 SF flexible floor plan
- Six private offices + two open zones
- Prime location off Gold Star Blvd
- Includes 6,000 SF of dedicated office space
- 1 Loading Dock
- Partitioned Offices
- Private Restrooms
- Demised WC facilities
- Conference Rooms
- Wheelchair Accessible
- Reception, waiting & kitchen areas
- 100% central AC throughout
| Space | Size | Term | Rental Rate | Space Use | Build-Out | Available |
| 1st Floor | 11,056 SF | 5-20 Years | $19.50 /SF/YR $1.63 /SF/MO $215,592 /YR $17,966 /MO | Flex | Full Build-Out | October 01, 2026 |
1st Floor
| Size |
| 11,056 SF |
| Term |
| 5-20 Years |
| Rental Rate |
| $19.50 /SF/YR $1.63 /SF/MO $215,592 /YR $17,966 /MO |
| Space Use |
| Flex |
| Build-Out |
| Full Build-Out |
| Available |
| October 01, 2026 |
1st Floor
| Size | 11,056 SF |
| Term | 5-20 Years |
| Rental Rate | $19.50 /SF/YR |
| Space Use | Flex |
| Build-Out | Full Build-Out |
| Available | October 01, 2026 |
This 11,056 SF flex space is currently built out for physical therapy and offers a highly functional layout with a welcoming reception and waiting area, six private offices, a kitchen/lunch room, and men’s and ladies’ lavatories. The design includes two expansive open areas ideal for treatment, training, or collaborative work, along with dedicated storage and utility rooms for operational efficiency. The space is fully equipped with 100% central AC and provides versatility for a wide range of uses, including office, retail, flex, wholesale, or daycare. Strategically located directly off Gold Star Boulevard, a high-traffic corridor, this property combines excellent accessibility with a prime location, making it a rare opportunity for businesses seeking adaptable space in a thriving market.
- Lease rate does not include utilities, property expenses or building services
- Includes 6,000 SF of dedicated office space
- Space is in Excellent Condition
- 1 Loading Dock
- Central Air Conditioning
- Partitioned Offices
- Reception Area
- Private Restrooms
- Drop Ceilings
- Demised WC facilities
- High Ceilings
- Conference Rooms
- Exposed Ceiling
- Wheelchair Accessible
- 11,056 SF flexible floor plan
- Reception, waiting & kitchen areas
- Six private offices + two open zones
- 100% central AC throughout
- Prime location off Gold Star Blvd
Property Overview
Retail, Flex, Office, Daycare. Located directly off Gold Star Boulevard (Route 12). Great location!
Property Facts
Presented by
30 Glennie St
Hmm, there seems to have been an error sending your message. Please try again.
Thanks! Your message was sent.


