Log In/Sign Up
Your email has been sent.
3202 Tower Oaks Blvd - Tower Oaks Professional Park 2 2,384 SF Office/Medical Condo Unit Offered at $949,000 in Rockville, MD 20852



1 Unit Available
Unit 330
| Unit Size | 2,384 SF | Condo Use | Office/Medical |
| Price | $949,000 | Sale Type | Investment or Owner User |
| Price Per SF | $398.07 |
| Unit Size | 2,384 SF |
| Price | $949,000 |
| Price Per SF | $398.07 |
| Condo Use | Office/Medical |
| Sale Type | Investment or Owner User |
Sale Notes
New Reduced Pricing!
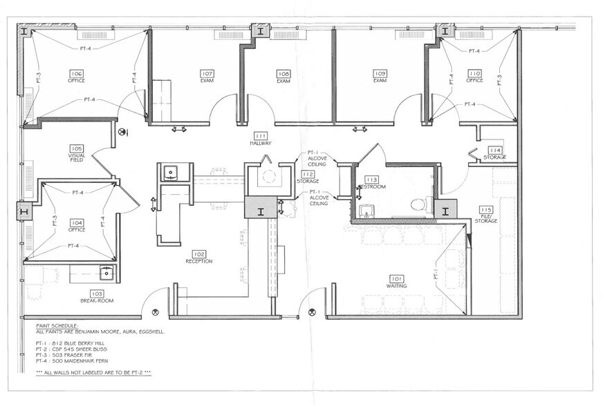
Fully built out medical suite in excellent condition for lease or sale in N Bethesda/ Rockville MD.
Efficient layout with 4-5 Exam Rooms, 1 In-Suite ADA restroom, Waiting & Reception area, staff break area and ample storage.
Close Proximity to Suburban Hospital and Shady Grove Adventist
Floor Plan
1 of 1
Videos
Matterport 3D Exterior
Matterport 3D Tour
Photos
Street View
Street
Map
Property Facts
The following property facts and amenities apply to the entire building. Details for individual condo units may vary and are listed in the unit information above.
| Total Building Size | 50,188 SF | Typical Floor Size | 12,130 SF |
| Property Type | Office (Condo) | Year Built | 1982 |
| Property Subtype | Medical | Lot Size | 17.76 AC |
| Building Class | B | Parking Ratio | 4/1,000 SF |
| Floors | 4 | ||
| Zoning | MXE - Mixed-Use Employment Zone | ||
| Total Building Size | 50,188 SF |
| Property Type | Office (Condo) |
| Property Subtype | Medical |
| Building Class | B |
| Floors | 4 |
| Typical Floor Size | 12,130 SF |
| Year Built | 1982 |
| Lot Size | 17.76 AC |
| Parking Ratio | 4/1,000 SF |
| Zoning | MXE - Mixed-Use Employment Zone |
Amenities
- Fitness Center
- Air Conditioning
- Smoke Detector
1 1
Moderately walkable
60/100
Exceptionally drivable
100/100
Limited public transit
30/100
Fairly bikeable
50/100
1 of 7
Videos
Matterport 3D Exterior
Matterport 3D Tour
Photos
Street View
Street
Map
1 of 1
Presented by
3202 Tower Oaks Blvd - Tower Oaks Professional Park 2
Already a member? Log In
Hmm, there seems to have been an error sending your message. Please try again.
Thanks! Your message was sent.

