Your email has been sent.
333-343 King St E
Toronto, ON M5A 3X5
Office/Retail Property for Lease
·
99,863 SF


Sublease Highlights
- Turnkey Furnished Spaces Available
- Dedicated Ground Floor Entrance
- Extensive Storage/ Library Space
- Direct Streetcar Access
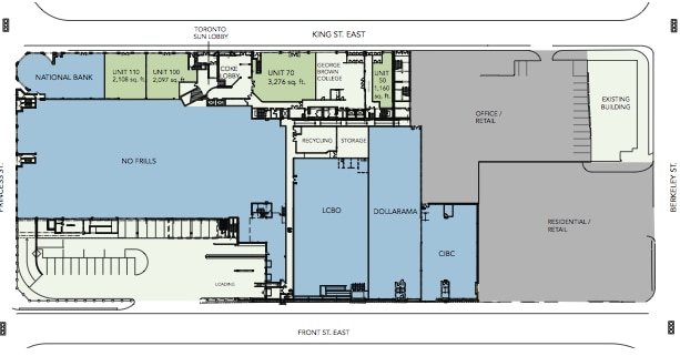
Property Overview
Located in Toronto’s vibrant Downtown East, 333 King Street East presents a rare opportunity to sublease nearly 100,000 RSF of turnkey space across five contiguous floors. Previously configured as a premier education facility, the space is fully built out with classrooms, offices, lounges, and extensive library/storage areas. The building offers a dedicated ground floor entrance, direct streetcar access, and is steps from the Distillery District, St. Lawrence Market, and Corktown. Tenants benefit from proximity to Toronto’s Financial Core and Union Station, with seamless access to the Gardiner Expressway and Don Valley Parkway. The property is part of a 360,000 SF commercial complex housing major tenants such as Coca-Cola and Scotiabank Digital Factory. Renovated in 2012 and 2016, the building features robust infrastructure including dual central HVAC plants, high-voltage electrical systems, multiple POP rooms, and three emergency generators. Internet service is available from Rogers, Bell, TELUS, and Beanfield. Amenities include Scotiabank onsite, food vendors, and a single-level underground garage with 102 parking spaces.
